アクロス薬院グレイステージ 203号室(2階/2LDK)の賃貸物件(賃貸マンション)
福岡県福岡市中央区にあるアクロス薬院グレイステージ 203号室はTVモニタ付インターホン、シューズインクローゼット、フローリング、駐輪場、ペット可・相談などが特徴です。最寄り駅の福岡市地下鉄 七隈線薬院大通駅から徒歩4分です。アクロス薬院グレイステージ 203号室の詳細はハウスコム 吉塚店までお気軽にお問い合わせください!
情報更新日:
次回更新予定日:
※次回更新予定日について:お店側では順次空室確認を行っていますが、次回更新予定日までに空室確認が行えない場合には、この物件情報は自動的に削除されます。
アクロス薬院グレイステージ 203号室の賃貸物件部屋概要
家賃 |
24万円
初期費用を |
|---|---|
共益費 |
30,000円
入居可能時期 |
敷金/礼金 |
- / 2ヶ月 |
保証金/ |
- / - |
最寄駅 |
|
所在地 |
福岡県福岡市中央区薬院 |
部屋番号 |
203号室 |
間取り |
2LDK |
専有面積 |
52.67㎡ |
築年数 |
新築 |
階数 |
2階部分(地上8階建) |
方位・位置 |
南西 / 角部屋 |
物件種別 |
賃貸マンション |
構造 |
RC |
駐車場 |
- |
小学校学区 |
平尾小学校 |
中学校学区 |
平尾中学校 |
他の空き部屋 |
801号室 |
- 学区データについて
- ※学区データは必ずしも正確とは限りません。詳細に関しては最寄店舗または各自治体の教育委員会に必ずご確認ください。
アクロス薬院グレイステージ 203号室の特徴
-
一人暮らしに人気の設備

-
カップルに人気の設備

-
家族に人気の設備

-
夫婦に人気の設備

-
三世代で人気の設備

-
セキュリティ対策重視

-
キッチン重視

-
外で子どもと遊びたい

-
雨の日でも洗濯したい

-
洋室で暮らしたい

-
持ち物をスッキリ隠す収納部屋

-
自炊が多めなあなたに

-
料理が好き

-
靴やスニーカーが好き

-
推し活グッズを飾りたい

-
オークション・通販が好き

-
ガーデニングが好き

契約条件
ペットの飼育もご相談ください。 敷金が無料なため、初期費用が比較的安くなる傾向にあります。
セキュリティ
この物件の建物には、オートロックや防犯カメラや宅配ボックスが設置されており、来客時には居室内のテレビモニターにて訪問者の顔を確認することができます。
室内設備
システムキッチンには、IHコンロが設置されており、キッチン設備として食洗機が備え付けられています。 お風呂とトイレは別です。お風呂には、追い焚き機能が備わっています。 トイレは、温水洗浄便座機能付きになります。 女性に嬉しい設備のシャワーの付いている洗面化粧台があります。 洗濯に便利な設備として、浴室乾燥機も設置されているので、梅雨時の生乾き臭も比較的防ぐことができます。
居室状況
お部屋の床は、フローリングとなっています。インターネットも無料で入居後すぐ生活が始められます。 収納スペースとして、基本的な居室にクローゼットを設置、玄関にはシューズインクローゼットがあります。
建物設備共用部分
居室外の専有スペースとして、洗濯物を干すなどの用途として利用できるバルコニーがあります。 建物の共用スペースに、日々の出入に便利なエレベーターや、いざという時の防犯カメラや、急な外出や不在がちのご家庭の荷物受け取りに便利な宅配ボックスが設置されています。 駐輪場、バイク置き場が利用できます。
周辺施設
この物件の学区は、平尾小学校区・平尾中学校区です。
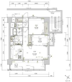
アクロス薬院グレイステージ 203号室の間取り
間取り:2LDK
間取詳細:2LDK
専有面積:52.67㎡
方位:南西
部屋位置:角部屋
アクロス薬院グレイステージ 203号室の設備
キッチン
システムキッチン
カウンターキッチン
IHコンロ
食洗機
バス・トイレ
バス・トイレ別
追い焚き
浴室乾燥機
温水洗浄便座
独立洗面台
シャワー付洗面化粧台
玄関
TVモニタ付インターホン
オートロック
宅配ボックス
収納
クローゼット
シューズインクローゼット
全居室収納
バルコニー
バルコニー
ルーフバルコニー
室内設備
フローリング
位置・立地
2階以上
角部屋
インフラ
CATV
BS
CS
都市ガス
建物設備
エレベーター
防犯カメラ
駐輪場
バイク置き場
入居条件
ペット可・相談
即入居可
ライフステージ
一人暮らしに人気の設備
カップルに人気の設備
家族に人気の設備
夫婦に人気の設備
三世代で人気の設備
こだわり
セキュリティ対策重視
キッチン重視
外で子どもと遊びたい
雨の日でも洗濯したい
洋室で暮らしたい
持ち物をスッキリ隠す収納部屋
自炊が多めなあなたに
趣味
料理が好き
靴やスニーカーが好き
推し活グッズを飾りたい
オークション・通販が好き
ガーデニングが好き
お得な条件
インターネット無料
アクロス薬院グレイステージ 203号室の賃貸契約情報
毎月支払う |
家賃24万円/月共益費30,000円/月 |
|---|---|
初期費用 |
敷金-礼金2ヶ月 (48万円)保証金-敷引き償却金- |
更新料 |
120,000円 |
鍵交換費用 |
- |
室内清掃費用 |
- |
駐車場料金 |
- |
損保・ |
借家賠付きの火災保険にご加入いただきます。 |
保証会社 |
加入要 保証会社利用料:大手法人契約を除き加入必須 |
契約期間 |
2年 |
入居可能日 |
即入居可 |
フリーレント期間 |
- |
取引形態 |
一般媒介 |
備考 |
- |
アクロス薬院グレイステージ 203号室の建物情報
建物名称 |
アクロス薬院グレイステージ |
|---|---|
最寄駅 |
|
所在地 |
福岡県福岡市中央区薬院 |
階層 |
2階部分(地上8階建) |
構造 |
RC |
築年数 |
新築 |
駐車場 |
- |
小学校学区 |
平尾小学校 |
中学校学区 |
平尾中学校 |
- 学区データについて
- ※学区データは必ずしも正確とは限りません。詳細に関しては最寄店舗または各自治体の教育委員会に必ずご確認ください。
無料この物件に問い合わせ
- アクロス薬院グレイステージ 203号室

-
24万円
(共益費
30,000円)
- 敷
- -
- 礼
- 2ヶ月
- 保
- -
- 償
- -
アクロス薬院グレイステージ 203号室の物件のお問い合わせ先・取り扱い店舗
ハウスコム 吉塚店
- アクセス
-
鹿児島本線「吉塚駅」徒歩2分
- 住所
- 〒812-0045 福岡県福岡市博多区東公園2−26
- 営業時間
- 10:00~18:00
- 定休日
- なし
- 営業エリア
- 福岡市内(全エリア)・糟屋郡・春日市・那珂川市・福津市・古賀市・大野城市
- 取引態様
- 賃貸仲介業















