吉見町日本家屋戸建て 1号室(1階/4LDK)の賃貸物件(賃貸一戸建て)
埼玉県比企郡吉見町にある吉見町日本家屋戸建て 1号室は独立洗面台、ルーフバルコニー、フローリング、ペット可・相談、保証人不要などが特徴です。最寄り駅の東武東上線東松山駅から4.4kmです。吉見町日本家屋戸建て 1号室の詳細はハウスコム 上尾店までお気軽にお問い合わせください!
情報更新日:
次回更新予定日:
※次回更新予定日について:お店側では順次空室確認を行っていますが、次回更新予定日までに空室確認が行えない場合には、この物件情報は自動的に削除されます。
吉見町日本家屋戸建て 1号室の賃貸物件部屋概要
家賃 |
7.8万円
初期費用を |
|---|---|
共益費 |
-
入居可能時期 |
敷金/礼金 |
- / - |
保証金/ |
- / - |
最寄駅 |
|
所在地 |
埼玉県比企郡吉見町大字長谷 |
部屋番号 |
1号室 |
間取り |
4LDK(和6・和6・和0) |
専有面積 |
106.83㎡ |
築年数 |
1992年4月(築34年) |
階数 |
1階部分(地上2階建) |
方位・位置 |
ー / 角部屋 |
物件種別 |
賃貸一戸建て |
構造 |
木造 |
駐車場 |
空有 賃料に含む |
小学校学区 |
西小学校 |
中学校学区 |
吉見中学校 |
他の空き部屋 |
ー |
- 学区データについて
- ※学区データは必ずしも正確とは限りません。詳細に関しては最寄店舗または各自治体の教育委員会に必ずご確認ください。
吉見町日本家屋戸建て 1号室の特徴
-
一人暮らしに人気の設備

-
カップルに人気の設備

-
家族に人気の設備

-
夫婦に人気の設備

-
三世代で人気の設備

-
外で子どもと遊びたい

-
急な来客でも駐車したい

-
雨の日でも洗濯したい

-
洋室で暮らしたい

-
ガーデニングが好き

契約条件
ペットの飼育もご相談ください。 また、ご契約時に保証人は不要です。 敷金と礼金が無料なため、初期費用が比較的安くなる傾向にあります。
室内設備
システムキッチンには、ガスコンロが備え付けられています。 お風呂とトイレは別です。お風呂には、追い焚き機能が備わっています。 トイレは、温水洗浄便座機能付きになります。 女性に嬉しい設備の独立した洗面化粧台があります。 洗濯に便利な設備として、室内洗濯機置場があります。
居室状況
居室には、和室の居室もあり、子育てやリラックススペースとしての利用もできます。 お部屋の床は、フローリングとなっています。
建物設備共用部分
居室外の専有スペースとして、洗濯物を干すなどの用途として利用できるバルコニーがあります。 駐車場があり2台以上の車で利用することができます。
周辺施設
この物件の学区は、西小学校区・吉見中学校区です。
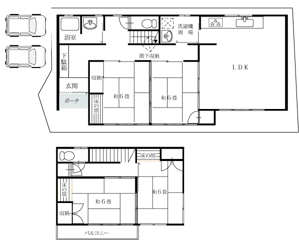
吉見町日本家屋戸建て 1号室の間取り
間取り:4LDK
間取詳細:4LDK(和6・和6・和0)
専有面積:106.83㎡
方位:ー
部屋位置:角部屋
吉見町日本家屋戸建て 1号室の設備
キッチン
システムキッチン
ガスコンロ
バス・トイレ
バス・トイレ別
追い焚き
温水洗浄便座
独立洗面台
バルコニー
バルコニー
ルーフバルコニー
室内設備
フローリング
室内洗濯機置場
和室あり
位置・立地
1階
角部屋
インフラ
プロパンガス
建物設備
駐車2台以上可
入居条件
ペット可・相談
保証人不要
ライフステージ
一人暮らしに人気の設備
カップルに人気の設備
家族に人気の設備
夫婦に人気の設備
三世代で人気の設備
こだわり
外で子どもと遊びたい
急な来客でも駐車したい
雨の日でも洗濯したい
洋室で暮らしたい
趣味
ガーデニングが好き
吉見町日本家屋戸建て 1号室の賃貸契約情報
毎月支払う |
家賃7.8万円/月共益費- |
|---|---|
初期費用 |
敷金-礼金-保証金-敷引き償却金- |
更新料 |
39,000円 |
鍵交換費用 |
27,500円 |
室内清掃費用 |
110,000円 |
あんしんコール24 |
19,800円 |
除菌消臭サポート |
16,500円 |
駐車場料金 |
空有 賃料に含む |
損保・ |
借家賠付きの火災保険にご加入いただきます。 |
保証会社 |
加入要 保証会社利用料:初回50% |
契約期間 |
2年 |
入居可能日 |
2026年06月中旬 |
フリーレント期間 |
- |
取引形態 |
一般媒介 |
備考 |
ペット飼育時敷金積み増し料金(償却)有り |
吉見町日本家屋戸建て 1号室の建物情報
建物名称 |
吉見町日本家屋戸建て |
|---|---|
最寄駅 |
|
所在地 |
埼玉県比企郡吉見町大字長谷 |
階層 |
1階部分(地上2階建) |
構造 |
木造 |
築年数 |
1992年4月(築34年) |
駐車場 |
空有 賃料に含む |
小学校学区 |
西小学校 |
中学校学区 |
吉見中学校 |
- 学区データについて
- ※学区データは必ずしも正確とは限りません。詳細に関しては最寄店舗または各自治体の教育委員会に必ずご確認ください。
無料この物件に問い合わせ
- 吉見町日本家屋戸建て 1号室

-
7.8万円
(共益費
-)
- 敷
- -
- 礼
- -
- 保
- -
- 償
- -
吉見町日本家屋戸建て 1号室の物件のお問い合わせ先・取り扱い店舗
ハウスコム 上尾店
- アクセス
-
高崎線「上尾駅」西口徒歩1分
- 住所
- 〒362-0042 埼玉県上尾市谷津2丁目1−50−32 アルファビル 1階
- 営業時間
- 10:00~18:00
- 定休日
- なし
- 営業エリア
- 上尾市,伊奈町,桶川市、北本市、鴻巣市、羽生市、加須市
- 取引態様
- 賃貸仲介業











