S-RESIDENCE板橋大山 403号室(4階/1K)の賃貸物件(賃貸マンション)
東京都板橋区にあるS-RESIDENCE板橋大山 403号室はバス・トイレ別、独立洗面台、宅配ボックス、2階以上、ペット可・相談などが特徴です。最寄り駅の東武東上線下板橋駅から徒歩10分です。S-RESIDENCE板橋大山 403号室の詳細はハウスコム 赤羽店までお気軽にお問い合わせください!
情報更新日:
次回更新予定日:
※次回更新予定日について:お店側では順次空室確認を行っていますが、次回更新予定日までに空室確認が行えない場合には、この物件情報は自動的に削除されます。
S-RESIDENCE板橋大山 403号室の賃貸物件部屋概要
家賃 |
10.45万円
初期費用を |
|---|---|
共益費 |
10,000円
入居可能時期 |
敷金/礼金 |
- / - |
保証金/ |
- / - |
最寄駅 |
|
所在地 |
東京都板橋区熊野町 |
部屋番号 |
403号室 |
間取り |
1K |
専有面積 |
25.22㎡ |
築年数 |
2023年7月(築3年) |
階数 |
4階部分(地上12階建) |
方位・位置 |
西 / その他 |
物件種別 |
賃貸マンション |
構造 |
RC |
駐車場 |
- |
小学校学区 |
板橋第七小学校 |
中学校学区 |
板橋第一中学校 |
他の空き部屋 |
306号室 606号室 802号室 |
- 学区データについて
- ※学区データは必ずしも正確とは限りません。詳細に関しては最寄店舗または各自治体の教育委員会に必ずご確認ください。
S-RESIDENCE板橋大山 403号室の特徴
契約条件
ペットの飼育もご相談ください。 敷金と礼金が無料なため、初期費用が比較的安くなる傾向にあります。
セキュリティ
この物件の建物には、オートロックや宅配ボックスが設置されております。
室内設備
システムキッチンが備え付けられています。 トイレは、温水洗浄便座機能付きになります。 女性に嬉しい設備の独立した洗面化粧台があります。 洗濯に便利な設備として、浴室乾燥機も設置されているので、梅雨時の生乾き臭も比較的防ぐことができます。
居室状況
エアコンが設置されています。
建物設備共用部分
建物の共用スペースに、急な外出や不在がちのご家庭の荷物受け取りに便利な宅配ボックスが設置されています。
周辺施設
この物件の学区は、板橋第七小学校区・板橋第一中学校区です。
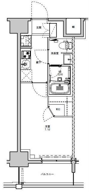
S-RESIDENCE板橋大山 403号室の間取り
間取り:1K
間取詳細:1K
専有面積:25.22㎡
方位:西
部屋位置:その他
S-RESIDENCE板橋大山 403号室の設備
キッチン
システムキッチン
バス・トイレ
バス・トイレ別
浴室乾燥機
温水洗浄便座
独立洗面台
玄関
オートロック
宅配ボックス
室内設備
エアコン
位置・立地
2階以上
インフラ
都市ガス
入居条件
ペット可・相談
ライフステージ
一人暮らしに人気の設備
カップルに人気の設備
家族に人気の設備
夫婦に人気の設備
三世代で人気の設備
こだわり
雨の日でも洗濯したい
S-RESIDENCE板橋大山 403号室の賃貸契約情報
毎月支払う |
家賃10.45万円/月共益費10,000円/月 |
|---|---|
初期費用 |
敷金-礼金-保証金-敷引き償却金- |
更新料 |
- |
鍵交換費用 |
- |
室内清掃費用 |
- |
火災保険料 |
18,000円 |
駐車場料金 |
- |
損保・ |
借家賠付きの火災保険にご加入いただきます。 |
保証会社 |
|
契約期間 |
2年 |
入居可能日 |
相談 |
フリーレント期間 |
- |
取引形態 |
一般媒介 |
備考 |
- |
S-RESIDENCE板橋大山 403号室の建物情報
建物名称 |
S-RESIDENCE板橋大山 |
|---|---|
最寄駅 |
|
所在地 |
東京都板橋区熊野町 |
階層 |
4階部分(地上12階建) |
構造 |
RC |
築年数 |
2023年7月(築3年) |
駐車場 |
- |
小学校学区 |
板橋第七小学校 |
中学校学区 |
板橋第一中学校 |
- 学区データについて
- ※学区データは必ずしも正確とは限りません。詳細に関しては最寄店舗または各自治体の教育委員会に必ずご確認ください。
無料この物件に問い合わせ
- S-RESIDENCE板橋大山 403号室

-
10.45万円
(共益費
10,000円)
- 敷
- -
- 礼
- -
- 保
- -
- 償
- -
S-RESIDENCE板橋大山 403号室の物件のお問い合わせ先・取り扱い店舗
ハウスコム 赤羽店
駅徒歩1分以内
駅徒歩3分以内
駅徒歩5分以内
- アクセス
-
京浜東北・根岸線「赤羽駅」南口徒歩1分
- 住所
- 〒115-0044 東京都北区赤羽南1丁目7−3 厚生堂ビル1階
- 営業時間
- 10:00~18:00
- 定休日
- なし
- 営業エリア
- 北区,板橋区,足立区,川口市,戸田市
- 取引態様
- 賃貸仲介業
お問い合わせNo. HC5-4818797-403-0040

















