i-LAND荻窪 301号室(3階/4LDK)の賃貸物件(賃貸マンション)
東京都杉並区にあるi-LAND荻窪 301号室はシステムキッチン、ガスコンロ、バス・トイレ別、シューズボックス、フローリングなどが特徴です。最寄り駅の総武線・中央線各駅停車荻窪駅から徒歩10分です。i-LAND荻窪 301号室の詳細はハウスコム 荻窪店までお気軽にお問い合わせください!
情報更新日:
次回更新予定日:
※次回更新予定日について:お店側では順次空室確認を行っていますが、次回更新予定日までに空室確認が行えない場合には、この物件情報は自動的に削除されます。
i-LAND荻窪 301号室の賃貸物件部屋概要
家賃 |
73万円
初期費用を |
|---|---|
共益費 |
20,000円
入居可能時期 |
敷金/礼金 |
1ヶ月 / 1ヶ月 |
保証金/ |
- / - |
最寄駅 |
|
所在地 |
東京都杉並区荻窪 |
部屋番号 |
301号室 |
間取り |
4LDK |
専有面積 |
190.28㎡ |
築年数 |
2015年5月(築11年) |
階数 |
3階部分(地上3階建) |
方位・位置 |
東 / その他 |
物件種別 |
賃貸マンション |
構造 |
RC |
駐車場 |
- |
小学校学区 |
桃井第二小学校 |
中学校学区 |
松溪中学校 |
他の空き部屋 |
ー |
- 学区データについて
- ※学区データは必ずしも正確とは限りません。詳細に関しては最寄店舗または各自治体の教育委員会に必ずご確認ください。
i-LAND荻窪 301号室の特徴
セキュリティ
この物件の建物には、オートロックや宅配ボックスが設置されており、来客時には居室内のテレビモニターにて訪問者の顔を確認することができます。
室内設備
システムキッチンには、2つ以上のガスコンロが備え付けられています。 お風呂とトイレは別です。お風呂には、追い焚き機能が備わっています。 トイレは、温水洗浄便座機能付きになります。 女性に嬉しい設備の独立した洗面化粧台があります。 洗濯に便利な設備として、室内洗濯機置場があります。浴室乾燥機も設置されているので、梅雨時の生乾き臭も比較的防ぐことができます。
居室状況
お部屋の床は、フローリングとなっています。照明器具が備え付けられており、入居後すぐ生活が始められます。 収納スペースとして、基本的な居室にクローゼットを設置、玄関にはシューズボックスがあります。
建物設備共用部分
居室外の専有スペースとして、洗濯物を干すなどの用途として利用できるバルコニーがあります。 建物の共用スペースに、日々の出入に便利なエレベーターや、急な外出や不在がちのご家庭の荷物受け取りに便利な宅配ボックスが設置されています。
周辺施設
この物件の学区は、桃井第二小学校区・松溪中学校区です。
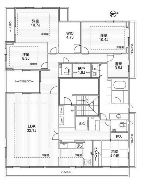
i-LAND荻窪 301号室の間取り
間取り:4LDK
間取詳細:4LDK
専有面積:190.28㎡
方位:東
部屋位置:その他
i-LAND荻窪 301号室の設備
キッチン
システムキッチン
ガスコンロ
ガスコンロ二口以上
バス・トイレ
バス・トイレ別
追い焚き
浴室乾燥機
温水洗浄便座
独立洗面台
玄関
TVモニタ付インターホン
オートロック
宅配ボックス
収納
クローゼット
シューズボックス
バルコニー
バルコニー
ルーフバルコニー
室内設備
フローリング
室内洗濯機置場
照明器具付
位置・立地
2階以上
最上階
インフラ
インターネット可
BS
都市ガス
建物設備
エレベーター
ライフステージ
一人暮らしに人気の設備
カップルに人気の設備
家族に人気の設備
夫婦に人気の設備
三世代で人気の設備
こだわり
外で子どもと遊びたい
雨の日でも洗濯したい
洋室で暮らしたい
趣味
ガーデニングが好き
i-LAND荻窪 301号室の賃貸契約情報
毎月支払う |
家賃73万円/月共益費20,000円/月 |
|---|---|
初期費用 |
敷金1ヶ月 (73万円)礼金1ヶ月 (73万円)保証金-敷引き償却金- |
更新料 |
730,000円 |
鍵交換費用 |
24,200円 |
室内清掃費用 |
- |
24時間サポート |
16,500円 |
Goodプレミアム会員登録料 |
3,300円 |
駐車場料金 |
- |
損保・ |
借家賠付きの火災保険にご加入いただきます。 |
保証会社 |
加入要 保証会社利用料:必須 |
契約期間 |
2年 |
入居可能日 |
2026年04月下旬 |
フリーレント期間 |
- |
取引形態 |
一般媒介 |
備考 |
- |
i-LAND荻窪 301号室の建物情報
建物名称 |
i-LAND荻窪 |
|---|---|
最寄駅 |
|
所在地 |
東京都杉並区荻窪 |
階層 |
3階部分(地上3階建) |
構造 |
RC |
築年数 |
2015年5月(築11年) |
駐車場 |
- |
小学校学区 |
桃井第二小学校 |
中学校学区 |
松溪中学校 |
- 学区データについて
- ※学区データは必ずしも正確とは限りません。詳細に関しては最寄店舗または各自治体の教育委員会に必ずご確認ください。
無料この物件に問い合わせ
- i-LAND荻窪 301号室

-
73万円
(共益費
20,000円)
- 敷
- 1ヶ月
- 礼
- 1ヶ月
- 保
- -
- 償
- -
i-LAND荻窪 301号室の物件のお問い合わせ先・取り扱い店舗
ハウスコム 荻窪店
- アクセス
-
中央本線(JR東日本)「荻窪駅」徒歩1分
- 住所
- 〒167-0051 東京都杉並区荻窪5-28-12 サカエビル8階
- 営業時間
- 10:00~18:00
- 定休日
- 水曜日
- 営業エリア
- 杉並区,中野区、練馬区、武蔵野市
- 取引態様
- 賃貸仲介業




















