シュロス桜新町 ***号室(2階/1DK)の賃貸物件(賃貸アパート)
東京都世田谷区にあるシュロス桜新町 ***号室はバルコニー、エアコン、室内洗濯機置場、最上階、都市ガスなどが特徴です。最寄り駅の東急田園都市線桜新町駅から徒歩1分です。シュロス桜新町 ***号室の詳細はハウスコム 桜新町店までお気軽にお問い合わせください!
情報更新日:
次回更新予定日:
※次回更新予定日について:お店側では順次空室確認を行っていますが、次回更新予定日までに空室確認が行えない場合には、この物件情報は自動的に削除されます。
シュロス桜新町 ***号室の賃貸物件部屋概要
家賃 |
7.6万円
初期費用を |
|---|---|
共益費 |
2,000円
入居可能時期 |
敷金/礼金 |
1ヶ月 / 1ヶ月 |
保証金/ |
- / - |
最寄駅 |
|
所在地 |
東京都世田谷区桜新町 |
部屋番号 |
***号室 |
間取り |
1DK(DK6・和6) |
専有面積 |
26.00㎡ |
築年数 |
1988年5月(築38年) |
階数 |
2階部分(地上2階建) |
方位・位置 |
ー / その他 |
物件種別 |
賃貸アパート |
構造 |
木造 |
駐車場 |
- |
小学校学区 |
桜町小学校 |
中学校学区 |
深沢中学校 |
他の空き部屋 |
ー |
- 学区データについて
- ※学区データは必ずしも正確とは限りません。詳細に関しては最寄店舗または各自治体の教育委員会に必ずご確認ください。
シュロス桜新町 ***号室の特徴
セキュリティ
来客時には居室内のテレビモニターにて訪問者の顔を確認することができます。
室内設備
洗濯に便利な設備として、室内洗濯機置場があります。
居室状況
居室には、和室の居室もあり、子育てやリラックススペースとしての利用もできます。 エアコンが設置されています。
建物設備共用部分
居室外の専有スペースとして、洗濯物を干すなどの用途として利用できるバルコニーがあります。
周辺施設
この物件の学区は、桜町小学校区・深沢中学校区です。
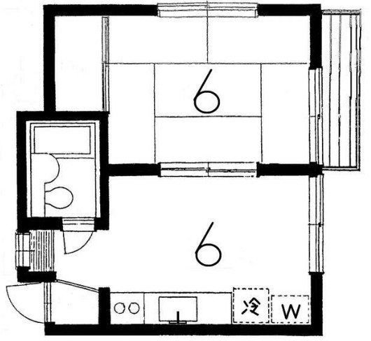
シュロス桜新町 ***号室の間取り
間取り:1DK
間取詳細:1DK(DK6・和6)
専有面積:26.00㎡
方位:ー
部屋位置:その他
シュロス桜新町 ***号室の設備
玄関
TVモニタ付インターホン
バルコニー
バルコニー
ルーフバルコニー
室内設備
エアコン
室内洗濯機置場
和室あり
位置・立地
2階以上
最上階
インフラ
インターネット可
都市ガス
ライフステージ
一人暮らしに人気の設備
カップルに人気の設備
家族に人気の設備
夫婦に人気の設備
三世代で人気の設備
こだわり
外で子どもと遊びたい
雨の日でも洗濯したい
趣味
ガーデニングが好き
シュロス桜新町 ***号室の賃貸契約情報
毎月支払う |
家賃7.6万円/月共益費2,000円/月 |
|---|---|
初期費用 |
敷金1ヶ月 (7.6万円)礼金1ヶ月 (7.6万円)保証金-敷引き償却金- |
更新料 |
76,000円 |
鍵交換費用 |
22,000円 |
室内清掃費用 |
33,000円 |
エアコンクリーニング費用 |
13,200円 |
駐車場料金 |
- |
損保・ |
借家賠付きの火災保険にご加入いただきます。 |
保証会社 |
加入要 保証会社利用料:総賃料の70%~ 以後1年毎に1万円 |
契約期間 |
2年 |
入居可能日 |
2026年04月中旬 |
フリーレント期間 |
- |
取引形態 |
一般媒介 |
備考 |
- |
シュロス桜新町 ***号室の建物情報
建物名称 |
シュロス桜新町 |
|---|---|
最寄駅 |
|
所在地 |
東京都世田谷区桜新町 |
階層 |
2階部分(地上2階建) |
構造 |
木造 |
築年数 |
1988年5月(築38年) |
駐車場 |
- |
小学校学区 |
桜町小学校 |
中学校学区 |
深沢中学校 |
1/10 外観
- 学区データについて
- ※学区データは必ずしも正確とは限りません。詳細に関しては最寄店舗または各自治体の教育委員会に必ずご確認ください。
無料この物件に問い合わせ
- シュロス桜新町 ***号室

-
7.6万円
(共益費
2,000円)
- 敷
- 1ヶ月
- 礼
- 1ヶ月
- 保
- -
- 償
- -
シュロス桜新町 ***号室の物件のお問い合わせ先・取り扱い店舗
ハウスコム 桜新町店
土日営業
- アクセス
-
東急田園都市線「桜新町駅」徒歩3分
- 住所
- 〒154-0015 東京都世田谷区桜新町1丁目17−13 GBJ桜新町ビル3階
- 営業時間
- 10:00~18:00
- 定休日
- 水曜日
- 営業エリア
- 世田谷区、目黒区、神奈川県
- 取引態様
- 賃貸仲介業
お問い合わせNo. HC2-207927-201-0016



























