エルデンシア南大泉 105号室(1階/2SLDK)の賃貸物件(賃貸マンション)
東京都練馬区にあるエルデンシア南大泉 105号室はカウンターキッチン、ガスコンロ、ルーフバルコニー、フローリング、エレベーターなどが特徴です。最寄り駅の西武新宿線武蔵関駅から徒歩16分です。エルデンシア南大泉 105号室の詳細はハウスコム 吉祥寺店までお気軽にお問い合わせください!
情報更新日:
次回更新予定日:
※次回更新予定日について:お店側では順次空室確認を行っていますが、次回更新予定日までに空室確認が行えない場合には、この物件情報は自動的に削除されます。
エルデンシア南大泉 105号室の賃貸物件部屋概要
家賃 |
18万円
初期費用を |
|---|---|
共益費 |
20,000円
入居可能時期 |
敷金/礼金 |
- / 1ヶ月 |
保証金/ |
- / - |
最寄駅 |
|
所在地 |
東京都練馬区南大泉 |
部屋番号 |
105号室 |
間取り |
2SLDK(LDK0) |
専有面積 |
67.65㎡ |
築年数 |
2011年11月(築15年) |
階数 |
1階部分(地上7階建) |
方位・位置 |
東 / その他 |
物件種別 |
賃貸マンション |
構造 |
RC |
駐車場 |
- |
小学校学区 |
大泉第二小学校 |
中学校学区 |
関中学校 |
他の空き部屋 |
205号室 215号室 |
- 学区データについて
- ※学区データは必ずしも正確とは限りません。詳細に関しては最寄店舗または各自治体の教育委員会に必ずご確認ください。
エルデンシア南大泉 105号室の特徴
-
一人暮らしに人気の設備

-
カップルに人気の設備

-
家族に人気の設備

-
夫婦に人気の設備

-
三世代で人気の設備

-
キッチン重視

-
タイパ重視

-
外で子どもと遊びたい

-
雨の日でも洗濯したい

-
洋室で暮らしたい

-
自炊が多めなあなたに

-
料理が好き

-
推し活グッズを飾りたい

-
ガーデニングが好き

契約条件
この物件は、2人入居もご契約できます。 ペットの飼育もご相談ください。 また、ご契約時に保証人は不要です。 敷金が無料なため、初期費用が比較的安くなる傾向にあります。
セキュリティ
この物件の建物には、オートロックや防犯カメラや宅配ボックスが設置されており、来客時には居室内のテレビモニターにて訪問者の顔を確認することができます。
室内設備
システムキッチンには、ガスコンロが設置されており、キッチン設備として食洗機が備え付けられています。 お風呂とトイレは別です。お風呂には、追い焚き機能が備わっています。 トイレは、温水洗浄便座機能付きになります。 女性に嬉しい設備の独立した洗面化粧台があります。 洗濯に便利な設備として、室内洗濯機置場があります。浴室乾燥機も設置されているので、梅雨時の生乾き臭も比較的防ぐことができます。
居室状況
お部屋の床は、フローリングとなっており、エアコンと一部床下暖房が設置されています。 照明器具が備え付けられており、入居後すぐ生活が始められます。 収納スペースとして、基本的な居室にクローゼットを設置、玄関にはシューズボックスがあります。
建物設備共用部分
居室外の専有スペースとして、洗濯物を干すなどの用途として利用できるバルコニーがあります。 建物の共用スペースに、日々の出入に便利なエレベーターや、いざという時の防犯カメラや、急な外出や不在がちのご家庭の荷物受け取りに便利な宅配ボックスや、居室内を常に清潔に保てる24時間利用可能なゴミ捨て置き場が設置されています。 駐輪場が利用できます。
周辺施設
この物件の学区は、大泉第二小学校区・関中学校区です。
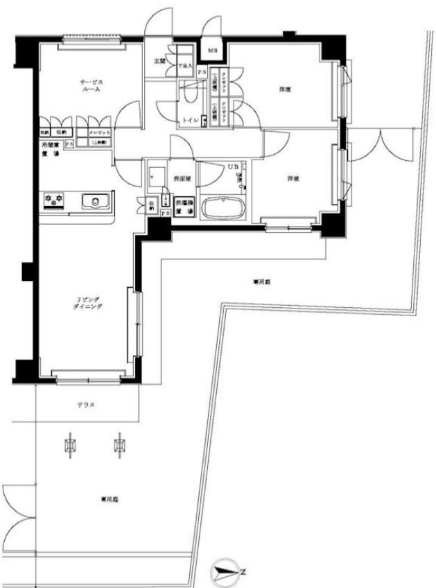
エルデンシア南大泉 105号室の間取り
間取り:2SLDK
間取詳細:2SLDK(LDK0)
専有面積:67.65㎡
方位:東
部屋位置:その他
エルデンシア南大泉 105号室の設備
キッチン
システムキッチン
カウンターキッチン
ガスコンロ
食洗機
バス・トイレ
バス・トイレ別
追い焚き
浴室乾燥機
温水洗浄便座
独立洗面台
玄関
TVモニタ付インターホン
オートロック
宅配ボックス
収納
クローゼット
シューズボックス
バルコニー
バルコニー
ルーフバルコニー
室内設備
エアコン
フローリング
床下暖房
室内洗濯機置場
照明器具付
位置・立地
1階
インフラ
インターネット可
BS
CS
都市ガス
建物設備
エレベーター
防犯カメラ
24時間ゴミ出しOK
駐輪場
入居条件
ペット可・相談
2人入居可
オンライン相談可
オンライン内見可
保証人不要
ライフステージ
一人暮らしに人気の設備
カップルに人気の設備
家族に人気の設備
夫婦に人気の設備
三世代で人気の設備
こだわり
キッチン重視
タイパ重視
外で子どもと遊びたい
雨の日でも洗濯したい
洋室で暮らしたい
自炊が多めなあなたに
趣味
料理が好き
推し活グッズを飾りたい
ガーデニングが好き
エルデンシア南大泉 105号室の賃貸契約情報
毎月支払う |
家賃18万円/月共益費20,000円/月 |
|---|---|
初期費用 |
敷金-礼金1ヶ月 (18万円)保証金-敷引き償却金- |
更新料 |
180,000円 |
鍵交換費用 |
27,500円 |
室内清掃費用 |
88,000円 |
TFDClub |
20,000円 |
駐車場料金 |
- |
損保・ |
借家賠付きの火災保険にご加入いただきます。 |
保証会社 |
加入要 保証会社利用料:初回保証料30%(家賃+管理費)年間保証料10,000円 ※学生初回保証料9,000円(学生契約可能) |
契約期間 |
2年 |
入居可能日 |
2026年06月中旬 |
フリーレント期間 |
- |
取引形態 |
一般媒介 |
備考 |
ペット飼育時敷金2ヶ月追加小型犬or猫2匹まで可 駐輪場:有料 |
エルデンシア南大泉 105号室の建物情報
建物名称 |
エルデンシア南大泉 |
|---|---|
最寄駅 |
|
所在地 |
東京都練馬区南大泉 |
階層 |
1階部分(地上7階建) |
構造 |
RC |
築年数 |
2011年11月(築15年) |
駐車場 |
- |
小学校学区 |
大泉第二小学校 |
中学校学区 |
関中学校 |
- 学区データについて
- ※学区データは必ずしも正確とは限りません。詳細に関しては最寄店舗または各自治体の教育委員会に必ずご確認ください。
無料この物件に問い合わせ
- エルデンシア南大泉 105号室

-
18万円
(共益費
20,000円)
- 敷
- -
- 礼
- 1ヶ月
- 保
- -
- 償
- -
エルデンシア南大泉 105号室の物件のお問い合わせ先・取り扱い店舗
ハウスコム 吉祥寺店
- アクセス
-
中央本線(JR東日本)「吉祥寺駅」公園口徒歩1分
- 住所
- 〒180-0003 東京都武蔵野市吉祥寺南町1丁目3−1 吉祥寺駅前井口ビル 2F
- 営業時間
- 10:00~18:00
- 定休日
- なし
- 営業エリア
- 武蔵野市・三鷹市・杉並区・練馬区・小金井市・調布市
- 取引態様
- 賃貸仲介業


























