グランソフィアH20 A号室(1階/4LDK)の賃貸物件(賃貸一戸建て)
東京都八王子市にあるグランソフィアH20 A号室はクローゼット、エアコン、フローリング、1階、インターネット可などが特徴です。最寄り駅の中央本線(JR東日本)八王子駅からバスで24分、中野団地から徒歩3分です。グランソフィアH20 A号室の詳細はハウスコム 八王子店までお気軽にお問い合わせください!
情報更新日:
次回更新予定日:
※次回更新予定日について:お店側では順次空室確認を行っていますが、次回更新予定日までに空室確認が行えない場合には、この物件情報は自動的に削除されます。
グランソフィアH20 A号室の賃貸物件部屋概要
家賃 |
16万円
初期費用を |
|---|---|
共益費 |
-
入居可能時期 |
敷金/礼金 |
1ヶ月 / 1ヶ月 |
保証金/ |
- / - |
最寄駅 |
|
所在地 |
東京都八王子市中野町 |
部屋番号 |
A号室 |
間取り |
4LDK(洋6×3・洋5.2・LDK18) |
専有面積 |
91.08㎡ |
築年数 |
新築 |
階数 |
1階部分(地上2階建) |
方位・位置 |
南西 / 角部屋 |
物件種別 |
賃貸一戸建て |
構造 |
木造 |
駐車場 |
空有 賃料に含む |
小学校学区 |
清水小学校 |
中学校学区 |
甲ノ原中学校 |
他の空き部屋 |
B号室 C号室 |
- 学区データについて
- ※学区データは必ずしも正確とは限りません。詳細に関しては最寄店舗または各自治体の教育委員会に必ずご確認ください。
グランソフィアH20 A号室の特徴
-
一人暮らしに人気の設備

-
カップルに人気の設備

-
家族に人気の設備

-
夫婦に人気の設備

-
三世代で人気の設備

-
収納重視

-
外で子どもと遊びたい

-
子どもと一緒に広いお風呂に入りたい

-
雨の日でも洗濯したい

-
洋室で暮らしたい

-
持ち物をスッキリ隠す収納部屋

-
料理が好き

-
推し活グッズを飾りたい

-
ガーデニングが好き

契約条件
この物件は、入居者が学生限定もしくは歓迎で2人入居もご契約できます。 ペットの飼育もご相談ください。 また、ご契約時に保証人は不要です。
セキュリティ
この物件の建物には、宅配ボックスが設置されており、来客時には居室内のテレビモニターにて訪問者の顔を確認することができます。
室内設備
システムキッチンには、ガスコンロが備え付けられています。 お風呂とトイレは別です。お風呂には、追い焚き機能が備わっています。 トイレは、温水洗浄便座機能付きになります。 女性に嬉しい設備のシャワーの付いている洗面化粧台があります。 洗濯に便利な設備として、室内洗濯機置場があります。浴室乾燥機も設置されているので、梅雨時の生乾き臭も比較的防ぐことができます。
居室状況
お部屋の床は、フローリングとなっており、エアコンが設置されています。 照明器具が備え付けられており、入居後すぐ生活が始められます。 収納スペースとして、基本的な居室にクローゼットを設置、玄関にはシューズボックスがあります。
建物設備共用部分
居室外の専有スペースとして、洗濯物を干すなどの用途として利用できるバルコニーがあります。 建物の共用スペースに、急な外出や不在がちのご家庭の荷物受け取りに便利な宅配ボックスが設置されています。 平面駐車場があります。駐輪場、バイク置き場が利用できます。
周辺施設
この物件の学区は、清水小学校区・甲ノ原中学校区です。
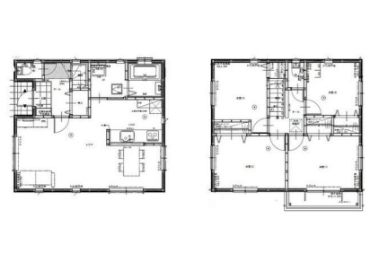
グランソフィアH20 A号室の間取り
間取り:4LDK
間取詳細:4LDK(洋6×3・洋5.2・LDK18)
専有面積:91.08㎡
方位:南西
部屋位置:角部屋
グランソフィアH20 A号室の設備
キッチン
システムキッチン
カウンターキッチン
ガスコンロ
バス・トイレ
バス・トイレ別
追い焚き
浴室乾燥機
温水洗浄便座
独立洗面台
シャワー付洗面化粧台
玄関
TVモニタ付インターホン
宅配ボックス
収納
クローゼット
シューズボックス
全居室収納
バルコニー
バルコニー
ルーフバルコニー
室内設備
エアコン
フローリング
室内洗濯機置場
照明器具付
位置・立地
1階
角部屋
インフラ
インターネット可
都市ガス
建物設備
駐車場
平面駐車場
駐輪場
バイク置き場
入居条件
ペット可・相談
2人入居可
学生限定・歓迎
オンライン相談可
オンライン内見可
保証人不要
ライフステージ
一人暮らしに人気の設備
カップルに人気の設備
家族に人気の設備
夫婦に人気の設備
三世代で人気の設備
こだわり
収納重視
外で子どもと遊びたい
子どもと一緒に広いお風呂に入りたい
雨の日でも洗濯したい
洋室で暮らしたい
持ち物をスッキリ隠す収納部屋
趣味
料理が好き
推し活グッズを飾りたい
ガーデニングが好き
グランソフィアH20 A号室の賃貸契約情報
毎月支払う |
家賃16万円/月共益費- |
|---|---|
初期費用 |
敷金1ヶ月 (16万円)礼金1ヶ月 (16万円)保証金-敷引き償却金- |
更新料 |
160,000円 |
鍵交換費用 |
- |
室内清掃費用 |
- |
駐車場料金 |
空有 賃料に含む |
損保・ |
借家賠付きの火災保険にご加入いただきます。 |
保証会社 |
加入要 保証会社利用料:初回100% |
契約期間 |
- |
入居可能日 |
2026年07月上旬 |
フリーレント期間 |
- |
取引形態 |
一般媒介 |
備考 |
火災保険18000円 1年以内短期違約金家賃等1か月 スマートキー月額1650円 ホームマイスター16500円 室内写真は参考となります。 ペット飼育時敷金積み増し料金(償却)有り |
グランソフィアH20 A号室の建物情報
建物名称 |
グランソフィアH20 |
|---|---|
最寄駅 |
|
所在地 |
東京都八王子市中野町 |
階層 |
1階部分(地上2階建) |
構造 |
木造 |
築年数 |
新築 |
駐車場 |
空有 賃料に含む |
小学校学区 |
清水小学校 |
中学校学区 |
甲ノ原中学校 |
- 学区データについて
- ※学区データは必ずしも正確とは限りません。詳細に関しては最寄店舗または各自治体の教育委員会に必ずご確認ください。
無料この物件に問い合わせ
- グランソフィアH20 A号室

-
16万円
(共益費
-)
- 敷
- 1ヶ月
- 礼
- 1ヶ月
- 保
- -
- 償
- -
グランソフィアH20 A号室の物件のお問い合わせ先・取り扱い店舗
ハウスコム 八王子店
- アクセス
-
中央本線(JR東日本)「八王子駅」北口徒歩3分
- 住所
- 〒192-0085 東京都八王子市中町1−12 Def・Aビル 1階
- 営業時間
- 10:00~18:00
- 定休日
- 水曜日
- 営業エリア
- 八王子市,日野市、福生市、青梅市、あきる野市、昭島市
- 取引態様
- 賃貸仲介業























