菅原の完工年月(2026年3月)築の賃貸アパート ***号室(1階/1DK)の賃貸物件(賃貸アパート)
大阪府大阪市東淀川区にある菅原の完工年月(2026年3月)築の賃貸アパート ***号室はクローゼット、シューズボックス、バルコニー、エアコン、駐輪場などが特徴です。最寄り駅のおおさか東線JR淡路駅から徒歩8分です。菅原の完工年月(2026年3月)築の賃貸アパート ***号室の詳細はクラスモ FC上新庄店までお気軽にお問い合わせください!
情報更新日:
次回更新予定日:
※次回更新予定日について:お店側では順次空室確認を行っていますが、次回更新予定日までに空室確認が行えない場合には、この物件情報は自動的に削除されます。
菅原の完工年月(2026年3月)築の賃貸アパート ***号室の賃貸物件部屋概要
家賃 |
6.45万円
初期費用を |
|---|---|
共益費 |
4,000円
入居可能時期 |
敷金/礼金 |
- / 64,500円 |
保証金/ |
- / - |
最寄駅 |
|
所在地 |
大阪府大阪市東淀川区菅原 |
部屋番号 |
***号室 |
間取り |
1DK(DK7.2・洋3.8) |
専有面積 |
26.28㎡ |
築年数 |
新築 |
階数 |
1階部分(地上4階建) |
方位・位置 |
北東 / 角部屋 |
物件種別 |
賃貸アパート |
構造 |
鉄骨造 |
駐車場 |
19,800円 |
小学校学区 |
菅原小学校 |
中学校学区 |
新東淀中学校 |
他の空き部屋 |
***号室 ***号室 ***号室 ***号室 ***号室 ***号室 ***号室 ***号室 ***号室 ***号室 ***号室 |
- 学区データについて
- ※学区データは必ずしも正確とは限りません。詳細に関しては最寄店舗または各自治体の教育委員会に必ずご確認ください。
菅原の完工年月(2026年3月)築の賃貸アパート ***号室の特徴
契約条件
この物件は、2人入居もご契約できます。 敷金が無料なため、初期費用が比較的安くなる傾向にあります。
セキュリティ
この物件の建物には、オートロックや宅配ボックスが設置されており、来客時には居室内のテレビモニターにて訪問者の顔を確認することができます。
室内設備
システムキッチンには、IHコンロが備え付けられています。 トイレは、温水洗浄便座機能付きになります。 女性に嬉しい設備の独立した洗面化粧台があります。 洗濯に便利な設備として、室内洗濯機置場があります。浴室乾燥機も設置されているので、梅雨時の生乾き臭も比較的防ぐことができます。
居室状況
お部屋の床は、クッションフロアのフローリングとなっており、エアコンが設置されています。 インターネットも無料で入居後すぐ生活が始められます。 収納スペースとして、基本的な居室にクローゼットを設置、玄関にはシューズボックスがあります。
建物設備共用部分
居室外の専有スペースとして、洗濯物を干すなどの用途として利用できるバルコニーがあります。 建物の共用スペースに、急な外出や不在がちのご家庭の荷物受け取りに便利な宅配ボックスが設置されています。 駐輪場が利用できます。
周辺施設
この物件の学区は、菅原小学校区・新東淀中学校区です。近くには、徒歩10分(761m)でドラッグストアがあります。
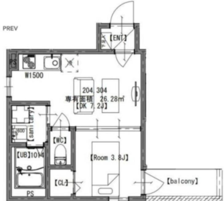
菅原の完工年月(2026年3月)築の賃貸アパート ***号室の間取り
間取り:1DK
間取詳細:1DK(DK7.2・洋3.8)
専有面積:26.28㎡
方位:北東
部屋位置:角部屋
菅原の完工年月(2026年3月)築の賃貸アパート ***号室の設備
キッチン
システムキッチン
IHコンロ
バス・トイレ
バス・トイレ別
浴室乾燥機
温水洗浄便座
独立洗面台
玄関
TVモニタ付インターホン
オートロック
宅配ボックス
収納
クローゼット
シューズボックス
バルコニー
バルコニー
室内設備
エアコン
フローリング
クッションフロア
室内洗濯機置場
位置・立地
1階
角部屋
インフラ
都市ガス
建物設備
駐輪場
入居条件
2人入居可
即入居可
ライフステージ
一人暮らしに人気の設備
カップルに人気の設備
家族に人気の設備
夫婦に人気の設備
三世代で人気の設備
こだわり
雨の日でも洗濯したい
洋室で暮らしたい
趣味
オークション・通販が好き
お得な条件
インターネット無料
菅原の完工年月(2026年3月)築の賃貸アパート ***号室の賃貸契約情報
毎月支払う |
家賃6.45万円/月共益費4,000円/月 |
|---|---|
初期費用 |
敷金-礼金64,500円保証金-敷引き償却金- |
更新料 |
- |
鍵交換費用 |
5,500円 |
室内清掃費用 |
44,000円 |
駐輪場/1台 |
300円 |
駐車場料金 |
19,800円 |
損保・ |
借家賠付きの火災保険にご加入いただきます。 |
保証会社 |
加入要 保証会社:全保連 保証会社利用料:初回契約時:38%、月額:1,890円 |
契約期間 |
2年 |
入居可能日 |
即入居可 |
フリーレント期間 |
- |
取引形態 |
仲介 |
備考 |
賃貸・売買のクラスモ上新庄店では、東淀川区上新庄周辺の不動産賃貸物件(マンション・アパート・戸建)を数多く取り扱っております。阪急上新庄駅は梅田までのアクセスも良く、非常に便利なエリアとなっております。家主様のご希望によりWEB上に掲載できない非公開物件も数多くございますので、ご希望の物件が見つからなかった方はお問い合わせください!ご希望の条件をお伝えいただけましたら最適な物件をご提案いたします! |
菅原の完工年月(2026年3月)築の賃貸アパート ***号室の建物情報
建物名称 |
菅原の完工年月(2026年3月)築の賃貸アパート |
|---|---|
最寄駅 |
|
所在地 |
大阪府大阪市東淀川区菅原 |
階層 |
1階部分(地上4階建) |
構造 |
鉄骨造 |
築年数 |
新築 |
駐車場 |
19,800円 |
小学校学区 |
菅原小学校 |
中学校学区 |
新東淀中学校 |
- 学区データについて
- ※学区データは必ずしも正確とは限りません。詳細に関しては最寄店舗または各自治体の教育委員会に必ずご確認ください。
無料この物件に問い合わせ
- 菅原の完工年月(2026年3月)築の賃貸アパート ***号室

-
6.45万円
(共益費
4,000円)
- 敷
- -
- 礼
- 64,500円
- 保
- -
- 償
- -
菅原の完工年月(2026年3月)築の賃貸アパート ***号室の物件のお問い合わせ先・取り扱い店舗
クラスモ FC上新庄店
- アクセス
-
阪急京都線「上新庄駅」徒歩1分
- 住所
- 〒533-0005 大阪府大阪市東淀川区瑞光1丁目14-39 新高ビル1階
- 営業時間
- 10:00~19:00
- 定休日
- 水曜日(※1月〜4月は定休日なし/年末年始)
- 営業エリア
- 大阪市全域 ・なんば(中央区)以北
- 取引態様
- 賃貸仲介業・物件売買業・FC店






























