グランソフィア三橋5丁目 B号室(1階/3LDK)の賃貸物件(賃貸一戸建て)
埼玉県さいたま市西区にあるグランソフィア三橋5丁目 B号室はバス・トイレ別、TVモニタ付インターホン、クローゼット、エアコン、オンライン内見可などが特徴です。最寄り駅の川越線西大宮駅から2.48kmです。グランソフィア三橋5丁目 B号室の詳細はハウスコム 大宮店までお気軽にお問い合わせください!
情報更新日:
次回更新予定日:
※次回更新予定日について:お店側では順次空室確認を行っていますが、次回更新予定日までに空室確認が行えない場合には、この物件情報は自動的に削除されます。
グランソフィア三橋5丁目 B号室の賃貸物件部屋概要
家賃 |
16.5万円
初期費用を |
|---|---|
共益費 |
-
入居可能時期 |
敷金/礼金 |
1ヶ月 / 1ヶ月 |
保証金/ |
- / - |
最寄駅 |
|
所在地 |
埼玉県さいたま市西区三橋 |
部屋番号 |
B号室 |
間取り |
3LDK(洋6.1・洋6.5・洋5.2・LDK14.9) |
専有面積 |
76.59㎡ |
築年数 |
新築 |
階数 |
1階部分(地上2階建) |
方位・位置 |
西 / その他 |
物件種別 |
賃貸一戸建て |
構造 |
木造 |
駐車場 |
空有 賃料に含む |
小学校学区 |
大宮西小学校 |
中学校学区 |
大宮西中学校 |
他の空き部屋 |
A号室 C号室 D号室 |
- 学区データについて
- ※学区データは必ずしも正確とは限りません。詳細に関しては最寄店舗または各自治体の教育委員会に必ずご確認ください。
グランソフィア三橋5丁目 B号室の特徴
-
一人暮らしに人気の設備

-
カップルに人気の設備

-
家族に人気の設備

-
夫婦に人気の設備

-
三世代で人気の設備

-
外で子どもと遊びたい

-
急な来客でも駐車したい

-
雨の日でも洗濯したい

-
洋室で暮らしたい

-
料理が好き

-
服やおしゃれが好き

-
推し活グッズを飾りたい

-
ガーデニングが好き

契約条件
この物件は、2人入居もご契約できます。 また、ご契約時に保証人は不要です。
セキュリティ
来客時には居室内のテレビモニターにて訪問者の顔を確認することができます。
室内設備
システムキッチンには、IHコンロが備え付けられています。 お風呂とトイレは別です。お風呂には、追い焚き機能が備わっています。 トイレは、温水洗浄便座機能付きになります。 女性に嬉しい設備のシャワーの付いている洗面化粧台があります。 洗濯に便利な設備として、室内洗濯機置場があります。浴室乾燥機も設置されているので、梅雨時の生乾き臭も比較的防ぐことができます。
居室状況
お部屋の床は、フローリングとなっており、エアコンが設置されています。 照明器具が備え付けられており、入居後すぐ生活が始められます。 収納スペースとして、基本的な居室にクローゼットを設置、通常よりも収納力の高いウォークインクローゼット、玄関にはシューズボックスがあります。
建物設備共用部分
居室外の専有スペースとして、洗濯物を干すなどの用途として利用できるバルコニーがあります。 駐車場があり、無料で2台以上の車で利用することができます。
周辺施設
この物件の学区は、大宮西小学校区・大宮西中学校区です。
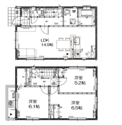
グランソフィア三橋5丁目 B号室の間取り
間取り:3LDK
間取詳細:3LDK(洋6.1・洋6.5・洋5.2・LDK14.9)
専有面積:76.59㎡
方位:西
部屋位置:その他
グランソフィア三橋5丁目 B号室の設備
キッチン
システムキッチン
カウンターキッチン
IHコンロ
バス・トイレ
バス・トイレ別
追い焚き
浴室乾燥機
温水洗浄便座
独立洗面台
シャワー付洗面化粧台
玄関
TVモニタ付インターホン
収納
クローゼット
ウォークインクローゼット
シューズボックス
バルコニー
バルコニー
ルーフバルコニー
室内設備
エアコン
フローリング
室内洗濯機置場
照明器具付
位置・立地
1階
インフラ
インターネット可
プロパンガス
建物設備
駐車2台以上可
入居条件
2人入居可
オンライン相談可
オンライン内見可
保証人不要
ライフステージ
一人暮らしに人気の設備
カップルに人気の設備
家族に人気の設備
夫婦に人気の設備
三世代で人気の設備
こだわり
外で子どもと遊びたい
急な来客でも駐車したい
雨の日でも洗濯したい
洋室で暮らしたい
趣味
料理が好き
服やおしゃれが好き
推し活グッズを飾りたい
ガーデニングが好き
お得な条件
駐車場無料
グランソフィア三橋5丁目 B号室の賃貸契約情報
毎月支払う |
家賃16.5万円/月共益費- |
|---|---|
初期費用 |
敷金1ヶ月 (16.5万円)礼金1ヶ月 (16.5万円)保証金-敷引き償却金- |
更新料 |
165,000円 |
鍵交換費用 |
- |
室内清掃費用 |
- |
ホームマイスター24 |
16,500円 |
自治会費/年 |
3,600円 |
駐車場料金 |
空有 賃料に含む |
損保・ |
借家賠付きの火災保険にご加入いただきます。 |
保証会社 |
加入要 保証会社利用料:初回:総賃料の100%、継続保証料:1年毎に賃料の15% |
契約期間 |
2年 |
入居可能日 |
2026年06月中旬 |
フリーレント期間 |
- |
取引形態 |
一般媒介 |
備考 |
- |
グランソフィア三橋5丁目 B号室の建物情報
建物名称 |
グランソフィア三橋5丁目 |
|---|---|
最寄駅 |
|
所在地 |
埼玉県さいたま市西区三橋 |
階層 |
1階部分(地上2階建) |
構造 |
木造 |
築年数 |
新築 |
駐車場 |
空有 賃料に含む |
小学校学区 |
大宮西小学校 |
中学校学区 |
大宮西中学校 |
- 学区データについて
- ※学区データは必ずしも正確とは限りません。詳細に関しては最寄店舗または各自治体の教育委員会に必ずご確認ください。
無料この物件に問い合わせ
- グランソフィア三橋5丁目 B号室

-
16.5万円
(共益費
-)
- 敷
- 1ヶ月
- 礼
- 1ヶ月
- 保
- -
- 償
- -
グランソフィア三橋5丁目 B号室の物件のお問い合わせ先・取り扱い店舗
ハウスコム 大宮店
- アクセス
-
京浜東北・根岸線「大宮駅」西口徒歩1分
- 住所
- 〒330-0854 埼玉県さいたま市大宮区桜木町1丁目1−4 TS-114ビル 1階
- 営業時間
- 10:00~18:00
- 定休日
- なし
- 営業エリア
- さいたま市中央区,さいたま市北区,さいたま市大宮区,さいたま市桜区,さいたま市西区,さいたま市見沼区,岩槻区,上尾市,北足立郡伊奈町
- 取引態様
- 賃貸仲介業





