コーポサンライト 401号室(4階/3SLDK)の賃貸物件(賃貸マンション)
東京都立川市にあるコーポサンライト 401号室はバス・トイレ別、フローリング、最上階、南向き、都市ガスなどが特徴です。最寄り駅の多摩都市モノレール立飛駅から徒歩11分です。コーポサンライト 401号室の詳細はハウスコム 立川南口店までお気軽にお問い合わせください!
情報更新日:
次回更新予定日:
※次回更新予定日について:お店側では順次空室確認を行っていますが、次回更新予定日までに空室確認が行えない場合には、この物件情報は自動的に削除されます。
コーポサンライト 401号室の賃貸物件部屋概要
家賃 |
11.5万円
初期費用を |
|---|---|
共益費 |
5,000円
入居可能時期 |
敷金/礼金 |
1ヶ月 / - |
保証金/ |
- / - |
最寄駅 |
|
所在地 |
東京都立川市栄町 |
部屋番号 |
401号室 |
間取り |
3SLDK |
専有面積 |
83.00㎡ |
築年数 |
1985年3月(築42年) |
階数 |
4階部分(地上4階建) |
方位・位置 |
南 / その他 |
物件種別 |
賃貸マンション |
構造 |
鉄骨造 |
駐車場 |
- |
小学校学区 |
第五小学校 |
中学校学区 |
立川第二中学校 |
他の空き部屋 |
201号室 |
- 学区データについて
- ※学区データは必ずしも正確とは限りません。詳細に関しては最寄店舗または各自治体の教育委員会に必ずご確認ください。
コーポサンライト 401号室の特徴
契約条件
この物件は、2人入居もご契約できます。 礼金が無料なため、初期費用が比較的安くなる傾向にあります。
室内設備
女性に嬉しい設備の独立した洗面化粧台があります。 洗濯に便利な設備として、室内洗濯機置場があります。
居室状況
お部屋の床は、フローリングとなっており、エアコンが設置されています。
周辺施設
この物件の学区は、第五小学校区・立川第二中学校区です。
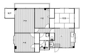
コーポサンライト 401号室の間取り
間取り:3SLDK
間取詳細:3SLDK
専有面積:83.00㎡
方位:南
部屋位置:その他
コーポサンライト 401号室の設備
バス・トイレ
バス・トイレ別
独立洗面台
室内設備
エアコン
フローリング
室内洗濯機置場
位置・立地
2階以上
最上階
南向き
インフラ
CATV
都市ガス
入居条件
2人入居可
即入居可
ライフステージ
一人暮らしに人気の設備
カップルに人気の設備
家族に人気の設備
夫婦に人気の設備
三世代で人気の設備
こだわり
雨の日でも洗濯したい
洋室で暮らしたい
趣味
推し活グッズを飾りたい
コーポサンライト 401号室の賃貸契約情報
毎月支払う |
家賃11.5万円/月共益費5,000円/月 |
|---|---|
初期費用 |
敷金1ヶ月 (11.5万円)礼金-保証金-敷引き償却金- |
更新料 |
115,000円 |
鍵交換費用 |
25,300円 |
室内清掃費用 |
- |
火災保険料 |
23,000円 |
駐車場料金 |
- |
損保・ |
借家賠付きの火災保険にご加入いただきます。 |
保証会社 |
|
契約期間 |
2年 |
入居可能日 |
即入居可 |
フリーレント期間 |
- |
取引形態 |
一般媒介 |
備考 |
- |
コーポサンライト 401号室の建物情報
建物名称 |
コーポサンライト |
|---|---|
最寄駅 |
|
所在地 |
東京都立川市栄町 |
階層 |
4階部分(地上4階建) |
構造 |
鉄骨造 |
築年数 |
1985年3月(築42年) |
駐車場 |
- |
小学校学区 |
第五小学校 |
中学校学区 |
立川第二中学校 |
- 学区データについて
- ※学区データは必ずしも正確とは限りません。詳細に関しては最寄店舗または各自治体の教育委員会に必ずご確認ください。
無料この物件に問い合わせ
- コーポサンライト 401号室

-
11.5万円
(共益費
5,000円)
- 敷
- 1ヶ月
- 礼
- -
- 保
- -
- 償
- -
コーポサンライト 401号室の物件のお問い合わせ先・取り扱い店舗
ハウスコム 立川南口店
駅徒歩1分以内
駅徒歩3分以内
駅徒歩5分以内
- アクセス
-
中央本線(JR東日本)「立川駅」南口徒歩1分
- 住所
- 〒190-0023 東京都立川市柴崎町3丁目6−1 立川Nビル 1階
- 営業時間
- 10:00~18:00
- 定休日
- なし
- 営業エリア
- 立川市・日野市・昭島市・国立市・国分寺市・東大和市・武蔵村山市・福生市・あきる野市・羽村市・青梅市・西多摩郡
- 取引態様
- 賃貸仲介業
お問い合わせNo. HC5-5459366-401-0075














