プレシャス千歳台 102号室(1階/1R)の賃貸物件(賃貸マンション)
東京都世田谷区にあるプレシャス千歳台 102号室は温水洗浄便座、独立洗面台、1階、南向き、オンライン内見可などが特徴です。最寄り駅の小田急小田原線祖師ヶ谷大蔵駅から徒歩15分です。プレシャス千歳台 102号室の詳細はハウスコム 千歳烏山店までお気軽にお問い合わせください!
情報更新日:
次回更新予定日:
※次回更新予定日について:お店側では順次空室確認を行っていますが、次回更新予定日までに空室確認が行えない場合には、この物件情報は自動的に削除されます。
プレシャス千歳台 102号室の賃貸物件部屋概要
家賃 |
24.5万円
初期費用を |
|---|---|
共益費 |
5,000円
入居可能時期 |
敷金/礼金 |
1ヶ月 / 1ヶ月 |
保証金/ |
- / - |
最寄駅 |
|
所在地 |
東京都世田谷区千歳台 |
部屋番号 |
102号室 |
間取り |
1R |
専有面積 |
65.97㎡ |
築年数 |
新築 |
階数 |
1階部分(地上3階建) |
方位・位置 |
南 / 角部屋 |
物件種別 |
賃貸マンション |
構造 |
RC |
駐車場 |
- |
小学校学区 |
ー |
中学校学区 |
ー |
他の空き部屋 |
101号室 201号室 202号室 203号室 204号室 |
- 学区データについて
- ※学区データは必ずしも正確とは限りません。詳細に関しては最寄店舗または各自治体の教育委員会に必ずご確認ください。
プレシャス千歳台 102号室の特徴
契約条件
この物件は、2人入居もご契約できます。 ペットの飼育もご相談ください。 また、ご契約時に保証人は不要です。
セキュリティ
この物件の建物には、宅配ボックスが設置されており、来客時には居室内のテレビモニターにて訪問者の顔を確認することができます。
室内設備
システムキッチンには、ガスコンロが備え付けられています。 トイレは、温水洗浄便座機能付きになります。 女性に嬉しい設備のシャワーの付いている洗面化粧台があります。 洗濯に便利な設備として、室内洗濯機置場があります。
居室状況
エアコンが設置されています。
建物設備共用部分
居室外の専有スペースとして、洗濯物を干すなどの用途として利用できるバルコニーがあります。 建物の共用スペースに、急な外出や不在がちのご家庭の荷物受け取りに便利な宅配ボックスが設置されています。
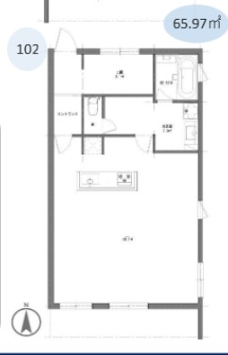
プレシャス千歳台 102号室の間取り
間取り:1R
間取詳細:1R
専有面積:65.97㎡
方位:南
部屋位置:角部屋
プレシャス千歳台 102号室の設備
キッチン
システムキッチン
ガスコンロ
バス・トイレ
バス・トイレ別
温水洗浄便座
独立洗面台
シャワー付洗面化粧台
玄関
TVモニタ付インターホン
宅配ボックス
バルコニー
バルコニー
ルーフバルコニー
室内設備
エアコン
室内洗濯機置場
位置・立地
1階
角部屋
南向き
入居条件
ペット可・相談
2人入居可
オンライン相談可
オンライン内見可
保証人不要
即入居可
ライフステージ
一人暮らしに人気の設備
カップルに人気の設備
家族に人気の設備
夫婦に人気の設備
三世代で人気の設備
こだわり
外で子どもと遊びたい
雨の日でも洗濯したい
趣味
ガーデニングが好き
プレシャス千歳台 102号室の賃貸契約情報
毎月支払う |
家賃24.5万円/月共益費5,000円/月 |
|---|---|
初期費用 |
敷金1ヶ月 (24.5万円)礼金1ヶ月 (24.5万円)保証金-敷引き償却金- |
更新料 |
245,000円 |
鍵交換費用 |
- |
室内清掃費用 |
- |
駐車場料金 |
- |
損保・ |
借家賠付きの火災保険にご加入いただきます。 |
保証会社 |
加入要 保証会社利用料:別途初回保証料 |
契約期間 |
2年 |
入居可能日 |
即入居可 |
フリーレント期間 |
- |
取引形態 |
一般媒介 |
備考 |
クリーニング代82500円 鍵交換38500円 ペット飼育時敷金1か月増額(償却) |
プレシャス千歳台 102号室の建物情報
建物名称 |
プレシャス千歳台 |
|---|---|
最寄駅 |
|
所在地 |
東京都世田谷区千歳台 |
階層 |
1階部分(地上3階建) |
構造 |
RC |
築年数 |
新築 |
駐車場 |
- |
小学校学区 |
ー |
中学校学区 |
ー |
- 学区データについて
- ※学区データは必ずしも正確とは限りません。詳細に関しては最寄店舗または各自治体の教育委員会に必ずご確認ください。
無料この物件に問い合わせ
- プレシャス千歳台 102号室

-
24.5万円
(共益費
5,000円)
- 敷
- 1ヶ月
- 礼
- 1ヶ月
- 保
- -
- 償
- -
プレシャス千歳台 102号室の物件のお問い合わせ先・取り扱い店舗
ハウスコム 千歳烏山店
- アクセス
-
京王線「千歳烏山駅」北口徒歩1分
- 住所
- 〒157-0062 東京都世田谷区南烏山6丁目2−1 駅前ビル 1F
- 営業時間
- 10:00~18:00
- 定休日
- なし
- 営業エリア
- 世田谷区、杉並区、調布市、三鷹市、狛江市
- 取引態様
- 賃貸仲介業


























