ライオンズシティ八王子 ***号室(2階/1R)の賃貸物件(賃貸マンション)
東京都八王子市にあるライオンズシティ八王子 ***号室はガスコンロ、室内洗濯機置場、2階以上、防犯カメラ、オンライン内見可などが特徴です。最寄り駅の中央本線(JR東日本)八王子駅から徒歩9分です。ライオンズシティ八王子 ***号室の詳細はハウスコム 八王子店までお気軽にお問い合わせください!
情報更新日:
次回更新予定日:
※次回更新予定日について:お店側では順次空室確認を行っていますが、次回更新予定日までに空室確認が行えない場合には、この物件情報は自動的に削除されます。
ライオンズシティ八王子 ***号室の賃貸物件部屋概要
家賃 |
5.3万円
初期費用を |
|---|---|
共益費 |
-
入居可能時期 |
敷金/礼金 |
1ヶ月 / - |
保証金/ |
- / - |
最寄駅 |
|
所在地 |
東京都八王子市元横山町 |
部屋番号 |
***号室 |
間取り |
1R(洋6.5) |
専有面積 |
18.76㎡ |
築年数 |
1993年5月(築33年) |
階数 |
2階部分(地上8階建) |
方位・位置 |
西 / その他 |
物件種別 |
賃貸マンション |
構造 |
その他 |
駐車場 |
無 |
小学校学区 |
第一小学校 |
中学校学区 |
第五中学校 |
他の空き部屋 |
***号室 ***号室 |
- 学区データについて
- ※学区データは必ずしも正確とは限りません。詳細に関しては最寄店舗または各自治体の教育委員会に必ずご確認ください。
ライオンズシティ八王子 ***号室の特徴
-
一人暮らしに人気の設備

-
カップルに人気の設備

-
家族に人気の設備

-
夫婦に人気の設備

-
三世代で人気の設備

-
セキュリティ対策重視

-
収納重視

-
外で子どもと遊びたい

-
雨の日でも洗濯したい

-
洋室で暮らしたい

-
持ち物をスッキリ隠す収納部屋

-
推し活グッズを飾りたい

-
ガーデニングが好き

契約条件
ご契約時に保証人は不要です。 礼金が無料なため、初期費用が比較的安くなる傾向にあります。 お支払いは、初期費用と家賃がクレジットカードにて決済できます。
セキュリティ
この物件の建物には、オートロックや防犯カメラや宅配ボックスが設置されており、来客時には居室内のテレビモニターにて訪問者の顔を確認することができます。
室内設備
システムキッチンには、ガスコンロが備え付けられています。 洗濯に便利な設備として、室内洗濯機置場があります。
居室状況
お部屋の床は、フローリングとなっており、エアコンが設置されています。 照明器具が備え付けられており、入居後すぐ生活が始められます。 収納スペースとして、基本的な居室にクローゼットを設置、玄関にはシューズボックスがあります。
建物設備共用部分
居室外の専有スペースとして、洗濯物を干すなどの用途として利用できるバルコニーがあります。 建物の共用スペースに、日々の出入に便利なエレベーターや、いざという時の防犯カメラや、急な外出や不在がちのご家庭の荷物受け取りに便利な宅配ボックスが設置されています。 駐輪場が利用できます。
周辺施設
この物件の学区は、第一小学校区・第五中学校区です。
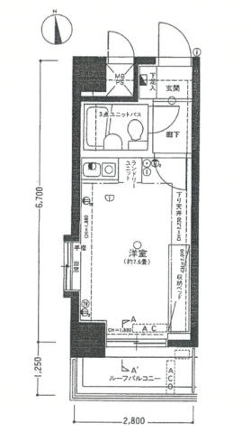
ライオンズシティ八王子 ***号室の間取り
間取り:1R
間取詳細:1R(洋6.5)
専有面積:18.76㎡
方位:西
部屋位置:その他
ライオンズシティ八王子 ***号室の設備
キッチン
システムキッチン
ガスコンロ
玄関
TVモニタ付インターホン
オートロック
宅配ボックス
収納
クローゼット
シューズボックス
全居室収納
バルコニー
バルコニー
ルーフバルコニー
室内設備
エアコン
フローリング
室内洗濯機置場
照明器具付
位置・立地
2階以上
インフラ
インターネット可
都市ガス
建物設備
エレベーター
防犯カメラ
駐輪場
入居条件
オンライン相談可
オンライン内見可
保証人不要
ライフステージ
一人暮らしに人気の設備
カップルに人気の設備
家族に人気の設備
夫婦に人気の設備
三世代で人気の設備
こだわり
セキュリティ対策重視
収納重視
外で子どもと遊びたい
雨の日でも洗濯したい
洋室で暮らしたい
持ち物をスッキリ隠す収納部屋
趣味
推し活グッズを飾りたい
ガーデニングが好き
お得な条件
初期費用カード決済可
家賃カード決済可
ライオンズシティ八王子 ***号室の賃貸契約情報
毎月支払う |
家賃5.3万円/月共益費- |
|---|---|
初期費用 |
敷金1ヶ月 (5.3万円)礼金-保証金-敷引き償却金- |
更新料 |
53,000円 |
鍵交換費用 |
- |
室内清掃費用 |
- |
駐車場料金 |
無 |
損保・ |
借家賠付きの火災保険にご加入いただきます。 |
保証会社 |
加入要 保証会社利用料:加入要 エポスカード ※〔初回保証委託料〕家賃+管理費×50%〔月々〕家賃+管理費×1.4% |
契約期間 |
2年 |
入居可能日 |
相談 |
フリーレント期間 |
- |
取引形態 |
一般媒介 |
備考 |
保険等加入 加入要 / 2年間 18000円 その他一時金 24時間安心サポート:16500円、 鍵交換代:25300円、 消火剤:5500円 |
ライオンズシティ八王子 ***号室の建物情報
建物名称 |
ライオンズシティ八王子 |
|---|---|
最寄駅 |
|
所在地 |
東京都八王子市元横山町 |
階層 |
2階部分(地上8階建) |
構造 |
その他 |
築年数 |
1993年5月(築33年) |
駐車場 |
無 |
小学校学区 |
第一小学校 |
中学校学区 |
第五中学校 |
- 学区データについて
- ※学区データは必ずしも正確とは限りません。詳細に関しては最寄店舗または各自治体の教育委員会に必ずご確認ください。
無料この物件に問い合わせ
- ライオンズシティ八王子 ***号室

-
5.3万円
(共益費
-)
- 敷
- 1ヶ月
- 礼
- -
- 保
- -
- 償
- -
ライオンズシティ八王子 ***号室の物件のお問い合わせ先・取り扱い店舗
ハウスコム 八王子店
- アクセス
-
中央本線(JR東日本)「八王子駅」北口徒歩3分
- 住所
- 〒192-0085 東京都八王子市中町1−12 Def・Aビル 1階
- 営業時間
- 10:00~18:00
- 定休日
- 水曜日
- 営業エリア
- 八王子市,日野市、福生市、青梅市、あきる野市、昭島市
- 取引態様
- 賃貸仲介業




























