プリメロ湘南 701号室(7階/2LDK)の賃貸物件(賃貸マンション)
神奈川県藤沢市にあるプリメロ湘南 701号室はオートロック、ウォークインクローゼット、2階以上、都市ガス、エレベーターなどが特徴です。最寄り駅の東海道本線(JR東日本)辻堂駅から徒歩5分です。プリメロ湘南 701号室の詳細はハウスコム 辻堂店までお気軽にお問い合わせください!
情報更新日:
次回更新予定日:
※次回更新予定日について:お店側では順次空室確認を行っていますが、次回更新予定日までに空室確認が行えない場合には、この物件情報は自動的に削除されます。
プリメロ湘南 701号室の賃貸物件部屋概要
家賃 |
60万円
初期費用を |
|---|---|
共益費 |
20,000円
入居可能時期 |
敷金/礼金 |
1ヶ月 / 1ヶ月 |
保証金/ |
- / - |
最寄駅 |
|
所在地 |
神奈川県藤沢市辻堂新町 |
部屋番号 |
701号室 |
間取り |
2LDK |
専有面積 |
159.10㎡ |
築年数 |
1992年9月(築34年) |
階数 |
7階部分(地上7階地下1階建) |
方位・位置 |
南 / 角部屋 |
物件種別 |
賃貸マンション |
構造 |
RC |
駐車場 |
無 |
小学校学区 |
羽鳥小学校 |
中学校学区 |
明治中学校 |
他の空き部屋 |
***号室 |
- 学区データについて
- ※学区データは必ずしも正確とは限りません。詳細に関しては最寄店舗または各自治体の教育委員会に必ずご確認ください。
プリメロ湘南 701号室の特徴
契約条件
ペットの飼育もご相談ください。
セキュリティ
この物件の建物には、オートロックが設置されております。
室内設備
システムキッチンには、ガスコンロが備え付けられています。 女性に嬉しい設備の独立した洗面化粧台があります。 洗濯に便利な設備として、室内洗濯機置場があります。
居室状況
収納スペースとして、通常よりも収納力の高いウォークインクローゼット、玄関にはシューズボックス、また、床下収納といったあれば嬉しい用途別収納があります。
建物設備共用部分
建物の共用スペースに、日々の出入に便利なエレベーターが設置されています。
周辺施設
この物件の学区は、羽鳥小学校区・明治中学校区です。
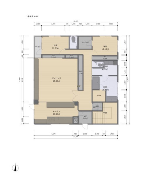
プリメロ湘南 701号室の間取り
間取り:2LDK
間取詳細:2LDK
専有面積:159.10㎡
方位:南
部屋位置:角部屋
プリメロ湘南 701号室の設備
キッチン
システムキッチン
ガスコンロ
バス・トイレ
バス・トイレ別
独立洗面台
玄関
オートロック
収納
ウォークインクローゼット
シューズボックス
床下収納
全居室収納
室内設備
室内洗濯機置場
位置・立地
2階以上
最上階
角部屋
南向き
インフラ
都市ガス
建物設備
エレベーター
入居条件
ペット可・相談
即入居可
ライフステージ
一人暮らしに人気の設備
カップルに人気の設備
家族に人気の設備
夫婦に人気の設備
三世代で人気の設備
こだわり
日当たり重視
雨の日でも洗濯したい
持ち物をスッキリ隠す収納部屋
趣味
服やおしゃれが好き
プリメロ湘南 701号室の賃貸契約情報
毎月支払う |
家賃60万円/月共益費20,000円/月 |
|---|---|
初期費用 |
敷金1ヶ月 (60万円)礼金1ヶ月 (60万円)保証金-敷引き償却金- |
更新料 |
- |
鍵交換費用 |
- |
室内清掃費用 |
- |
駐車場料金 |
無 |
損保・ |
借家賠付きの火災保険にご加入いただきます。 |
保証会社 |
|
契約期間 |
- |
入居可能日 |
即入居可 |
フリーレント期間 |
- |
取引形態 |
一般媒介 |
備考 |
ペット飼育時敷金積み増し料金(償却)有り |
プリメロ湘南 701号室の建物情報
建物名称 |
プリメロ湘南 |
|---|---|
最寄駅 |
|
所在地 |
神奈川県藤沢市辻堂新町 |
階層 |
7階部分(地上7階地下1階建) |
構造 |
RC |
築年数 |
1992年9月(築34年) |
駐車場 |
無 |
小学校学区 |
羽鳥小学校 |
中学校学区 |
明治中学校 |
- 学区データについて
- ※学区データは必ずしも正確とは限りません。詳細に関しては最寄店舗または各自治体の教育委員会に必ずご確認ください。
無料この物件に問い合わせ
- プリメロ湘南 701号室

-
60万円
(共益費
20,000円)
- 敷
- 1ヶ月
- 礼
- 1ヶ月
- 保
- -
- 償
- -
プリメロ湘南 701号室の物件のお問い合わせ先・取り扱い店舗
ハウスコム 辻堂店
- アクセス
-
東海道本線(JR東日本)「辻堂駅」徒歩1分
- 住所
- 〒251-0047 神奈川県藤沢市辻堂2丁目1−2 小浜ビル 1階
- 営業時間
- 10:00~18:00
- 定休日
- 水曜日
- 営業エリア
- 藤沢市、茅ヶ崎市、寒川町、鎌倉市
- 取引態様
- 賃貸仲介業




















