スタイリオ桜新町 901号室(9階/3LDK)の賃貸物件(賃貸マンション)
東京都世田谷区にあるスタイリオ桜新町 901号室はクローゼット、室内洗濯機置場、2階以上、防犯カメラ、即入居可などが特徴です。最寄り駅の東急田園都市線桜新町駅から徒歩8分です。スタイリオ桜新町 901号室の詳細はハウスコム 桜新町店までお気軽にお問い合わせください!
情報更新日:
次回更新予定日:
※次回更新予定日について:お店側では順次空室確認を行っていますが、次回更新予定日までに空室確認が行えない場合には、この物件情報は自動的に削除されます。
スタイリオ桜新町 901号室の賃貸物件部屋概要
家賃 |
38.3万円
初期費用を |
|---|---|
共益費 |
20,000円
入居可能時期 |
敷金/礼金 |
1ヶ月 / - |
保証金/ |
- / - |
最寄駅 |
|
所在地 |
東京都世田谷区新町 |
部屋番号 |
901号室 |
間取り |
3LDK(LDK12.9・洋5・洋5・洋4.6) |
専有面積 |
68.08㎡ |
築年数 |
新築 |
階数 |
9階部分(地上9階建) |
方位・位置 |
北 / 角部屋 |
物件種別 |
賃貸マンション |
構造 |
RC |
駐車場 |
無 |
小学校学区 |
深沢小学校 |
中学校学区 |
深沢中学校 |
他の空き部屋 |
101号室 102号室 103号室 203号室 301号室 302号室 403号室 501号室 502号室 701号室 901号室 |
- 学区データについて
- ※学区データは必ずしも正確とは限りません。詳細に関しては最寄店舗または各自治体の教育委員会に必ずご確認ください。
スタイリオ桜新町 901号室の特徴
契約条件
ご契約時に保証人は不要です。 礼金が無料なため、初期費用が比較的安くなる傾向にあります。
セキュリティ
この物件の建物には、オートロックや防犯カメラや宅配ボックスが設置されており、来客時には居室内のテレビモニターにて訪問者の顔を確認することができます。
室内設備
システムキッチンには、ガスコンロが備え付けられています。 お風呂とトイレは別です。お風呂には、追い焚き機能が備わっています。 トイレは、温水洗浄便座機能付きになります。 女性に嬉しい設備の独立した洗面化粧台があります。 洗濯に便利な設備として、室内洗濯機置場があります。浴室乾燥機も設置されているので、梅雨時の生乾き臭も比較的防ぐことができます。
居室状況
エアコンが設置されています。 収納スペースとして、基本的な居室にクローゼットを設置、玄関にはシューズボックスがあります。
建物設備共用部分
建物の共用スペースに、日々の出入に便利なエレベーターや、いざという時の防犯カメラや、急な外出や不在がちのご家庭の荷物受け取りに便利な宅配ボックスが設置されています。
周辺施設
この物件の学区は、深沢小学校区・深沢中学校区です。
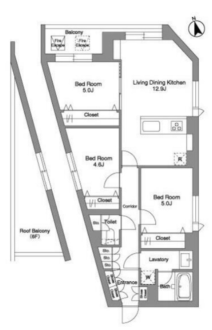
スタイリオ桜新町 901号室の間取り
間取り:3LDK
間取詳細:3LDK(LDK12.9・洋5・洋5・洋4.6)
専有面積:68.08㎡
方位:北
部屋位置:角部屋
スタイリオ桜新町 901号室の設備
キッチン
システムキッチン
ガスコンロ
バス・トイレ
バス・トイレ別
追い焚き
浴室乾燥機
温水洗浄便座
独立洗面台
玄関
TVモニタ付インターホン
オートロック
宅配ボックス
収納
クローゼット
シューズボックス
室内設備
エアコン
室内洗濯機置場
位置・立地
2階以上
最上階
角部屋
インフラ
インターネット可
BS
CS
都市ガス
建物設備
エレベーター
防犯カメラ
入居条件
オンライン相談可
オンライン内見可
保証人不要
即入居可
ライフステージ
一人暮らしに人気の設備
カップルに人気の設備
家族に人気の設備
夫婦に人気の設備
三世代で人気の設備
こだわり
セキュリティ対策重視
雨の日でも洗濯したい
スタイリオ桜新町 901号室の賃貸契約情報
毎月支払う |
家賃38.3万円/月共益費20,000円/月 |
|---|---|
初期費用 |
敷金1ヶ月 (38.3万円)礼金-保証金-敷引き償却金- |
更新料 |
383,000円 |
鍵交換費用 |
- |
室内清掃費用 |
71,200円 |
エアコン清掃費 |
44,000円 |
駐車場料金 |
無 |
損保・ |
借家賠付きの火災保険にご加入いただきます。 |
保証会社 |
加入要 保証会社利用料:初回保証料総賃料50% 月額保証料賃料の1% |
契約期間 |
定期借家 2年 |
入居可能日 |
即入居可 |
フリーレント期間 |
- |
取引形態 |
一般媒介 |
備考 |
フリーレント一か月(賃料のみ) 2年未満解約時違約金賃料一か月分違約金あり |
スタイリオ桜新町 901号室の建物情報
建物名称 |
スタイリオ桜新町 |
|---|---|
最寄駅 |
|
所在地 |
東京都世田谷区新町 |
階層 |
9階部分(地上9階建) |
構造 |
RC |
築年数 |
新築 |
駐車場 |
無 |
小学校学区 |
深沢小学校 |
中学校学区 |
深沢中学校 |
- 学区データについて
- ※学区データは必ずしも正確とは限りません。詳細に関しては最寄店舗または各自治体の教育委員会に必ずご確認ください。
無料この物件に問い合わせ
- スタイリオ桜新町 901号室

-
38.3万円
(共益費
20,000円)
- 敷
- 1ヶ月
- 礼
- -
- 保
- -
- 償
- -
スタイリオ桜新町 901号室の物件のお問い合わせ先・取り扱い店舗
ハウスコム 桜新町店
- アクセス
-
東急田園都市線「桜新町駅」徒歩3分
- 住所
- 〒154-0015 東京都世田谷区桜新町1丁目17−13 GBJ桜新町ビル3階
- 営業時間
- 10:00~18:00
- 定休日
- 水曜日
- 営業エリア
- 世田谷区、目黒区、神奈川県
- 取引態様
- 賃貸仲介業
































