都町五差路戸建 ***号室(1階/6DK)の賃貸物件(賃貸一戸建て)
千葉県千葉市中央区にある都町五差路戸建 ***号室はバス・トイレ別、角部屋、プロパンガス、外国人可・相談、即入居可などが特徴です。最寄り駅の総武本線東千葉駅から3.28kmです。都町五差路戸建 ***号室の詳細はハウスコム 稲毛店までお気軽にお問い合わせください!
情報更新日:
次回更新予定日:
※次回更新予定日について:お店側では順次空室確認を行っていますが、次回更新予定日までに空室確認が行えない場合には、この物件情報は自動的に削除されます。
都町五差路戸建 ***号室の賃貸物件部屋概要
家賃 |
9万円
初期費用を |
|---|---|
共益費 |
-
入居可能時期 |
敷金/礼金 |
- / - |
保証金/ |
- / - |
最寄駅 |
|
所在地 |
千葉県千葉市中央区都町 |
部屋番号 |
***号室 |
間取り |
6DK |
専有面積 |
113.00㎡ |
築年数 |
1967年4月(築59年) |
階数 |
1階部分(地上2階建) |
方位・位置 |
ー / 角部屋 |
物件種別 |
賃貸一戸建て |
構造 |
木造 |
駐車場 |
- |
小学校学区 |
都小学校 |
中学校学区 |
加曽利中学校 |
他の空き部屋 |
ー |
- 学区データについて
- ※学区データは必ずしも正確とは限りません。詳細に関しては最寄店舗または各自治体の教育委員会に必ずご確認ください。
都町五差路戸建 ***号室の特徴
契約条件
この物件は、外国籍の方もご相談の上、ご契約できます。 敷金と礼金が無料なため、初期費用が比較的安くなる傾向にあります。
室内設備
女性に嬉しい設備の独立した洗面化粧台があります。
周辺施設
この物件の学区は、都小学校区・加曽利中学校区です。
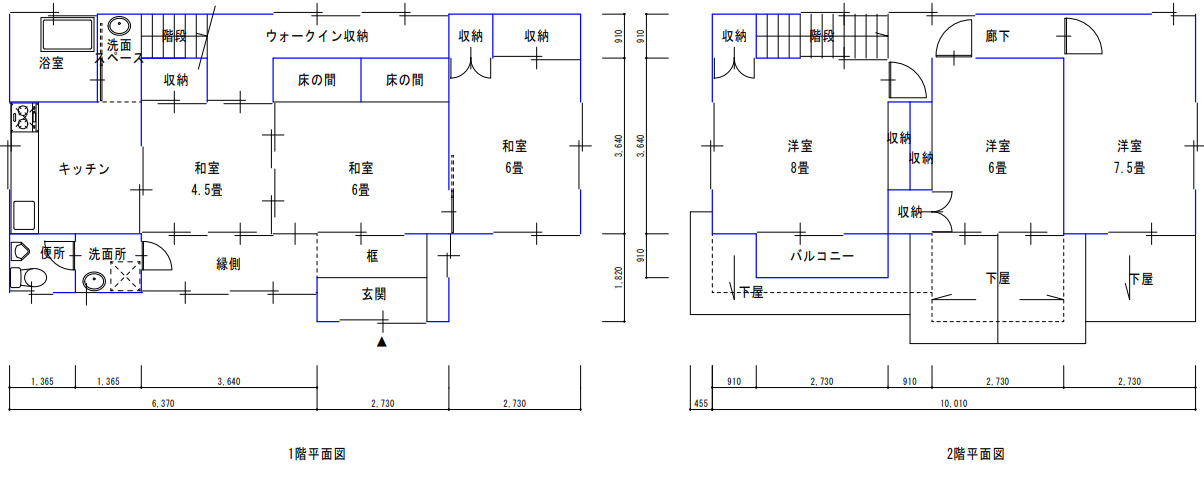
都町五差路戸建 ***号室の間取り
間取り:6DK
間取詳細:6DK
専有面積:113.00㎡
方位:ー
部屋位置:角部屋
都町五差路戸建 ***号室の設備
バス・トイレ
バス・トイレ別
独立洗面台
位置・立地
1階
角部屋
インフラ
プロパンガス
入居条件
外国人可・相談
即入居可
ライフステージ
一人暮らしに人気の設備
カップルに人気の設備
家族に人気の設備
夫婦に人気の設備
三世代で人気の設備
都町五差路戸建 ***号室の賃貸契約情報
毎月支払う |
家賃9万円/月共益費- |
|---|---|
初期費用 |
敷金-礼金-保証金-敷引き償却金- |
更新料 |
90,000円 |
鍵交換費用 |
- |
室内清掃費用 |
- |
駐車場料金 |
- |
損保・ |
借家賠付きの火災保険にご加入いただきます。 |
保証会社 |
加入要 保証会社利用料:初回保証料50% 月額1.5% 1年毎1万円 |
契約期間 |
2年 |
入居可能日 |
即入居可 |
フリーレント期間 |
- |
取引形態 |
一般媒介 |
備考 |
- |
都町五差路戸建 ***号室の建物情報
建物名称 |
都町五差路戸建 |
|---|---|
最寄駅 |
|
所在地 |
千葉県千葉市中央区都町 |
階層 |
1階部分(地上2階建) |
構造 |
木造 |
築年数 |
1967年4月(築59年) |
駐車場 |
- |
小学校学区 |
都小学校 |
中学校学区 |
加曽利中学校 |
1/2 外観
- 学区データについて
- ※学区データは必ずしも正確とは限りません。詳細に関しては最寄店舗または各自治体の教育委員会に必ずご確認ください。
無料この物件に問い合わせ
- 都町五差路戸建 ***号室

-
9万円
(共益費
-)
- 敷
- -
- 礼
- -
- 保
- -
- 償
- -
都町五差路戸建 ***号室の物件のお問い合わせ先・取り扱い店舗
ハウスコム 稲毛店
土日営業
- アクセス
-
総武本線「稲毛駅」徒歩1分
- 住所
- 〒263-0043 千葉県千葉市稲毛区小仲台2-4-11 川島東ビル3階
- 営業時間
- 10:00~18:00
- 定休日
- 水曜日
- 営業エリア
- 千葉市 四街道市 八街市 佐倉市 市原市 習志野市
- 取引態様
- 賃貸仲介業
お問い合わせNo. HC1-5478444-1-0175



















