天沼戸建 1号室(1階/2SLK)の賃貸物件(賃貸一戸建て)
東京都杉並区にある天沼戸建 1号室はIHコンロ、浴室乾燥機、温水洗浄便座、南向き、インターネット可などが特徴です。最寄り駅の東京メトロ 丸ノ内線荻窪駅から徒歩12分です。天沼戸建 1号室の詳細はハウスコム 荻窪店までお気軽にお問い合わせください!
情報更新日:
次回更新予定日:
※次回更新予定日について:お店側では順次空室確認を行っていますが、次回更新予定日までに空室確認が行えない場合には、この物件情報は自動的に削除されます。
天沼戸建 1号室の賃貸物件部屋概要
家賃 |
20万円
初期費用を |
|---|---|
共益費 |
-
入居可能時期 |
敷金/礼金 |
- / 1ヶ月 |
保証金/ |
- / - |
最寄駅 |
|
所在地 |
東京都杉並区天沼 |
部屋番号 |
1号室 |
間取り |
2SLK(和0・洋0・洋0・洋8.3・LDK22.1) |
専有面積 |
101.44㎡ |
築年数 |
2011年6月(築15年) |
階数 |
1階部分(地上2階建) |
方位・位置 |
南 / 角部屋 |
物件種別 |
賃貸一戸建て |
構造 |
木造 |
駐車場 |
空有 賃料に含む |
小学校学区 |
天沼小学校 |
中学校学区 |
天沼中学校 |
他の空き部屋 |
ー |
- 学区データについて
- ※学区データは必ずしも正確とは限りません。詳細に関しては最寄店舗または各自治体の教育委員会に必ずご確認ください。
天沼戸建 1号室の特徴
契約条件
敷金が無料なため、初期費用が比較的安くなる傾向にあります。
セキュリティ
来客時には居室内のテレビモニターにて訪問者の顔を確認することができます。
室内設備
システムキッチンには、IHコンロが備え付けられています。 お風呂とトイレは一緒のユニットバスです。お風呂には、追い焚き機能が備わっています。 トイレは、温水洗浄便座機能付きになります。 洗濯に便利な設備として、室内洗濯機置場があります。浴室乾燥機も設置されているので、梅雨時の生乾き臭も比較的防ぐことができます。
居室状況
居室には、和室の居室もあり、子育てやリラックススペースとしての利用もできます。
建物設備共用部分
駐車場があり、無料で利用することができます。
周辺施設
この物件の学区は、天沼小学校区・天沼中学校区です。
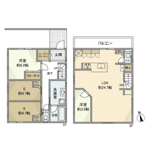
天沼戸建 1号室の間取り
間取り:2SLK
間取詳細:2SLK(和0・洋0・洋0・洋8.3・LDK22.1)
専有面積:101.44㎡
方位:南
部屋位置:角部屋
天沼戸建 1号室の設備
キッチン
システムキッチン
カウンターキッチン
IHコンロ
バス・トイレ
追い焚き
浴室乾燥機
温水洗浄便座
玄関
TVモニタ付インターホン
室内設備
室内洗濯機置場
和室あり
位置・立地
1階
角部屋
南向き
インフラ
インターネット可
入居条件
即入居可
ライフステージ
一人暮らしに人気の設備
カップルに人気の設備
家族に人気の設備
夫婦に人気の設備
三世代で人気の設備
こだわり
雨の日でも洗濯したい
趣味
推し活グッズを飾りたい
お得な条件
駐車場無料
天沼戸建 1号室の賃貸契約情報
毎月支払う |
家賃20万円/月共益費- |
|---|---|
初期費用 |
敷金-礼金1ヶ月 (20万円)保証金-敷引き償却金- |
更新料 |
- |
鍵交換費用 |
- |
室内清掃費用 |
- |
抗菌費用 |
19,800円 |
駐車場登録代 |
11,000円 |
駐車場料金 |
空有 賃料に含む |
損保・ |
借家賠付きの火災保険にご加入いただきます。 |
保証会社 |
加入要 保証会社利用料:初回保証料:賃料総額の100% 月額保証料:2%(最低1000円) |
契約期間 |
定期借家 2年 |
入居可能日 |
即入居可 |
フリーレント期間 |
- |
取引形態 |
一般媒介 |
備考 |
- |
天沼戸建 1号室の建物情報
建物名称 |
天沼戸建 |
|---|---|
最寄駅 |
|
所在地 |
東京都杉並区天沼 |
階層 |
1階部分(地上2階建) |
構造 |
木造 |
築年数 |
2011年6月(築15年) |
駐車場 |
空有 賃料に含む |
小学校学区 |
天沼小学校 |
中学校学区 |
天沼中学校 |
- 学区データについて
- ※学区データは必ずしも正確とは限りません。詳細に関しては最寄店舗または各自治体の教育委員会に必ずご確認ください。
無料この物件に問い合わせ
- 天沼戸建 1号室

-
20万円
(共益費
-)
- 敷
- -
- 礼
- 1ヶ月
- 保
- -
- 償
- -
天沼戸建 1号室の物件のお問い合わせ先・取り扱い店舗
ハウスコム 荻窪店
- アクセス
-
中央本線(JR東日本)「荻窪駅」徒歩1分
- 住所
- 〒167-0051 東京都杉並区荻窪5-28-12 サカエビル8階
- 営業時間
- 10:00~18:00
- 定休日
- 水曜日
- 営業エリア
- 杉並区,中野区、練馬区、武蔵野市
- 取引態様
- 賃貸仲介業






















