ラピュータ 106号室(1階/1LDK)の賃貸物件(賃貸アパート)
埼玉県熊谷市にあるラピュータ 106号室はシューズボックス、ルーフバルコニー、プロパンガス、オンライン相談可、オンライン内見可などが特徴です。最寄り駅の高崎線熊谷駅からバスで22分、妻沼聖天前から徒歩6分です。ラピュータ 106号室の詳細はハウスコム 熊谷店までお気軽にお問い合わせください!
情報更新日:
次回更新予定日:
※次回更新予定日について:お店側では順次空室確認を行っていますが、次回更新予定日までに空室確認が行えない場合には、この物件情報は自動的に削除されます。
ラピュータ 106号室の賃貸物件部屋概要
家賃 |
4.1万円
初期費用を |
|---|---|
共益費 |
3,000円
入居可能時期 |
敷金/礼金 |
- / - |
保証金/ |
- / - |
最寄駅 |
|
所在地 |
埼玉県熊谷市妻沼 |
部屋番号 |
106号室 |
間取り |
1LDK(LDK12・洋6) |
専有面積 |
39.74㎡ |
築年数 |
1996年6月(築30年) |
階数 |
1階部分(地上2階建) |
方位・位置 |
ー / その他 |
物件種別 |
賃貸アパート |
構造 |
鉄骨造 |
駐車場 |
3,300円 |
小学校学区 |
妻沼小学校 |
中学校学区 |
妻沼西中学校 |
他の空き部屋 |
ー |
- 学区データについて
- ※学区データは必ずしも正確とは限りません。詳細に関しては最寄店舗または各自治体の教育委員会に必ずご確認ください。
ラピュータ 106号室の特徴
-
一人暮らしに人気の設備

-
カップルに人気の設備

-
家族に人気の設備

-
夫婦に人気の設備

-
三世代で人気の設備

-
外で子どもと遊びたい

-
洋室で暮らしたい

-
持ち物をスッキリ隠す収納部屋

-
寝るためだけの部屋

-
ガーデニングが好き

契約条件
敷金と礼金が無料なため、初期費用が比較的安くなる傾向にあります。
セキュリティ
来客時には居室内のテレビモニターにて訪問者の顔を確認することができます。
居室状況
お部屋の床は、フローリングとなっており、エアコンが設置されています。 収納スペースとして、玄関にはシューズボックスがあります。
建物設備共用部分
居室外の専有スペースとして、洗濯物を干すなどの用途として利用できるバルコニーがあります。
周辺施設
この物件の学区は、妻沼小学校区・妻沼西中学校区です。
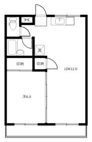
ラピュータ 106号室の間取り
間取り:1LDK
間取詳細:1LDK(LDK12・洋6)
専有面積:39.74㎡
方位:ー
部屋位置:その他
ラピュータ 106号室の設備
バス・トイレ
バス・トイレ別
玄関
TVモニタ付インターホン
収納
シューズボックス
全居室収納
バルコニー
バルコニー
ルーフバルコニー
室内設備
エアコン
フローリング
位置・立地
1階
インフラ
インターネット可
プロパンガス
入居条件
オンライン相談可
オンライン内見可
ライフステージ
一人暮らしに人気の設備
カップルに人気の設備
家族に人気の設備
夫婦に人気の設備
三世代で人気の設備
こだわり
外で子どもと遊びたい
洋室で暮らしたい
持ち物をスッキリ隠す収納部屋
寝るためだけの部屋
趣味
ガーデニングが好き
ラピュータ 106号室の賃貸契約情報
毎月支払う |
家賃4.1万円/月共益費3,000円/月 |
|---|---|
初期費用 |
敷金-礼金-保証金-敷引き償却金- |
更新料 |
- |
鍵交換費用 |
- |
室内清掃費用 |
- |
駐車場料金 |
3,300円 |
損保・ |
借家賠付きの火災保険にご加入いただきます。 |
保証会社 |
加入要 保証会社利用料:初回賃料等総額の50%~ |
契約期間 |
2年 |
入居可能日 |
相談 |
フリーレント期間 |
- |
取引形態 |
一般媒介 |
備考 |
- |
ラピュータ 106号室の建物情報
建物名称 |
ラピュータ |
|---|---|
最寄駅 |
|
所在地 |
埼玉県熊谷市妻沼 |
階層 |
1階部分(地上2階建) |
構造 |
鉄骨造 |
築年数 |
1996年6月(築30年) |
駐車場 |
3,300円 |
小学校学区 |
妻沼小学校 |
中学校学区 |
妻沼西中学校 |
1/5 外観
- 学区データについて
- ※学区データは必ずしも正確とは限りません。詳細に関しては最寄店舗または各自治体の教育委員会に必ずご確認ください。
無料この物件に問い合わせ
- ラピュータ 106号室

-
4.1万円
(共益費
3,000円)
- 敷
- -
- 礼
- -
- 保
- -
- 償
- -
ラピュータ 106号室の物件のお問い合わせ先・取り扱い店舗
ハウスコム 熊谷店
水曜日営業
土日営業
年中無休(年末年始などを除く)
- アクセス
-
高崎線「熊谷駅」北口徒歩1分
- 住所
- 〒360-0037 埼玉県熊谷市筑波2丁目52 新井屋本店ビル 2階
- 営業時間
- 10:00~18:00
- 定休日
- なし
- 営業エリア
- 埼玉県熊谷市、行田市、深谷市、本庄市、東松山市、秩父市、比企郡、、児玉郡、群馬県南部
- 取引態様
- 賃貸仲介業
お問い合わせNo. HC4-4473715-106-0131



















