PLENDY浦和別所 402号室(4階/3LDK)の賃貸物件(賃貸マンション)
埼玉県さいたま市南区にあるPLENDY浦和別所 402号室は浴室乾燥機、クローゼット、ウォークインクローゼット、シューズボックス、ペット可・相談などが特徴です。最寄り駅の埼京線中浦和駅から徒歩13分です。PLENDY浦和別所 402号室の詳細はハウスコム 浦和店までお気軽にお問い合わせください!
情報更新日:
次回更新予定日:
※次回更新予定日について:お店側では順次空室確認を行っていますが、次回更新予定日までに空室確認が行えない場合には、この物件情報は自動的に削除されます。
PLENDY浦和別所 402号室の賃貸物件部屋概要
家賃 |
20.5万円
初期費用を |
|---|---|
共益費 |
10,000円
入居可能時期 |
敷金/礼金 |
- / - |
保証金/ |
101,640円 / - |
最寄駅 |
|
所在地 |
埼玉県さいたま市南区別所 |
部屋番号 |
402号室 |
間取り |
3LDK(LDK16.8・洋7.5・洋7.5・洋7.5) |
専有面積 |
84.00㎡ |
築年数 |
1992年4月(築34年) |
階数 |
4階部分(地上5階建) |
方位・位置 |
南 / その他 |
物件種別 |
賃貸マンション |
構造 |
RC |
駐車場 |
空無し |
小学校学区 |
浦和別所小学校 |
中学校学区 |
白幡中学校 |
他の空き部屋 |
102号室 103号室 104号室 105号室 204号室 205号室 305号室 306号室 402号室 406号室 504号室 504号室 |
- 学区データについて
- ※学区データは必ずしも正確とは限りません。詳細に関しては最寄店舗または各自治体の教育委員会に必ずご確認ください。
PLENDY浦和別所 402号室の特徴
-
一人暮らしに人気の設備

-
カップルに人気の設備

-
家族に人気の設備

-
夫婦に人気の設備

-
三世代で人気の設備

-
外で子どもと遊びたい

-
雨の日でも洗濯したい

-
洋室で暮らしたい

-
自炊が多めなあなたに

-
服やおしゃれが好き

-
ガーデニングが好き

契約条件
ペットの飼育もご相談ください。 敷金と礼金が無料なため、初期費用が比較的安くなる傾向にあります。
セキュリティ
この物件の建物には、オートロックや宅配ボックスが設置されており、来客時には居室内のテレビモニターにて訪問者の顔を確認することができます。
室内設備
システムキッチンには、ガスコンロが設置されており、キッチン設備として食洗機が備え付けられています。 お風呂とトイレは別です。お風呂には、追い焚き機能が備わっています。 トイレは、温水洗浄便座機能付きになります。 女性に嬉しい設備の独立した洗面化粧台があります。 洗濯に便利な設備として、室内洗濯機置場があります。浴室乾燥機も設置されているので、梅雨時の生乾き臭も比較的防ぐことができます。
居室状況
お部屋の床は、フローリングとなっており、エアコンが設置されています。 収納スペースとして、基本的な居室にクローゼットを設置、通常よりも収納力の高いウォークインクローゼット、玄関にはシューズボックスがあります。
建物設備共用部分
居室外の専有スペースとして、洗濯物を干すなどの用途として利用できるバルコニーがあります。 建物の共用スペースに、日々の出入に便利なエレベーターや、急な外出や不在がちのご家庭の荷物受け取りに便利な宅配ボックスが設置されています。 平面駐車場があります。駐輪場、バイク置き場が利用できます。
周辺施設
この物件の学区は、浦和別所小学校区・白幡中学校区です。
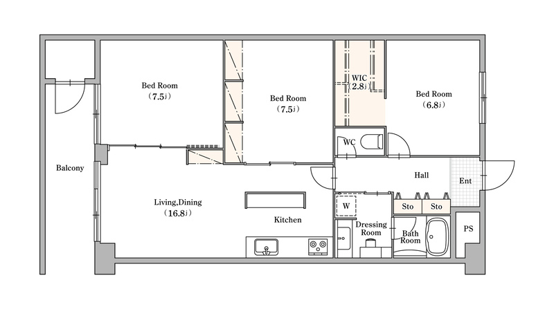
PLENDY浦和別所 402号室の間取り
間取り:3LDK
間取詳細:3LDK(LDK16.8・洋7.5・洋7.5・洋7.5)
専有面積:84.00㎡
方位:南
部屋位置:その他
PLENDY浦和別所 402号室の設備
キッチン
システムキッチン
ガスコンロ
食洗機
バス・トイレ
バス・トイレ別
追い焚き
浴室乾燥機
温水洗浄便座
独立洗面台
玄関
TVモニタ付インターホン
オートロック
宅配ボックス
収納
クローゼット
ウォークインクローゼット
シューズボックス
バルコニー
バルコニー
ルーフバルコニー
室内設備
エアコン
フローリング
室内洗濯機置場
位置・立地
2階以上
南向き
インフラ
都市ガス
建物設備
エレベーター
駐車場
平面駐車場
駐輪場
バイク置き場
入居条件
ペット可・相談
オンライン相談可
オンライン内見可
ライフステージ
一人暮らしに人気の設備
カップルに人気の設備
家族に人気の設備
夫婦に人気の設備
三世代で人気の設備
こだわり
外で子どもと遊びたい
雨の日でも洗濯したい
洋室で暮らしたい
自炊が多めなあなたに
趣味
服やおしゃれが好き
ガーデニングが好き
PLENDY浦和別所 402号室の賃貸契約情報
毎月支払う |
家賃20.5万円/月共益費10,000円/月 |
|---|---|
初期費用 |
敷金-礼金-保証金101,640円敷引き償却金- |
更新料 |
205,000円 |
鍵交換費用 |
16,500円 |
室内清掃費用 |
101,640円 |
駐車場料金 |
空無し |
損保・ |
借家賠付きの火災保険にご加入いただきます。 |
保証会社 |
加入要 保証会社利用料:契約時:総賃料の60% 月額1% 以降年間10000円 |
契約期間 |
定期借家 2年 |
入居可能日 |
相談 |
フリーレント期間 |
- |
取引形態 |
一般媒介 |
備考 |
ペット飼育時敷金積み増し料金(償却)有り 小型犬・中型犬・猫:賃料5000円 複数等、大型犬:賃料10000円 |
PLENDY浦和別所 402号室の建物情報
建物名称 |
PLENDY浦和別所 |
|---|---|
最寄駅 |
|
所在地 |
埼玉県さいたま市南区別所 |
階層 |
4階部分(地上5階建) |
構造 |
RC |
築年数 |
1992年4月(築34年) |
駐車場 |
空無し |
小学校学区 |
浦和別所小学校 |
中学校学区 |
白幡中学校 |
- 学区データについて
- ※学区データは必ずしも正確とは限りません。詳細に関しては最寄店舗または各自治体の教育委員会に必ずご確認ください。
無料この物件に問い合わせ
- PLENDY浦和別所 402号室

-
20.5万円
(共益費
10,000円)
- 敷
- -
- 礼
- -
- 保
- 101,640円
- 償
- -
PLENDY浦和別所 402号室の物件のお問い合わせ先・取り扱い店舗
ハウスコム 浦和店
- アクセス
-
京浜東北・根岸線「浦和駅」西口徒歩2分
- 住所
- 〒330-0062 埼玉県さいたま市浦和区仲町1丁目2−10
- 営業時間
- 10:00~18:00
- 定休日
- 水曜日
- 営業エリア
- さいたま市浦和区,さいたま市南区,さいたま市緑区,さいたま市中央区,さいたま市桜区,さいたま市大宮区,川口市
- 取引態様
- 賃貸仲介業



























