PLENDY浦和別所 402号室(4階/3LDK)の賃貸物件(賃貸マンション)
埼玉県さいたま市南区にあるPLENDY浦和別所 402号室は宅配ボックス、2階以上、南向き、都市ガス、駐輪場などが特徴です。最寄り駅の京浜東北・根岸線浦和駅から徒歩16分です。PLENDY浦和別所 402号室の詳細はハウスコム 大宮東口店までお気軽にお問い合わせください!
情報更新日:
次回更新予定日:
※次回更新予定日について:お店側では順次空室確認を行っていますが、次回更新予定日までに空室確認が行えない場合には、この物件情報は自動的に削除されます。
PLENDY浦和別所 402号室の賃貸物件部屋概要
家賃 |
20.5万円
初期費用を |
|---|---|
共益費 |
10,000円
入居可能時期 |
敷金/礼金 |
- / - |
保証金/ |
101,640円 / 101,640円 |
最寄駅 |
|
所在地 |
埼玉県さいたま市南区別所 |
部屋番号 |
402号室 |
間取り |
3LDK |
専有面積 |
84.00㎡ |
築年数 |
1992年4月(築34年) |
階数 |
4階部分(地上5階建) |
方位・位置 |
南 / その他 |
物件種別 |
賃貸マンション |
構造 |
RC |
駐車場 |
19,800円 |
小学校学区 |
浦和別所小学校 |
中学校学区 |
白幡中学校 |
他の空き部屋 |
102号室 103号室 104号室 105号室 204号室 205号室 305号室 306号室 402号室 406号室 504号室 504号室 |
- 学区データについて
- ※学区データは必ずしも正確とは限りません。詳細に関しては最寄店舗または各自治体の教育委員会に必ずご確認ください。
PLENDY浦和別所 402号室の特徴
契約条件
敷金と礼金が無料なため、初期費用が比較的安くなる傾向にあります。
セキュリティ
この物件の建物には、宅配ボックスが設置されております。
建物設備共用部分
建物の共用スペースに、日々の出入に便利なエレベーターや、急な外出や不在がちのご家庭の荷物受け取りに便利な宅配ボックスが設置されています。 駐輪場が利用できます。
周辺施設
この物件の学区は、浦和別所小学校区・白幡中学校区です。
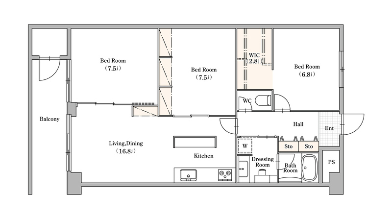
PLENDY浦和別所 402号室の間取り
間取り:3LDK
間取詳細:3LDK
専有面積:84.00㎡
方位:南
部屋位置:その他
PLENDY浦和別所 402号室の設備
玄関
宅配ボックス
位置・立地
2階以上
南向き
インフラ
都市ガス
建物設備
エレベーター
駐輪場
ライフステージ
一人暮らしに人気の設備
PLENDY浦和別所 402号室の賃貸契約情報
毎月支払う |
家賃20.5万円/月共益費10,000円/月 |
|---|---|
初期費用 |
敷金-礼金-保証金101,640円敷引き償却金101,640円 |
更新料 |
205,000円 |
鍵交換費用 |
- |
室内清掃費用 |
- |
駐車場料金 |
19,800円 |
損保・ |
借家賠付きの火災保険にご加入いただきます。 |
保証会社 |
|
契約期間 |
定期借家 |
入居可能日 |
相談 |
フリーレント期間 |
- |
取引形態 |
一般媒介 |
備考 |
- |
PLENDY浦和別所 402号室の建物情報
建物名称 |
PLENDY浦和別所 |
|---|---|
最寄駅 |
|
所在地 |
埼玉県さいたま市南区別所 |
階層 |
4階部分(地上5階建) |
構造 |
RC |
築年数 |
1992年4月(築34年) |
駐車場 |
19,800円 |
小学校学区 |
浦和別所小学校 |
中学校学区 |
白幡中学校 |
- 学区データについて
- ※学区データは必ずしも正確とは限りません。詳細に関しては最寄店舗または各自治体の教育委員会に必ずご確認ください。
無料この物件に問い合わせ
- PLENDY浦和別所 402号室

-
20.5万円
(共益費
10,000円)
- 敷
- -
- 礼
- -
- 保
- 101,640円
- 償
- 101,640円
PLENDY浦和別所 402号室の物件のお問い合わせ先・取り扱い店舗
ハウスコム 大宮東口店
駅徒歩1分以内
駅徒歩3分以内
駅徒歩5分以内
- アクセス
-
京浜東北・根岸線「大宮駅」東口(北)徒歩1分
- 住所
- 〒330-0846 埼玉県さいたま市大宮区大門町1丁目92−7 ハイカラ堂ビル 2階
- 営業時間
- 10:00~18:00
- 定休日
- 水曜日
- 営業エリア
- さいたま市大宮区、中央区、北区、西区、見沼区、西区、浦和区、岩槻区、上尾市、蓮田市、白岡市、伊奈町 etc.
- 取引態様
- 賃貸仲介業
お問い合わせNo. HC5-5387732-402-0221

















