ParkSide Residence CHITOKARA 201号室(2階/1R)の賃貸物件(賃貸アパート)
東京都世田谷区にあるParkSide Residence CHITOKARA 201号室はIHコンロ、宅配ボックス、最上階、角部屋、プロパンガスなどが特徴です。最寄り駅の京王線千歳烏山駅から徒歩9分です。ParkSide Residence CHITOKARA 201号室の詳細はハウスコム 事業戦略室までお気軽にお問い合わせください!
情報更新日:
次回更新予定日:
※次回更新予定日について:お店側では順次空室確認を行っていますが、次回更新予定日までに空室確認が行えない場合には、この物件情報は自動的に削除されます。
ParkSide Residence CHITOKARA 201号室の賃貸物件部屋概要
家賃 |
9万円
初期費用を |
|---|---|
共益費 |
15,000円
入居可能時期 |
敷金/礼金 |
- / - |
保証金/ |
- / - |
最寄駅 |
|
所在地 |
東京都世田谷区粕谷 |
部屋番号 |
201号室 |
間取り |
1R |
専有面積 |
28.58㎡ |
築年数 |
2017年6月(築9年) |
階数 |
2階部分(地上2階建) |
方位・位置 |
南東 / 角部屋 |
物件種別 |
賃貸アパート |
構造 |
木造 |
駐車場 |
- |
小学校学区 |
芦花小学校 |
中学校学区 |
芦花中学校 |
他の空き部屋 |
ー |
- 学区データについて
- ※学区データは必ずしも正確とは限りません。詳細に関しては最寄店舗または各自治体の教育委員会に必ずご確認ください。
ParkSide Residence CHITOKARA 201号室の特徴
契約条件
ペットの飼育もご相談ください。 敷金と礼金が無料なため、初期費用が比較的安くなる傾向にあります。
セキュリティ
この物件の建物には、宅配ボックスが設置されており、来客時には居室内のテレビモニターにて訪問者の顔を確認することができます。
室内設備
カウンターキッチンには、IHコンロが備え付けられています。 トイレは、温水洗浄便座機能付きになります。 洗濯に便利な設備として、室内洗濯機置場があります。浴室乾燥機も設置されているので、梅雨時の生乾き臭も比較的防ぐことができます。
居室状況
居室には、ロフトが設置されており大規模な収納スペースやセパレートされた寝室として活用できます。 エアコンが設置されています。 インターネットも無料で入居後すぐ生活が始められます。
建物設備共用部分
建物の共用スペースに、急な外出や不在がちのご家庭の荷物受け取りに便利な宅配ボックスが設置されています。
周辺施設
この物件の学区は、芦花小学校区・芦花中学校区です。
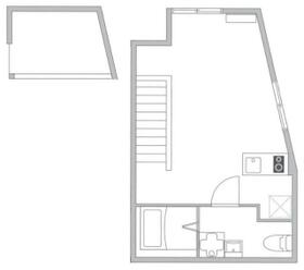
ParkSide Residence CHITOKARA 201号室の間取り
間取り:1R
間取詳細:1R
専有面積:28.58㎡
方位:南東
部屋位置:角部屋
ParkSide Residence CHITOKARA 201号室の設備
キッチン
カウンターキッチン
IHコンロ
バス・トイレ
バス・トイレ別
浴室乾燥機
温水洗浄便座
玄関
TVモニタ付インターホン
宅配ボックス
室内設備
エアコン
室内洗濯機置場
ロフト付
デザイナーズ
位置・立地
2階以上
最上階
角部屋
インフラ
プロパンガス
入居条件
ペット可・相談
ライフステージ
一人暮らしに人気の設備
カップルに人気の設備
家族に人気の設備
夫婦に人気の設備
三世代で人気の設備
こだわり
雨の日でも洗濯したい
趣味
推し活グッズを飾りたい
オークション・通販が好き
お得な条件
インターネット無料
ParkSide Residence CHITOKARA 201号室の賃貸契約情報
毎月支払う |
家賃9万円/月共益費15,000円/月 |
|---|---|
初期費用 |
敷金-礼金-保証金-敷引き償却金- |
更新料 |
90,000円 |
鍵交換費用 |
- |
室内清掃費用 |
- |
鍵交換費 |
29,700円 |
ハウスクリーニング代 |
60,500円 |
駐車場料金 |
- |
損保・ |
借家賠付きの火災保険にご加入いただきます。 |
保証会社 |
加入要 保証会社利用料:株式会社エポスカード(初回保証料70% 月次保証料1%)他、オリコフォレントインシュア・GTN など |
契約期間 |
2年 |
入居可能日 |
2026年05月下旬 |
フリーレント期間 |
- |
取引形態 |
一般媒介 |
備考 |
- |
ParkSide Residence CHITOKARA 201号室の建物情報
建物名称 |
ParkSide Residence CHITOKARA |
|---|---|
最寄駅 |
|
所在地 |
東京都世田谷区粕谷 |
階層 |
2階部分(地上2階建) |
構造 |
木造 |
築年数 |
2017年6月(築9年) |
駐車場 |
- |
小学校学区 |
芦花小学校 |
中学校学区 |
芦花中学校 |
- 学区データについて
- ※学区データは必ずしも正確とは限りません。詳細に関しては最寄店舗または各自治体の教育委員会に必ずご確認ください。
無料この物件に問い合わせ
- ParkSide Residence CHITOKARA 201号室

-
9万円
(共益費
15,000円)
- 敷
- -
- 礼
- -
- 保
- -
- 償
- -
ParkSide Residence CHITOKARA 201号室の物件のお問い合わせ先・取り扱い店舗
ハウスコム 事業戦略室
- アクセス
-
山手線「品川駅」港南口徒歩3分
- 住所
- 〒108-0075 東京都港区港南2-16-1 品川イーストワンタワー9階
- 営業時間
- 10:00~17:00
- 定休日
- 土曜日・日曜日(祝日定休)
- 営業エリア
- 北区、荒川区、豊島区、文京区、台東区、中央区、新宿区、千代田区、渋谷区、港区、品川区
- 取引態様
- 賃貸仲介業
















