レオパレスグリーンハイツ朝日 215号室(2階/1K)の賃貸物件(賃貸アパート)
三重県三重郡朝日町にあるレオパレスグリーンハイツ朝日 215号室は電気コンロ、バス・トイレ別、温水洗浄便座、宅配ボックス、エアコンなどが特徴です。最寄り駅の近鉄名古屋線伊勢朝日駅から徒歩13分です。レオパレスグリーンハイツ朝日 215号室の詳細はハウスコム 四日市店までお気軽にお問い合わせください!
情報更新日:
次回更新予定日:
※次回更新予定日について:お店側では順次空室確認を行っていますが、次回更新予定日までに空室確認が行えない場合には、この物件情報は自動的に削除されます。
レオパレスグリーンハイツ朝日 215号室の賃貸物件部屋概要
家賃 |
5万円
初期費用を |
|---|---|
共益費 |
5,000円
入居可能時期 |
敷金/礼金 |
- / 50,000円 |
保証金/ |
- / - |
最寄駅 |
|
所在地 |
三重県三重郡朝日町大字縄生 |
部屋番号 |
215号室 |
間取り |
1K |
専有面積 |
28.02㎡ |
築年数 |
2007年6月(築19年) |
階数 |
2階部分(地上2階建) |
方位・位置 |
ー / その他 |
物件種別 |
賃貸アパート |
構造 |
木造 |
駐車場 |
6,600円 |
小学校学区 |
朝日小学校 |
中学校学区 |
朝日中学校 |
他の空き部屋 |
101号室 102号室 104号室 109号室 111号室 208号室 211号室 213号室 |
- 学区データについて
- ※学区データは必ずしも正確とは限りません。詳細に関しては最寄店舗または各自治体の教育委員会に必ずご確認ください。
レオパレスグリーンハイツ朝日 215号室の特徴
契約条件
敷金が無料なため、初期費用が比較的安くなる傾向にあります。
セキュリティ
この物件の建物には、宅配ボックスが設置されております。
室内設備
電気コンロが備え付けられています。 トイレは、温水洗浄便座機能付きになります。 洗濯に便利な設備として、室内洗濯機置場があります。
居室状況
エアコンが設置されています。
建物設備共用部分
建物の共用スペースに、急な外出や不在がちのご家庭の荷物受け取りに便利な宅配ボックスが設置されています。
周辺施設
この物件の学区は、朝日小学校区・朝日中学校区です。
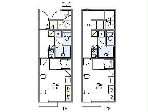
レオパレスグリーンハイツ朝日 215号室の間取り
間取り:1K
間取詳細:1K
専有面積:28.02㎡
方位:ー
部屋位置:その他
レオパレスグリーンハイツ朝日 215号室の設備
キッチン
電気コンロ
バス・トイレ
バス・トイレ別
温水洗浄便座
玄関
宅配ボックス
室内設備
エアコン
室内洗濯機置場
位置・立地
2階以上
最上階
インフラ
インターネット可
CATV
ライフステージ
一人暮らしに人気の設備
カップルに人気の設備
家族に人気の設備
夫婦に人気の設備
三世代で人気の設備
こだわり
雨の日でも洗濯したい
寝るためだけの部屋
レオパレスグリーンハイツ朝日 215号室の賃貸契約情報
毎月支払う |
家賃5万円/月共益費5,000円/月 |
|---|---|
初期費用 |
敷金-礼金50,000円保証金-敷引き償却金- |
更新料 |
- |
鍵交換費用 |
16,500円 |
室内清掃費用 |
41,800円 |
抗菌施工(任意) |
23,760円 |
駐車場料金 |
6,600円 |
損保・ |
借家賠付きの火災保険にご加入いただきます。 |
保証会社 |
加入要 保証会社利用料:保証料:64190円(契約内容により100~120%で変動有)※記載金額は120%の場合 |
契約期間 |
- |
入居可能日 |
即入居可 |
フリーレント期間 |
- |
取引形態 |
一般媒介 |
備考 |
鍵交換費10450円/環境維持費550円/月/基本清掃料:34100円(税込) |
レオパレスグリーンハイツ朝日 215号室の建物情報
建物名称 |
レオパレスグリーンハイツ朝日 |
|---|---|
最寄駅 |
|
所在地 |
三重県三重郡朝日町大字縄生 |
階層 |
2階部分(地上2階建) |
構造 |
木造 |
築年数 |
2007年6月(築19年) |
駐車場 |
6,600円 |
小学校学区 |
朝日小学校 |
中学校学区 |
朝日中学校 |
1/7 外観
- 学区データについて
- ※学区データは必ずしも正確とは限りません。詳細に関しては最寄店舗または各自治体の教育委員会に必ずご確認ください。
無料この物件に問い合わせ
- レオパレスグリーンハイツ朝日 215号室

-
5万円
(共益費
5,000円)
- 敷
- -
- 礼
- 50,000円
- 保
- -
- 償
- -
レオパレスグリーンハイツ朝日 215号室の物件のお問い合わせ先・取り扱い店舗
ハウスコム 四日市店
水曜日営業
土日営業
年中無休(年末年始などを除く)
- アクセス
-
近鉄名古屋線「近鉄四日市駅」西口より送迎あり
- 住所
- 〒510-0064 三重県四日市市新正2丁目7−25
- 営業時間
- 10:00~18:00
- 定休日
- なし
- 営業エリア
- 四日市市、桑名市、鈴鹿市、いなべ市、三重郡川越町、三重郡朝日町、三重郡菰野町、三重郡東員町
- 取引態様
- 賃貸仲介業
お問い合わせNo. HC5-1636959-215-0014























