桜ノ杜 301号室(3階/1LDK)の賃貸物件(賃貸アパート)
神奈川県相模原市中央区にある 桜ノ杜 301号室はカウンターキッチン、ウォークインクローゼット、ルーフバルコニー、室内洗濯機置場、2階以上などが特徴です。最寄り駅の横浜線矢部駅から徒歩10分です。 桜ノ杜 301号室の詳細はハウスコム 相模原店までお気軽にお問い合わせください!
情報更新日:
次回更新予定日:
※次回更新予定日について:お店側では順次空室確認を行っていますが、次回更新予定日までに空室確認が行えない場合には、この物件情報は自動的に削除されます。
桜ノ杜 301号室の賃貸物件部屋概要
家賃 |
8.6万円
初期費用を |
|---|---|
共益費 |
3,000円
入居可能時期 |
敷金/礼金 |
- / - |
保証金/ |
- / - |
最寄駅 |
|
所在地 |
神奈川県相模原市中央区矢部 |
部屋番号 |
301号室 |
間取り |
1LDK(洋3.5・LDK8.5) |
専有面積 |
30.04㎡ |
築年数 |
2026年4月 |
階数 |
3階部分(地上3階建) |
方位・位置 |
南西 / 角部屋 |
物件種別 |
賃貸アパート |
構造 |
木造 |
駐車場 |
無 |
小学校学区 |
富士見小学校 |
中学校学区 |
大野北中学校 |
他の空き部屋 |
102号室 103号室 105号室 202号室 |
- 学区データについて
- ※学区データは必ずしも正確とは限りません。詳細に関しては最寄店舗または各自治体の教育委員会に必ずご確認ください。
桜ノ杜 301号室の特徴
-
一人暮らしに人気の設備

-
カップルに人気の設備

-
家族に人気の設備

-
夫婦に人気の設備

-
三世代で人気の設備

-
セキュリティ対策重視

-
外で子どもと遊びたい

-
雨の日でも洗濯したい

-
洋室で暮らしたい

-
服やおしゃれが好き

-
推し活グッズを飾りたい

-
オークション・通販が好き

-
ガーデニングが好き

契約条件
この物件は、2人入居もご契約できます。 また、ご契約時に保証人は不要です。 敷金と礼金が無料なため、初期費用が比較的安くなる傾向にあります。
セキュリティ
この物件の建物には、オートロックや防犯カメラや宅配ボックスが設置されており、来客時には居室内のテレビモニターにて訪問者の顔を確認することができます。
室内設備
システムキッチンが備え付けられています。 トイレは、温水洗浄便座機能付きになります。 女性に嬉しい設備の独立した洗面化粧台があります。 洗濯に便利な設備として、室内洗濯機置場があります。浴室乾燥機も設置されているので、梅雨時の生乾き臭も比較的防ぐことができます。
居室状況
お部屋の床は、フローリングとなっており、エアコンが設置されています。 インターネットも無料で入居後すぐ生活が始められます。 収納スペースとして、通常よりも収納力の高いウォークインクローゼット、玄関にはシューズボックスがあります。
建物設備共用部分
居室外の専有スペースとして、洗濯物を干すなどの用途として利用できるバルコニーがあります。 建物の共用スペースに、いざという時の防犯カメラや、急な外出や不在がちのご家庭の荷物受け取りに便利な宅配ボックスが設置されています。
周辺施設
この物件の学区は、富士見小学校区・大野北中学校区です。
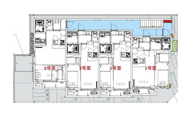
桜ノ杜 301号室の間取り
間取り:1LDK
間取詳細:1LDK(洋3.5・LDK8.5)
専有面積:30.04㎡
方位:南西
部屋位置:角部屋
桜ノ杜 301号室の設備
キッチン
システムキッチン
カウンターキッチン
バス・トイレ
バス・トイレ別
浴室乾燥機
温水洗浄便座
独立洗面台
玄関
TVモニタ付インターホン
オートロック
宅配ボックス
収納
ウォークインクローゼット
シューズボックス
バルコニー
バルコニー
ルーフバルコニー
室内設備
エアコン
フローリング
室内洗濯機置場
デザイナーズ
位置・立地
2階以上
最上階
角部屋
インフラ
インターネット可
都市ガス
建物設備
防犯カメラ
入居条件
2人入居可
オンライン相談可
オンライン内見可
保証人不要
ライフステージ
一人暮らしに人気の設備
カップルに人気の設備
家族に人気の設備
夫婦に人気の設備
三世代で人気の設備
こだわり
セキュリティ対策重視
外で子どもと遊びたい
雨の日でも洗濯したい
洋室で暮らしたい
趣味
服やおしゃれが好き
推し活グッズを飾りたい
オークション・通販が好き
ガーデニングが好き
お得な条件
インターネット無料
桜ノ杜 301号室の賃貸契約情報
毎月支払う |
家賃8.6万円/月共益費3,000円/月 |
|---|---|
初期費用 |
敷金-礼金-保証金-敷引き償却金- |
更新料 |
86,000円 |
鍵交換費用 |
27,500円 |
室内清掃費用 |
55,000円 |
入居者アプリ設定費 |
22,000円 |
駐車場料金 |
無 |
損保・ |
借家賠付きの火災保険にご加入いただきます。 |
保証会社 |
加入要 保証会社利用料:初回:100% |
契約期間 |
2年 |
入居可能日 |
2026年05月上旬 |
フリーレント期間 |
- |
取引形態 |
一般媒介 |
備考 |
- |
桜ノ杜 301号室の建物情報
建物名称 |
桜ノ杜 |
|---|---|
最寄駅 |
|
所在地 |
神奈川県相模原市中央区矢部 |
階層 |
3階部分(地上3階建) |
構造 |
木造 |
築年数 |
2026年4月 |
駐車場 |
無 |
小学校学区 |
富士見小学校 |
中学校学区 |
大野北中学校 |
- 学区データについて
- ※学区データは必ずしも正確とは限りません。詳細に関しては最寄店舗または各自治体の教育委員会に必ずご確認ください。
無料この物件に問い合わせ
- 桜ノ杜 301号室

-
8.6万円
(共益費
3,000円)
- 敷
- -
- 礼
- -
- 保
- -
- 償
- -
桜ノ杜 301号室の物件のお問い合わせ先・取り扱い店舗
ハウスコム 相模原店
- アクセス
-
横浜線「相模原駅」徒歩1分
- 住所
- 〒252-0231 神奈川県相模原市中央区相模原2丁目1−7 樋口ビル 1F
- 営業時間
- 10:00~18:00
- 定休日
- なし
- 営業エリア
- 相模原市中央区、相模原市緑区、相模原市南区、町田市、八王子市・愛川町・厚木市
- 取引態様
- 賃貸仲介業



















