プレジオ西新井 505号室(5階/1LDK)の賃貸物件(賃貸マンション)
東京都足立区にあるプレジオ西新井 505号室は浴室乾燥機、独立洗面台、宅配ボックス、室内洗濯機置場、エレベーターなどが特徴です。最寄り駅の日暮里・舎人ライナー西新井大師西駅から徒歩3分です。プレジオ西新井 505号室の詳細はハウスコム 赤羽店までお気軽にお問い合わせください!
情報更新日:
次回更新予定日:
※次回更新予定日について:お店側では順次空室確認を行っていますが、次回更新予定日までに空室確認が行えない場合には、この物件情報は自動的に削除されます。
プレジオ西新井 505号室の賃貸物件部屋概要
家賃 |
14.1万円
初期費用を |
|---|---|
共益費 |
15,000円
入居可能時期 |
敷金/礼金 |
- / 1ヶ月 |
保証金/ |
- / - |
最寄駅 |
|
所在地 |
東京都足立区西新井 |
部屋番号 |
505号室 |
間取り |
1LDK(洋4.8・LDK8.2) |
専有面積 |
35.40㎡ |
築年数 |
新築 |
階数 |
5階部分(地上15階建) |
方位・位置 |
北 / 角部屋 |
物件種別 |
賃貸マンション |
構造 |
RC |
駐車場 |
18,700円 |
小学校学区 |
西新井第一小学校 |
中学校学区 |
西新井中学校 |
他の空き部屋 |
1001号室 1002号室 1003号室 1005号室 1006号室 1101号室 1102号室 1103号室 1105号室 1106号室 1201号室 1202号室 1203号室 1204号室 1205号室 1206号室 1301号室 1302号室 1303号室 1304号室 1305号室 1306号室 1401号室 1403号室 1405号室 1406号室 1502号室 1505号室 1506号室 202号室 203号室 204号室 205号室 206号室 301号室 302号室 304号室 305号室 306号室 401号室 402号室 403号室 404号室 405号室 406号室 501号室 502号室 504号室 506号室 601号室 602号室 603号室 604号室 606号室 701号室 702号室 703号室 704号室 706号室 801号室 802号室 803号室 804号室 805号室 806号室 901号室 902号室 903号室 904号室 905号室 906号室 |
- 学区データについて
- ※学区データは必ずしも正確とは限りません。詳細に関しては最寄店舗または各自治体の教育委員会に必ずご確認ください。
プレジオ西新井 505号室の特徴
-
一人暮らしに人気の設備

-
カップルに人気の設備

-
家族に人気の設備

-
夫婦に人気の設備

-
三世代で人気の設備

-
セキュリティ対策重視

-
外で子どもと遊びたい

-
雨の日でも洗濯したい

-
洋室で暮らしたい

-
お風呂が大好き

-
ガーデニングが好き

契約条件
ペットの飼育もご相談ください。 敷金が無料なため、初期費用が比較的安くなる傾向にあります。
セキュリティ
この物件の建物には、オートロックや防犯カメラや宅配ボックスが設置されており、来客時には居室内のテレビモニターにて訪問者の顔を確認することができます。
室内設備
システムキッチンが備え付けられています。 お風呂とトイレは別です。お風呂には、追い焚き機能が備わっています。 トイレは、温水洗浄便座機能付きになります。 女性に嬉しい設備のシャワーの付いている洗面化粧台があります。 洗濯に便利な設備として、室内洗濯機置場があります。浴室乾燥機も設置されているので、梅雨時の生乾き臭も比較的防ぐことができます。
居室状況
お部屋の床は、フローリングとなっており、エアコンが設置されています。 照明器具が備え付けられており、入居後すぐ生活が始められます。 収納スペースとして、基本的な居室にクローゼットを設置、玄関にはシューズボックスがあります。
建物設備共用部分
居室外の専有スペースとして、洗濯物を干すなどの用途として利用できるバルコニーがあります。 建物の共用スペースに、日々の出入に便利なエレベーターや、いざという時の防犯カメラや、急な外出や不在がちのご家庭の荷物受け取りに便利な宅配ボックスが設置されています。 駐輪場、バイク置き場が利用できます。
周辺施設
この物件の学区は、西新井第一小学校区・西新井中学校区です。
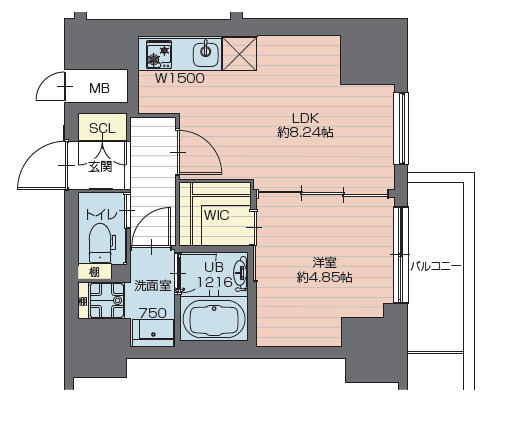
プレジオ西新井 505号室の間取り
間取り:1LDK
間取詳細:1LDK(洋4.8・LDK8.2)
専有面積:35.40㎡
方位:北
部屋位置:角部屋
プレジオ西新井 505号室の設備
キッチン
システムキッチン
バス・トイレ
バス・トイレ別
追い焚き
浴室乾燥機
温水洗浄便座
独立洗面台
シャワー付洗面化粧台
玄関
TVモニタ付インターホン
オートロック
宅配ボックス
収納
クローゼット
シューズボックス
バルコニー
バルコニー
ルーフバルコニー
室内設備
エアコン
フローリング
室内洗濯機置場
照明器具付
位置・立地
2階以上
角部屋
インフラ
BS
CS
都市ガス
建物設備
エレベーター
防犯カメラ
駐輪場
バイク置き場
入居条件
ペット可・相談
オンライン相談可
オンライン内見可
ライフステージ
一人暮らしに人気の設備
カップルに人気の設備
家族に人気の設備
夫婦に人気の設備
三世代で人気の設備
こだわり
セキュリティ対策重視
外で子どもと遊びたい
雨の日でも洗濯したい
洋室で暮らしたい
趣味
お風呂が大好き
ガーデニングが好き
プレジオ西新井 505号室の賃貸契約情報
毎月支払う |
家賃14.1万円/月共益費15,000円/月 |
|---|---|
初期費用 |
敷金-礼金1ヶ月 (14.1万円)保証金-敷引き償却金- |
更新料 |
141,000円 |
鍵交換費用 |
- |
室内清掃費用 |
- |
リロレント24時間サービス |
20,000円 |
駐車場料金 |
18,700円 |
損保・ |
借家賠付きの火災保険にご加入いただきます。 |
保証会社 |
加入要 保証会社:エポスカード 保証会社利用料:初回保証料:総賃料の20% 更新料:総賃料の1%/月 |
契約期間 |
2年 |
入居可能日 |
2025年11月下旬 |
フリーレント期間 |
- |
取引形態 |
一般媒介 |
備考 |
・ペット飼育:可(小型犬or猫1匹迄) 共益費3000円増敷金1ヶ月 ・ハウスクリーニング費:66500円(税込) |
プレジオ西新井 505号室の建物情報
建物名称 |
プレジオ西新井 |
|---|---|
最寄駅 |
|
所在地 |
東京都足立区西新井 |
階層 |
5階部分(地上15階建) |
構造 |
RC |
築年数 |
新築 |
駐車場 |
18,700円 |
小学校学区 |
西新井第一小学校 |
中学校学区 |
西新井中学校 |
- 学区データについて
- ※学区データは必ずしも正確とは限りません。詳細に関しては最寄店舗または各自治体の教育委員会に必ずご確認ください。
無料この物件に問い合わせ
- プレジオ西新井 505号室

-
14.1万円
(共益費
15,000円)
- 敷
- -
- 礼
- 1ヶ月
- 保
- -
- 償
- -
プレジオ西新井 505号室の物件のお問い合わせ先・取り扱い店舗
ハウスコム 赤羽店
- アクセス
-
京浜東北・根岸線「赤羽駅」南口徒歩1分
- 住所
- 〒115-0044 東京都北区赤羽南1丁目7−3 厚生堂ビル1階
- 営業時間
- 10:00~18:00
- 定休日
- なし(12/25~1/3は休業)
- 営業エリア
- 北区,板橋区,足立区,川口市,戸田市
- 取引態様
- 賃貸仲介業

























