ソレイユ鶴瀬 607号室(6階/1K)の賃貸物件(賃貸マンション)
埼玉県富士見市にあるソレイユ鶴瀬 607号室はバス・トイレ別、ルーフバルコニー、室内洗濯機置場、エレベーター、防犯カメラなどが特徴です。最寄り駅の東武東上線鶴瀬駅から徒歩2分です。ソレイユ鶴瀬 607号室の詳細はハウスコム 和光店までお気軽にお問い合わせください!
情報更新日:
次回更新予定日:
※次回更新予定日について:お店側では順次空室確認を行っていますが、次回更新予定日までに空室確認が行えない場合には、この物件情報は自動的に削除されます。
ソレイユ鶴瀬 607号室の賃貸物件部屋概要
家賃 |
6.6万円
初期費用を |
|---|---|
共益費 |
6,000円
入居可能時期 |
敷金/礼金 |
- / - |
保証金/ |
- / - |
最寄駅 |
|
所在地 |
埼玉県富士見市鶴瀬東 |
部屋番号 |
607号室 |
間取り |
1K(洋0・K0) |
専有面積 |
26.05㎡ |
築年数 |
2009年3月(築18年) |
階数 |
6階部分(地上7階建) |
方位・位置 |
東 / その他 |
物件種別 |
賃貸マンション |
構造 |
RC |
駐車場 |
無 |
小学校学区 |
鶴瀬小学校 |
中学校学区 |
富士見台中学校 |
他の空き部屋 |
415号室 |
- 学区データについて
- ※学区データは必ずしも正確とは限りません。詳細に関しては最寄店舗または各自治体の教育委員会に必ずご確認ください。
ソレイユ鶴瀬 607号室の特徴
契約条件
敷金と礼金が無料なため、初期費用が比較的安くなる傾向にあります。
セキュリティ
この物件の建物には、オートロックや防犯カメラが設置されております。
室内設備
洗濯に便利な設備として、室内洗濯機置場があります。
居室状況
エアコンが設置されています。
建物設備共用部分
居室外の専有スペースとして、洗濯物を干すなどの用途として利用できるバルコニーがあります。 建物の共用スペースに、日々の出入に便利なエレベーターや、いざという時の防犯カメラが設置されています。
周辺施設
この物件の学区は、鶴瀬小学校区・富士見台中学校区です。
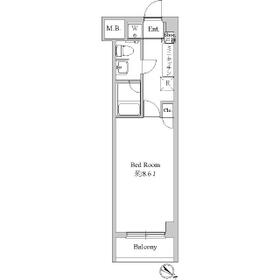
ソレイユ鶴瀬 607号室の間取り
間取り:1K
間取詳細:1K(洋0・K0)
専有面積:26.05㎡
方位:東
部屋位置:その他
ソレイユ鶴瀬 607号室の設備
バス・トイレ
バス・トイレ別
玄関
オートロック
バルコニー
バルコニー
ルーフバルコニー
室内設備
エアコン
室内洗濯機置場
位置・立地
2階以上
インフラ
インターネット可
プロパンガス
建物設備
エレベーター
防犯カメラ
ライフステージ
一人暮らしに人気の設備
カップルに人気の設備
家族に人気の設備
夫婦に人気の設備
三世代で人気の設備
こだわり
外で子どもと遊びたい
雨の日でも洗濯したい
寝るためだけの部屋
趣味
ガーデニングが好き
ソレイユ鶴瀬 607号室の賃貸契約情報
毎月支払う |
家賃6.6万円/月共益費6,000円/月 |
|---|---|
初期費用 |
敷金-礼金-保証金-敷引き償却金- |
更新料 |
99,000円 |
鍵交換費用 |
- |
室内清掃費用 |
- |
駐車場料金 |
無 |
損保・ |
借家賠付きの火災保険にご加入いただきます。 |
保証会社 |
加入要 保証会社利用料:Selecty(日本セーフティー) |
契約期間 |
2年 |
入居可能日 |
即入居可 |
フリーレント期間 |
- |
取引形態 |
一般媒介 |
備考 |
保証会社利用必須 Selecty(日本セーフティー) |
ソレイユ鶴瀬 607号室の建物情報
建物名称 |
ソレイユ鶴瀬 |
|---|---|
最寄駅 |
|
所在地 |
埼玉県富士見市鶴瀬東 |
階層 |
6階部分(地上7階建) |
構造 |
RC |
築年数 |
2009年3月(築18年) |
駐車場 |
無 |
小学校学区 |
鶴瀬小学校 |
中学校学区 |
富士見台中学校 |
1/10 外観
- 学区データについて
- ※学区データは必ずしも正確とは限りません。詳細に関しては最寄店舗または各自治体の教育委員会に必ずご確認ください。
無料この物件に問い合わせ
- ソレイユ鶴瀬 607号室

-
6.6万円
(共益費
6,000円)
- 敷
- -
- 礼
- -
- 保
- -
- 償
- -
ソレイユ鶴瀬 607号室の物件のお問い合わせ先・取り扱い店舗
ハウスコム 和光店
土日営業
- アクセス
-
東武東上線「和光市駅」南口徒歩1分
- 住所
- 〒351-0114 埼玉県和光市本町6−8 大澤ビル 1階
- 営業時間
- 10:00~18:00
- 定休日
- 水曜日
- 営業エリア
- 和光市、朝霞市、新座市、志木市、富士見市、ふじみ野市、板橋区、練馬区
- 取引態様
- 賃貸仲介業
お問い合わせNo. HC4-3776193-0607-0104




























