ガリシア新宿NorthⅡ 502号室(5階/1K)の賃貸物件(賃貸マンション)
東京都新宿区にあるガリシア新宿NorthⅡ 502号室はガスコンロ、ガスコンロ二口以上、浴室乾燥機、宅配ボックス、ルーフバルコニーなどが特徴です。最寄り駅の山手線新大久保駅から徒歩2分です。ガリシア新宿NorthⅡ 502号室の詳細はハウスコム 池袋西口店までお気軽にお問い合わせください!
情報更新日:
次回更新予定日:
※次回更新予定日について:お店側では順次空室確認を行っていますが、次回更新予定日までに空室確認が行えない場合には、この物件情報は自動的に削除されます。
ガリシア新宿NorthⅡ 502号室の賃貸物件部屋概要
家賃 |
13.45万円
初期費用を |
|---|---|
共益費 |
12,000円
入居可能時期 |
敷金/礼金 |
1ヶ月 / 1ヶ月 |
保証金/ |
- / - |
最寄駅 |
|
所在地 |
東京都新宿区百人町 |
部屋番号 |
502号室 |
間取り |
1K |
専有面積 |
25.74㎡ |
築年数 |
2022年6月(築4年) |
階数 |
5階部分(地上11階建) |
方位・位置 |
西 / その他 |
物件種別 |
賃貸マンション |
構造 |
RC |
駐車場 |
- |
小学校学区 |
戸山小学校 |
中学校学区 |
西早稲田中学校 |
他の空き部屋 |
1004号室 302号室 404号室 802号室 |
- 学区データについて
- ※学区データは必ずしも正確とは限りません。詳細に関しては最寄店舗または各自治体の教育委員会に必ずご確認ください。
ガリシア新宿NorthⅡ 502号室の特徴
-
一人暮らしに人気の設備

-
カップルに人気の設備

-
家族に人気の設備

-
夫婦に人気の設備

-
三世代で人気の設備

-
セキュリティ対策重視

-
収納重視

-
タイパ重視

-
外で子どもと遊びたい

-
雨の日でも洗濯したい

-
洋室で暮らしたい

-
持ち物をスッキリ隠す収納部屋

-
オークション・通販が好き

-
ガーデニングが好き

契約条件
この物件は、2人入居もご契約できます。
セキュリティ
この物件の建物には、オートロックや防犯カメラや宅配ボックスが設置されており、来客時には居室内のテレビモニターにて訪問者の顔を確認することができます。
室内設備
システムキッチンには、2つ以上のガスコンロが備え付けられています。 トイレは、温水洗浄便座機能付きになります。 洗濯に便利な設備として、室内洗濯機置場があります。浴室乾燥機も設置されているので、梅雨時の生乾き臭も比較的防ぐことができます。
居室状況
お部屋の床は、フローリングとなっており、エアコンが設置されています。 インターネットも無料で入居後すぐ生活が始められます。 収納スペースとして、基本的な居室にクローゼットを設置、玄関にはシューズボックスがあります。
建物設備共用部分
居室外の専有スペースとして、洗濯物を干すなどの用途として利用できるバルコニーがあります。 建物の共用スペースに、日々の出入に便利なエレベーターや、いざという時の防犯カメラや、急な外出や不在がちのご家庭の荷物受け取りに便利な宅配ボックスや、居室内を常に清潔に保てる24時間利用可能なゴミ捨て置き場が設置されています。
周辺施設
この物件の学区は、戸山小学校区・西早稲田中学校区です。
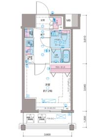
ガリシア新宿NorthⅡ 502号室の間取り
間取り:1K
間取詳細:1K
専有面積:25.74㎡
方位:西
部屋位置:その他
ガリシア新宿NorthⅡ 502号室の設備
キッチン
システムキッチン
ガスコンロ
ガスコンロ二口以上
バス・トイレ
バス・トイレ別
浴室乾燥機
温水洗浄便座
玄関
TVモニタ付インターホン
オートロック
宅配ボックス
収納
クローゼット
シューズボックス
全居室収納
バルコニー
バルコニー
ルーフバルコニー
室内設備
エアコン
フローリング
室内洗濯機置場
デザイナーズ
位置・立地
2階以上
インフラ
インターネット可
BS
CS
都市ガス
建物設備
エレベーター
防犯カメラ
24時間ゴミ出しOK
入居条件
2人入居可
ライフステージ
一人暮らしに人気の設備
カップルに人気の設備
家族に人気の設備
夫婦に人気の設備
三世代で人気の設備
こだわり
セキュリティ対策重視
収納重視
タイパ重視
外で子どもと遊びたい
雨の日でも洗濯したい
洋室で暮らしたい
持ち物をスッキリ隠す収納部屋
趣味
オークション・通販が好き
ガーデニングが好き
お得な条件
インターネット無料
ガリシア新宿NorthⅡ 502号室の賃貸契約情報
毎月支払う |
家賃13.45万円/月共益費12,000円/月 |
|---|---|
初期費用 |
敷金1ヶ月 (13.45万円)礼金1ヶ月 (13.45万円)保証金-敷引き償却金- |
更新料 |
134,500円 |
鍵交換費用 |
38,500円 |
室内清掃費用 |
- |
駐車場料金 |
- |
損保・ |
借家賠付きの火災保険にご加入いただきます。 |
保証会社 |
加入要 保証会社利用料:〈個人〉①株式会社ジャックス[VICCS-ONE]初回合計家賃50%、1%/月、10,500円/年②株式会社エポスカード[ROOM iD]初回合計家賃50%、1.5%/月、年間更新料無し※法人契 |
契約期間 |
2年 |
入居可能日 |
2026年05月下旬 |
フリーレント期間 |
- |
取引形態 |
一般媒介 |
備考 |
- |
ガリシア新宿NorthⅡ 502号室の建物情報
建物名称 |
ガリシア新宿NorthⅡ |
|---|---|
最寄駅 |
|
所在地 |
東京都新宿区百人町 |
階層 |
5階部分(地上11階建) |
構造 |
RC |
築年数 |
2022年6月(築4年) |
駐車場 |
- |
小学校学区 |
戸山小学校 |
中学校学区 |
西早稲田中学校 |
- 学区データについて
- ※学区データは必ずしも正確とは限りません。詳細に関しては最寄店舗または各自治体の教育委員会に必ずご確認ください。
無料この物件に問い合わせ
- ガリシア新宿NorthⅡ 502号室

-
13.45万円
(共益費
12,000円)
- 敷
- 1ヶ月
- 礼
- 1ヶ月
- 保
- -
- 償
- -
ガリシア新宿NorthⅡ 502号室の物件のお問い合わせ先・取り扱い店舗
ハウスコム 池袋西口店
- アクセス
-
山手線「池袋駅」西口徒歩1分
東京メトロ 丸ノ内線「池袋駅」D11出口徒歩1分
- 住所
- 〒171-0021 東京都豊島区西池袋1丁目19−6 松長ビル 2階
- 営業時間
- 10:00~18:00
- 定休日
- なし
- 営業エリア
- 豊島区 板橋区 新宿区 練馬区 文京区
- 取引態様
- 賃貸仲介業















