コレッツィオーネ D号室(1階/1LDK)の賃貸物件(賃貸アパート)
神奈川県相模原市南区にあるコレッツィオーネ D号室は独立洗面台、シャワー付洗面化粧台、TVモニタ付インターホン、1階、プロパンガスなどが特徴です。最寄り駅の横浜線古淵駅から徒歩14分です。コレッツィオーネ D号室の詳細はハウスコム 町田店までお気軽にお問い合わせください!
情報更新日:
次回更新予定日:
※次回更新予定日について:お店側では順次空室確認を行っていますが、次回更新予定日までに空室確認が行えない場合には、この物件情報は自動的に削除されます。
コレッツィオーネ D号室の賃貸物件部屋概要
家賃 |
18.7万円
初期費用を |
|---|---|
共益費 |
-
入居可能時期 |
敷金/礼金 |
- / - |
保証金/ |
1ヶ月 / 1ヶ月 |
最寄駅 |
|
所在地 |
神奈川県相模原市南区東大沼 |
部屋番号 |
D号室 |
間取り |
1LDK(L12.5・洋6) |
専有面積 |
85.95㎡ |
築年数 |
2019年8月(築7年) |
階数 |
1階部分(地上2階建) |
方位・位置 |
北東 / その他 |
物件種別 |
賃貸アパート |
構造 |
木造 |
駐車場 |
空有 賃料に含む |
小学校学区 |
大野小学校 |
中学校学区 |
大野台中学校 |
他の空き部屋 |
D号室 |
- 学区データについて
- ※学区データは必ずしも正確とは限りません。詳細に関しては最寄店舗または各自治体の教育委員会に必ずご確認ください。
コレッツィオーネ D号室の特徴
契約条件
この物件は、2人入居もご契約できます。 敷金と礼金が無料なため、初期費用が比較的安くなる傾向にあります。
セキュリティ
来客時には居室内のテレビモニターにて訪問者の顔を確認することができます。
室内設備
システムキッチンには、IHコンロが備え付けられています。 お風呂とトイレは別です。お風呂には、追い焚き機能が備わっています。 トイレは、温水洗浄便座機能付きになります。 女性に嬉しい設備のシャワーの付いている洗面化粧台があります。 洗濯に便利な設備として、室内洗濯機置場があります。浴室乾燥機も設置されているので、梅雨時の生乾き臭も比較的防ぐことができます。
居室状況
お部屋の床は、フローリングとなっており、エアコンが設置されています。 インターネットも無料で入居後すぐ生活が始められます。 収納スペースとして、基本的な居室にクローゼットがあります。
建物設備共用部分
居室外の専有スペースとして、洗濯物を干すなどの用途として利用できるバルコニーがあります。 駐車場があり、無料で利用することができます。
周辺施設
この物件の学区は、大野小学校区・大野台中学校区です。
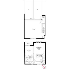
コレッツィオーネ D号室の間取り
間取り:1LDK
間取詳細:1LDK(L12.5・洋6)
専有面積:85.95㎡
方位:北東
部屋位置:その他
コレッツィオーネ D号室の設備
キッチン
システムキッチン
IHコンロ
バス・トイレ
バス・トイレ別
追い焚き
浴室乾燥機
温水洗浄便座
独立洗面台
シャワー付洗面化粧台
玄関
TVモニタ付インターホン
収納
クローゼット
バルコニー
バルコニー
ルーフバルコニー
室内設備
エアコン
フローリング
室内洗濯機置場
位置・立地
1階
インフラ
インターネット可
CATV
BS
プロパンガス
入居条件
2人入居可
ライフステージ
一人暮らしに人気の設備
カップルに人気の設備
家族に人気の設備
夫婦に人気の設備
三世代で人気の設備
こだわり
外で子どもと遊びたい
雨の日でも洗濯したい
洋室で暮らしたい
趣味
ガーデニングが好き
お得な条件
インターネット無料
駐車場無料
コレッツィオーネ D号室の賃貸契約情報
毎月支払う |
家賃18.7万円/月共益費- |
|---|---|
初期費用 |
敷金-礼金-保証金1ヶ月敷引き償却金1ヶ月 |
更新料 |
280,500円 |
鍵交換費用 |
- |
室内清掃費用 |
- |
駐車場料金 |
空有 賃料に含む |
損保・ |
借家賠付きの火災保険にご加入いただきます。 |
保証会社 |
加入要 保証会社利用料:エムぞう君 初回保証料55%~ ※最低保証料19,800円 年間:11,000円 |
契約期間 |
2年 |
入居可能日 |
2026年07月 |
フリーレント期間 |
- |
取引形態 |
一般媒介 |
備考 |
- |
コレッツィオーネ D号室の建物情報
建物名称 |
コレッツィオーネ |
|---|---|
最寄駅 |
|
所在地 |
神奈川県相模原市南区東大沼 |
階層 |
1階部分(地上2階建) |
構造 |
木造 |
築年数 |
2019年8月(築7年) |
駐車場 |
空有 賃料に含む |
小学校学区 |
大野小学校 |
中学校学区 |
大野台中学校 |
- 学区データについて
- ※学区データは必ずしも正確とは限りません。詳細に関しては最寄店舗または各自治体の教育委員会に必ずご確認ください。
無料この物件に問い合わせ
- コレッツィオーネ D号室

-
18.7万円
(共益費
-)
- 敷
- -
- 礼
- -
- 保
- 1ヶ月
- 償
- 1ヶ月
コレッツィオーネ D号室の物件のお問い合わせ先・取り扱い店舗
ハウスコム 町田店
- アクセス
-
小田急小田原線「町田駅」西口徒歩2分
- 住所
- 〒194-0022 東京都町田市森野1丁目22−14 小田急シティビル町田 1階
- 営業時間
- 10:00~18:00
- 定休日
- なし
- 営業エリア
- 町田市,相模原市,横浜市緑区・青葉区,座間市,大和市,川崎市麻生区
- 取引態様
- 賃貸仲介業





























