リベルテ本野 A号室(1階/3LDK)の賃貸物件(賃貸一戸建て)
愛知県豊川市にあるリベルテ本野 A号室は独立洗面台、TVモニタ付インターホン、1階、プロパンガス、駐車場などが特徴です。最寄り駅の名鉄豊川線諏訪町駅から2.64kmです。リベルテ本野 A号室の詳細はハウスコム 豊橋店までお気軽にお問い合わせください!
情報更新日:
次回更新予定日:
※次回更新予定日について:お店側では順次空室確認を行っていますが、次回更新予定日までに空室確認が行えない場合には、この物件情報は自動的に削除されます。
リベルテ本野 A号室の賃貸物件部屋概要
家賃 |
9.5万円
初期費用を |
|---|---|
共益費 |
-
入居可能時期 |
敷金/礼金 |
2ヶ月 / - |
保証金/ |
- / - |
最寄駅 |
|
所在地 |
愛知県豊川市本野町 |
部屋番号 |
A号室 |
間取り |
3LDK(洋6.4・洋6.4・洋4.3) |
専有面積 |
74.54㎡ |
築年数 |
2009年3月(築17年) |
階数 |
1階部分(地上2階建) |
方位・位置 |
ー / 角部屋 |
物件種別 |
賃貸一戸建て |
構造 |
木造 |
駐車場 |
空有 賃料に含む |
小学校学区 |
三蔵子小学校 |
中学校学区 |
金屋中学校 |
他の空き部屋 |
ー |
- 学区データについて
- ※学区データは必ずしも正確とは限りません。詳細に関しては最寄店舗または各自治体の教育委員会に必ずご確認ください。
リベルテ本野 A号室の特徴
-
一人暮らしに人気の設備

-
カップルに人気の設備

-
家族に人気の設備

-
夫婦に人気の設備

-
三世代で人気の設備

-
収納重視

-
外で子どもと遊びたい

-
急な来客でも駐車したい

-
雨の日でも洗濯したい

-
洋室で暮らしたい

-
持ち物をスッキリ隠す収納部屋

-
緑のある環境が好き

-
ガーデニングが好き

-
家庭菜園が好き

契約条件
この物件は、2人入居もご契約できます。 楽器演奏もご相談ください。 また、ご契約時に保証人は不要です。 礼金が無料なため、初期費用が比較的安くなる傾向にあります。
セキュリティ
来客時には居室内のテレビモニターにて訪問者の顔を確認することができます。
室内設備
ガスコンロが備え付けられています。 お風呂とトイレは別です。お風呂には、追い焚き機能が備わっています。 トイレは、温水洗浄便座機能付きになります。 女性に嬉しい設備のシャワーの付いている洗面化粧台があります。 洗濯に便利な設備として、室内洗濯機置場があります。
居室状況
お部屋の床は、フローリングとなっています。収納スペースとして、基本的な居室にクローゼットを設置、玄関にはシューズボックスがあります。
建物設備共用部分
居室外の専有スペースとして、入居者専用の庭があり、家庭菜園や簡単なお庭遊びが楽しめます。 平面駐車場があり、無料で2台以上の車で利用することができます。
周辺施設
この物件の学区は、三蔵子小学校区・金屋中学校区です。
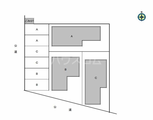
リベルテ本野 A号室の間取り
間取り:3LDK
間取詳細:3LDK(洋6.4・洋6.4・洋4.3)
専有面積:74.54㎡
方位:ー
部屋位置:角部屋
リベルテ本野 A号室の設備
キッチン
ガスコンロ
バス・トイレ
バス・トイレ別
追い焚き
温水洗浄便座
独立洗面台
シャワー付洗面化粧台
玄関
TVモニタ付インターホン
収納
クローゼット
シューズボックス
全居室収納
バルコニー
専用庭付
室内設備
フローリング
室内洗濯機置場
位置・立地
1階
角部屋
インフラ
BS
プロパンガス
建物設備
駐車場
平面駐車場
駐車2台以上可
入居条件
楽器可・相談
2人入居可
オンライン相談可
保証人不要
ライフステージ
一人暮らしに人気の設備
カップルに人気の設備
家族に人気の設備
夫婦に人気の設備
三世代で人気の設備
こだわり
収納重視
外で子どもと遊びたい
急な来客でも駐車したい
雨の日でも洗濯したい
洋室で暮らしたい
持ち物をスッキリ隠す収納部屋
趣味
緑のある環境が好き
ガーデニングが好き
家庭菜園が好き
お得な条件
駐車場無料
リベルテ本野 A号室の賃貸契約情報
毎月支払う |
家賃9.5万円/月共益費- |
|---|---|
初期費用 |
敷金2ヶ月 (19万円)礼金-保証金-敷引き償却金- |
更新料 |
- |
鍵交換費用 |
16,500円 |
室内清掃費用 |
- |
駐車場料金 |
空有 賃料に含む |
損保・ |
借家賠付きの火災保険にご加入いただきます。 |
保証会社 |
加入要 保証会社:オリコフォレントインシュア 保証会社利用料:初回:総賃料50%(最低保証料:20000円)更新:1万円/年 月額保証料:総賃料1%/月 |
契約期間 |
2年 |
入居可能日 |
相談 |
フリーレント期間 |
- |
取引形態 |
一般媒介 |
備考 |
- |
リベルテ本野 A号室の建物情報
建物名称 |
リベルテ本野 |
|---|---|
最寄駅 |
|
所在地 |
愛知県豊川市本野町 |
階層 |
1階部分(地上2階建) |
構造 |
木造 |
築年数 |
2009年3月(築17年) |
駐車場 |
空有 賃料に含む |
小学校学区 |
三蔵子小学校 |
中学校学区 |
金屋中学校 |
- 学区データについて
- ※学区データは必ずしも正確とは限りません。詳細に関しては最寄店舗または各自治体の教育委員会に必ずご確認ください。
無料この物件に問い合わせ
- リベルテ本野 A号室

-
9.5万円
(共益費
-)
- 敷
- 2ヶ月
- 礼
- -
- 保
- -
- 償
- -
リベルテ本野 A号室の物件のお問い合わせ先・取り扱い店舗
ハウスコム 豊橋店
- アクセス
-
東海道本線(JR東海)「豊橋駅」西口徒歩9分
- 住所
- 〒441-8023 愛知県豊橋市八通町105
- 営業時間
- 10:00~18:00
- 定休日
- なし
- 営業エリア
- 豊橋市,豊川市,田原市,湖西市,新城市,蒲郡市,
- 取引態様
- 賃貸仲介業












