GRANPASEO下北沢 101号室(1階/1LDK)の賃貸物件(賃貸マンション)
東京都世田谷区にあるGRANPASEO下北沢 101号室は独立洗面台、TVモニタ付インターホン、室内洗濯機置場、1階、即入居可などが特徴です。最寄り駅の京王井の頭線池ノ上駅から徒歩2分です。GRANPASEO下北沢 101号室の詳細はハウスコム 渋谷店までお気軽にお問い合わせください!
情報更新日:
次回更新予定日:
※次回更新予定日について:お店側では順次空室確認を行っていますが、次回更新予定日までに空室確認が行えない場合には、この物件情報は自動的に削除されます。
GRANPASEO下北沢 101号室の賃貸物件部屋概要
家賃 |
21万円
初期費用を |
|---|---|
共益費 |
12,000円
入居可能時期 |
敷金/礼金 |
- / - |
保証金/ |
- / - |
最寄駅 |
|
所在地 |
東京都世田谷区北沢 |
部屋番号 |
101号室 |
間取り |
1LDK(LDK11.1・洋4.9) |
専有面積 |
40.50㎡ |
築年数 |
新築 |
階数 |
1階部分(地上4階建) |
方位・位置 |
南東 / その他 |
物件種別 |
賃貸マンション |
構造 |
RC |
駐車場 |
無 |
小学校学区 |
池之上小学校 |
中学校学区 |
富士中学校 |
他の空き部屋 |
103号室 203号室 305号室 306号室 405号室 |
- 学区データについて
- ※学区データは必ずしも正確とは限りません。詳細に関しては最寄店舗または各自治体の教育委員会に必ずご確認ください。
GRANPASEO下北沢 101号室の特徴
契約条件
この物件は、2人入居もご契約できます。 敷金と礼金が無料なため、初期費用が比較的安くなる傾向にあります。
セキュリティ
この物件の建物には、宅配ボックスが設置されており、来客時には居室内のテレビモニターにて訪問者の顔を確認することができます。
室内設備
システムキッチンが備え付けられています。 お風呂とトイレは別です。お風呂には、追い焚き機能が備わっています。 トイレは、温水洗浄便座機能付きになります。 女性に嬉しい設備の独立した洗面化粧台があります。 洗濯に便利な設備として、室内洗濯機置場があります。浴室乾燥機も設置されているので、梅雨時の生乾き臭も比較的防ぐことができます。
居室状況
インターネットも無料で入居後すぐ生活が始められます。 収納スペースとして、基本的な居室にクローゼットを設置、玄関にはシューズボックスがあります。
建物設備共用部分
建物の共用スペースに、日々の出入に便利なエレベーターや、急な外出や不在がちのご家庭の荷物受け取りに便利な宅配ボックスが設置されています。
周辺施設
この物件の学区は、池之上小学校区・富士中学校区です。
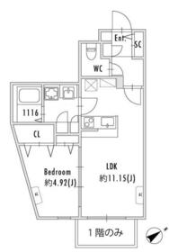
GRANPASEO下北沢 101号室の間取り
間取り:1LDK
間取詳細:1LDK(LDK11.1・洋4.9)
専有面積:40.50㎡
方位:南東
部屋位置:その他
GRANPASEO下北沢 101号室の設備
キッチン
システムキッチン
バス・トイレ
バス・トイレ別
追い焚き
浴室乾燥機
温水洗浄便座
独立洗面台
玄関
TVモニタ付インターホン
宅配ボックス
収納
クローゼット
シューズボックス
室内設備
室内洗濯機置場
位置・立地
1階
インフラ
都市ガス
建物設備
エレベーター
入居条件
2人入居可
即入居可
ライフステージ
一人暮らしに人気の設備
カップルに人気の設備
家族に人気の設備
夫婦に人気の設備
三世代で人気の設備
こだわり
雨の日でも洗濯したい
趣味
オークション・通販が好き
お得な条件
インターネット無料
GRANPASEO下北沢 101号室の賃貸契約情報
毎月支払う |
家賃21万円/月共益費12,000円/月 |
|---|---|
初期費用 |
敷金-礼金-保証金-敷引き償却金- |
更新料 |
210,000円 |
鍵交換費用 |
- |
室内清掃費用 |
- |
カードキー発行費用 |
11,000円 |
駐車場料金 |
無 |
損保・ |
借家賠付きの火災保険にご加入いただきます。 |
保証会社 |
加入要 保証会社利用料:初回保証料:総賃料の50% 月額保証料:1千円(口振込) 年間保証料:なし |
契約期間 |
2年 |
入居可能日 |
即入居可 |
フリーレント期間 |
- |
取引形態 |
一般媒介 |
備考 |
- |
GRANPASEO下北沢 101号室の建物情報
建物名称 |
GRANPASEO下北沢 |
|---|---|
最寄駅 |
|
所在地 |
東京都世田谷区北沢 |
階層 |
1階部分(地上4階建) |
構造 |
RC |
築年数 |
新築 |
駐車場 |
無 |
小学校学区 |
池之上小学校 |
中学校学区 |
富士中学校 |
- 学区データについて
- ※学区データは必ずしも正確とは限りません。詳細に関しては最寄店舗または各自治体の教育委員会に必ずご確認ください。
無料この物件に問い合わせ
- GRANPASEO下北沢 101号室

-
21万円
(共益費
12,000円)
- 敷
- -
- 礼
- -
- 保
- -
- 償
- -
GRANPASEO下北沢 101号室の物件のお問い合わせ先・取り扱い店舗
ハウスコム 渋谷店
- アクセス
-
山手線「渋谷駅」徒歩1分
- 住所
- 〒150-0043 東京都渋谷区道玄坂2-30-4 玉久ビル6階
- 営業時間
- 10:00~18:00
- 定休日
- 火曜日・水曜日
- 営業エリア
- 主に渋谷区、港区、世田谷区、目黒区(その他地域もご紹介可能です)
- 取引態様
- 賃貸仲介業






















