01号室

写真を見る
13.4万円 (共益費 4,000円)
- 敷
- -
- 礼
- 1ヶ月
- 保
- -
- 償
- -
公開
グランエッグス高円寺Wは、東京都杉並区高円寺南にある3階建の賃貸アパートです。築年月は、2013年12月で現在築13年になります。最寄り駅の中央本線(JR東日本)高円寺駅から徒歩4分です。
この建物に4件の情報更新日:
参考賃料 |
13.4万円 |
|---|---|
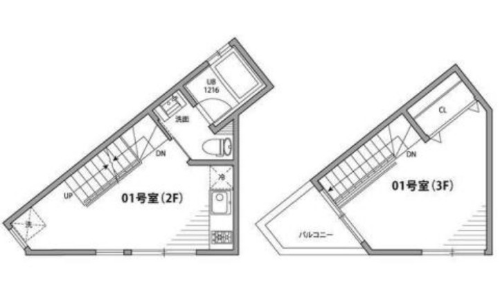
間取り |
1LDK |
空室 |
4部屋 空室を見る |
物件種別 |
賃貸アパート |
階層 |
地上3階 |
構造 |
木造 |
築年数 |
2013年12月(築13年) |
駐車場 |
- |
最寄駅 |
|
所在地 |
東京都杉並区高円寺南 |
小学校学区 |
|
中学校学区 |
取り扱う不動産会社・店舗が4社、募集中の部屋が4部屋あります。

写真を見る












13.4万円 (共益費 4,000円)
公開

写真を見る












13.4万円 (共益費 4,000円)
公開

写真を見る












13.4万円 (共益費 4,000円)
公開

写真を見る












13.4万円 (共益費 4,000円)
公開




京王井の頭線高井戸駅からすぐ
都会にある癒しの空間
地下1600mから汲み上げる天然温泉。内風呂にはアトラクション風呂もあり、露天風呂は東屋のある岩風呂。環八通り沿いとは思えないほど静かで、木々の緑が趣を添えている。土・日曜、祝日はプール使用可(小学生以上)。
提供元:昭文社

JR中央線荻窪駅から関東バス北裏行きで7分、荻窪警察署前下車すぐ
日本のアニメを総合的に紹介するミュージアム
子どもからシニアまで、世代を超えて日本のアニメーション全体を体系づけて、学び、体験し、理解しながら楽しめるアニメーションの総合ミュージアム。
提供元:昭文社

地下鉄南阿佐ヶ谷駅からすぐ
阿佐ヶ谷駅に近く、新宿へも好アクセス
ルートイングループのホテル。宴会にも対応できるホールがある。阿佐ヶ谷駅に近く、新宿へも好アクセス。フロントは24時間営業している。
提供元:昭文社