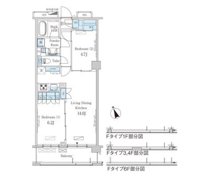
103号室

写真を見る
25.6万円 (共益費 15,000円)
- 敷
- 1ヶ月
- 礼
- -
- 保
- -
- 償
- -
公開
パークアクシス駒込HILLTOPは、東京都北区中里にある6階建の賃貸マンションです。築年月は、2014年12月で現在築11年になります。最寄り駅の山手線駒込駅から徒歩8分です。
この建物に9件の情報更新日:
取り扱う不動産会社・店舗が5社、募集中の部屋が9部屋あります。

写真を見る


















25.6万円 (共益費 15,000円)
公開

写真を見る


















25.6万円 (共益費 15,000円)
公開

写真を見る


















25.6万円 (共益費 15,000円)
公開

写真を見る


















25.6万円 (共益費 15,000円)
公開

写真を見る










26万円 (共益費 15,000円)
公開

写真を見る










26万円 (共益費 15,000円)
公開

写真を見る










26万円 (共益費 15,000円)
公開

写真を見る










26万円 (共益費 15,000円)
公開

写真を見る










26万円 (共益費 15,000円)
公開
掲載履歴とは、過去に掲載された時点の情報を履歴として一覧にまとめたものです。
※最終的な成約賃料とは異なる場合があります。また、将来の募集賃料を保証するものではありません。
30代 / 女性 / 元住人
田端駅の方にある、医療ビルの耳鼻科が最高にいい。ネット予約制で、ちゃんと予約していくと、待ち時間ほぼゼロ。いつもビル下の調剤薬局で薬もらう方が待つくらい。その耳鼻科で、インフルエンザの予防接種もしてくれるし、ただの風邪ならもう、そこにいく(予約してから(当日予約もある))。
30代 / 女性 / 元住人
十条は、昔ながらの町で、綺麗な高層マンションよりも、木造アパート物件が多いです。十条駅近辺は木造住宅密集地域です。 個人的には、鉄骨マンションは板橋駅に多く、十条の場合は、環八やバス通り沿いにマンションが多いイメージです。(*不動産屋さんは、「火事の際に高層のマンションにはハシゴ車が必要だが、、十条駅近辺は道幅が狭く、広い通り沿いにしかマンションが作れなかったから」とおっしゃってました。) 他にも、十条駅の高架化や73号線の計画により所々で立ち退きがあったり、新築の戸建てやマンションが建ったりと、だんだんと街が変わってきています。
※口コミに関するお問い合わせはこちらからお願いします。




JR山手線池袋駅から徒歩10分
執事が接客するカフェでお嬢様気分
本格派イングリッシュ・アフタヌーン・ティーが楽しめる。執事が接客してくれる店内は、英国の屋敷をイメージした重厚でエレガントな雰囲気。予約制なので要注意。
提供元:昭文社




地下鉄東池袋駅から徒歩10分
深い奥行き感のあるリアルな星空を体感
全天ドームスクリーンに映し出される8Kマルチプロジェクションシステムにより、臨場感の高い鮮やかな映像を実現。リニューアルにより、寝転んで星空を眺められる『雲シート』とともに大人気の『芝シート』が更に心ときめくエリアに。プラネタリウムの伝説的名作『銀河鉄道の夜』を、満天史上最も美しいクオリティで上映する。都会の真ん中で体感したことのない世界に浸れ、特別な時間を堪能できる。
提供元:昭文社




地下鉄東池袋駅から徒歩5分
天空のオアシスを基本コンセプトにした水族館
ビル屋上にある都市型高層水族館。大海の旅、水辺の旅、天空の旅の3エリアに分かれており、ペンギンが空を飛ぶように泳ぐ水槽や、日本最大級のクラゲ水槽を含むクラゲエリアなど、ユニークな展示を実施。水の世界を五感で体験できる。
提供元:昭文社