メゾン清里 202号室(2階/2LDK)の賃貸物件(賃貸アパート)
愛知県名古屋市西区にあるメゾン清里 202号室は宅配ボックス、フローリング、室内洗濯機置場、角部屋、保証人不要などが特徴です。最寄り駅の名鉄犬山線上小田井駅から徒歩21分です。メゾン清里 202号室の詳細はハウスコム 黒川店までお気軽にお問い合わせください!
情報更新日:
次回更新予定日:
※次回更新予定日について:お店側では順次空室確認を行っていますが、次回更新予定日までに空室確認が行えない場合には、この物件情報は自動的に削除されます。
メゾン清里 202号室の賃貸物件部屋概要
家賃 |
6.7万円
初期費用を |
|---|---|
共益費 |
3,300円
入居可能時期 |
敷金/礼金 |
- / - |
保証金/ |
- / - |
最寄駅 |
|
所在地 |
愛知県名古屋市西区清里町 |
部屋番号 |
202号室 |
間取り |
2LDK(洋6・洋6・LDK10.2) |
専有面積 |
57.02㎡ |
築年数 |
2005年3月(築21年) |
階数 |
2階部分(地上2階建) |
方位・位置 |
南 / 角部屋 |
物件種別 |
賃貸アパート |
構造 |
木造 |
駐車場 |
9,900円 |
小学校学区 |
比良西小学校 |
中学校学区 |
山田東中学校 |
他の空き部屋 |
ー |
- 学区データについて
- ※学区データは必ずしも正確とは限りません。詳細に関しては最寄店舗または各自治体の教育委員会に必ずご確認ください。
メゾン清里 202号室の特徴
-
一人暮らしに人気の設備

-
カップルに人気の設備

-
家族に人気の設備

-
夫婦に人気の設備

-
三世代で人気の設備

-
日当たり重視

-
外で子どもと遊びたい

-
急な来客でも駐車したい

-
雨の日でも洗濯したい

-
洋室で暮らしたい

-
ガーデニングが好き

契約条件
この物件は、外国籍の方もご相談の上、ご契約できます。 また、ご契約時に保証人は不要です。 敷金と礼金が無料なため、初期費用が比較的安くなる傾向にあります。 お支払いは、初期費用と家賃がクレジットカードにて決済できます。
セキュリティ
この物件の建物には、防犯カメラや宅配ボックスが設置されており、来客時には居室内のテレビモニターにて訪問者の顔を確認することができます。
室内設備
お風呂とトイレは別です。お風呂には、追い焚き機能が備わっています。 女性に嬉しい設備の独立した洗面化粧台があります。 洗濯に便利な設備として、室内洗濯機置場があります。
居室状況
お部屋の床は、フローリングとなっており、エアコンが設置されています。 収納スペースとして、基本的な居室にクローゼットを設置、玄関にはシューズボックスがあります。
建物設備共用部分
居室外の専有スペースとして、洗濯物を干すなどの用途として利用できるバルコニーがあります。 建物の共用スペースに、いざという時の防犯カメラや、急な外出や不在がちのご家庭の荷物受け取りに便利な宅配ボックスが設置されています。 駐車場があり2台以上の車で利用することができます。駐輪場が利用できます。
周辺施設
この物件の学区は、比良西小学校区・山田東中学校区です。近くには、徒歩21分(1620m)で名鉄犬山線 上小田井駅があります。
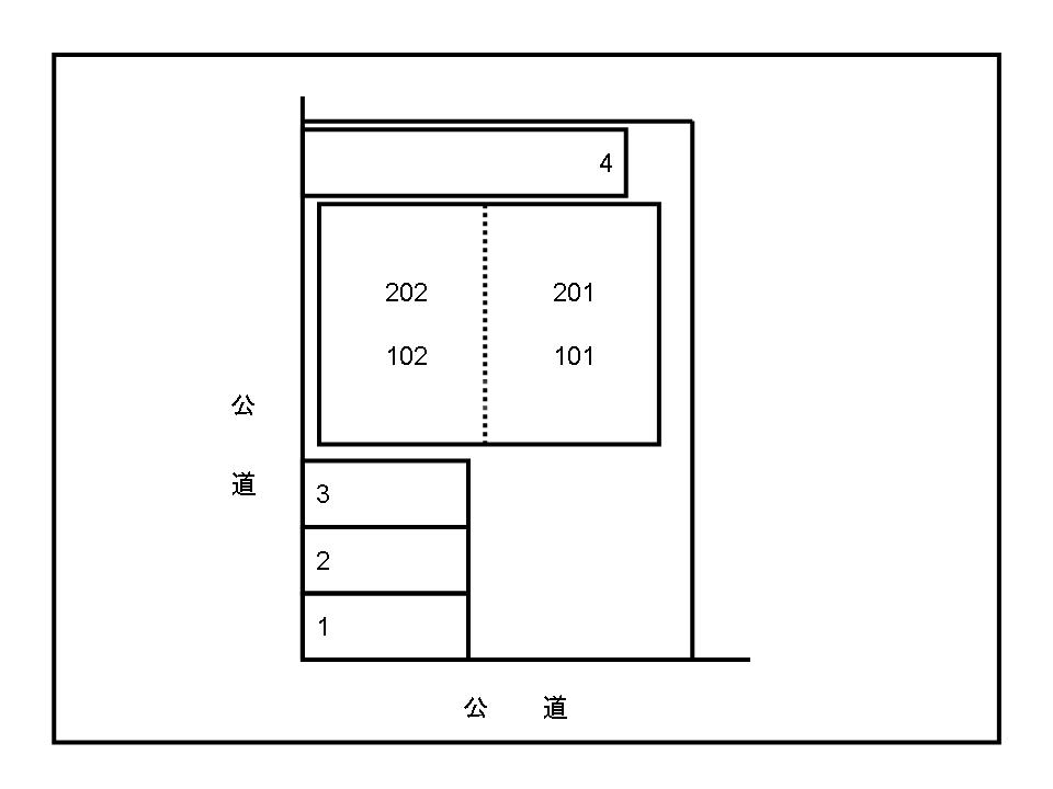
メゾン清里 202号室の間取り
間取り:2LDK
間取詳細:2LDK(洋6・洋6・LDK10.2)
専有面積:57.02㎡
方位:南
部屋位置:角部屋
メゾン清里 202号室の設備
バス・トイレ
バス・トイレ別
追い焚き
独立洗面台
玄関
TVモニタ付インターホン
宅配ボックス
収納
クローゼット
シューズボックス
バルコニー
バルコニー
ルーフバルコニー
室内設備
エアコン
フローリング
室内洗濯機置場
位置・立地
2階以上
最上階
角部屋
南向き
インフラ
CATV
BS
都市ガス
建物設備
防犯カメラ
駐車2台以上可
駐輪場
入居条件
外国人可・相談
保証人不要
即入居可
ライフステージ
一人暮らしに人気の設備
カップルに人気の設備
家族に人気の設備
夫婦に人気の設備
三世代で人気の設備
こだわり
日当たり重視
外で子どもと遊びたい
急な来客でも駐車したい
雨の日でも洗濯したい
洋室で暮らしたい
趣味
ガーデニングが好き
お得な条件
初期費用カード決済可
家賃カード決済可
メゾン清里 202号室の賃貸契約情報
毎月支払う |
家賃6.7万円/月共益費3,300円/月 |
|---|---|
初期費用 |
敷金-礼金-保証金-敷引き償却金- |
更新料 |
- |
鍵交換費用 |
- |
室内清掃費用 |
70,000円 |
駐車場料金 |
9,900円 |
損保・ |
借家賠付きの火災保険にご加入いただきます。 |
保証会社 |
加入要 保証会社:ハウスリーブ 保証会社利用料:契約時保証委託料:22,000円/月額保証委託料:賃料総額の2.2%又は5.5% |
契約期間 |
- |
入居可能日 |
即入居可 |
フリーレント期間 |
- |
取引形態 |
一般媒介 |
備考 |
火災保険要加入/更新事務手数料22000円/収納手数料170円(月額)/24時間サポート(月額330円)が必要です。/5月12日以降に入居申込の場合、24時間サポート費用と収納手数料は不要、ruumサポート(月額1980円、税込)が必要です。/鍵セット費3300円 |
メゾン清里 202号室の建物情報
建物名称 |
メゾン清里 |
|---|---|
最寄駅 |
|
所在地 |
愛知県名古屋市西区清里町 |
階層 |
2階部分(地上2階建) |
構造 |
木造 |
築年数 |
2005年3月(築21年) |
駐車場 |
9,900円 |
小学校学区 |
比良西小学校 |
中学校学区 |
山田東中学校 |
- 学区データについて
- ※学区データは必ずしも正確とは限りません。詳細に関しては最寄店舗または各自治体の教育委員会に必ずご確認ください。
無料この物件に問い合わせ
- メゾン清里 202号室

-
6.7万円
(共益費
3,300円)
- 敷
- -
- 礼
- -
- 保
- -
- 償
- -
メゾン清里 202号室の物件のお問い合わせ先・取り扱い店舗
ハウスコム 黒川店
- アクセス
-
名古屋市営地下鉄 名城線「黒川駅」3番出口徒歩1分
- 住所
- 〒462-0046 愛知県名古屋市北区城見通3-13 黒川ターミナルビル1階
- 営業時間
- 10:00~18:00
- 定休日
- なし(定休日なし)
- 営業エリア
- 名古屋市内、北名古屋市、清須市、豊山町、春日井市
- 取引態様
- 賃貸仲介業






















