プランタン 202号室(2階/1LDK)の賃貸物件(賃貸アパート)
東京都葛飾区にあるプランタン 202号室はルーフバルコニー、エアコン、2階以上、最上階、南向きなどが特徴です。最寄り駅の常磐線各駅停車(千代田線直通)金町駅から徒歩28分です。プランタン 202号室の詳細はハウスコム 松戸店までお気軽にお問い合わせください!
情報更新日:
次回更新予定日:
※次回更新予定日について:お店側では順次空室確認を行っていますが、次回更新予定日までに空室確認が行えない場合には、この物件情報は自動的に削除されます。
プランタン 202号室の賃貸物件部屋概要
家賃 |
7.8万円
初期費用を |
|---|---|
共益費 |
3,000円
入居可能時期 |
敷金/礼金 |
- / 78,000円 |
保証金/ |
- / - |
最寄駅 |
|
所在地 |
東京都葛飾区西水元 |
部屋番号 |
202号室 |
間取り |
1LDK(洋6.1・K0・LDK12.6) |
専有面積 |
45.81㎡ |
築年数 |
2016年3月(築10年) |
階数 |
2階部分(地上2階建) |
方位・位置 |
南 / 角部屋 |
物件種別 |
賃貸アパート |
構造 |
木造 |
駐車場 |
無 |
小学校学区 |
幸田小学校 |
中学校学区 |
葛美中学校 |
他の空き部屋 |
ー |
- 学区データについて
- ※学区データは必ずしも正確とは限りません。詳細に関しては最寄店舗または各自治体の教育委員会に必ずご確認ください。
プランタン 202号室の特徴
契約条件
この物件は、2人入居もご契約できます。 敷金が無料なため、初期費用が比較的安くなる傾向にあります。
セキュリティ
来客時には居室内のテレビモニターにて訪問者の顔を確認することができます。
室内設備
システムキッチンが備え付けられています。 お風呂とトイレは別です。お風呂には、追い焚き機能が備わっています。 トイレは、温水洗浄便座機能付きになります。 洗濯に便利な設備として、室内洗濯機置場があります。浴室乾燥機も設置されているので、梅雨時の生乾き臭も比較的防ぐことができます。
居室状況
お部屋の床は、フローリングとなっており、エアコンが設置されています。
建物設備共用部分
居室外の専有スペースとして、洗濯物を干すなどの用途として利用できるバルコニーがあります。
周辺施設
この物件の学区は、幸田小学校区・葛美中学校区です。
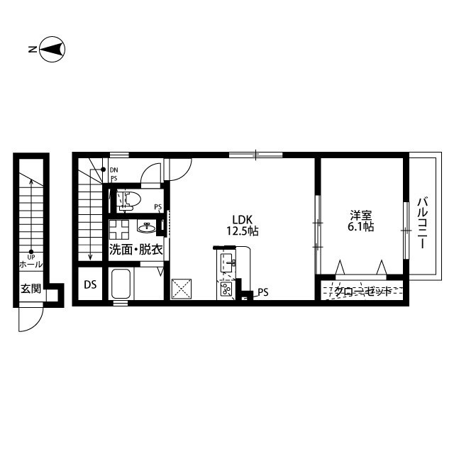
プランタン 202号室の間取り
間取り:1LDK
間取詳細:1LDK(洋6.1・K0・LDK12.6)
専有面積:45.81㎡
方位:南
部屋位置:角部屋
プランタン 202号室の設備
キッチン
システムキッチン
バス・トイレ
バス・トイレ別
追い焚き
浴室乾燥機
温水洗浄便座
玄関
TVモニタ付インターホン
バルコニー
バルコニー
ルーフバルコニー
室内設備
エアコン
フローリング
室内洗濯機置場
位置・立地
2階以上
最上階
角部屋
南向き
インフラ
CATV
入居条件
2人入居可
ライフステージ
一人暮らしに人気の設備
カップルに人気の設備
家族に人気の設備
夫婦に人気の設備
三世代で人気の設備
こだわり
日当たり重視
外で子どもと遊びたい
雨の日でも洗濯したい
洋室で暮らしたい
趣味
ガーデニングが好き
プランタン 202号室の賃貸契約情報
毎月支払う |
家賃7.8万円/月共益費3,000円/月 |
|---|---|
初期費用 |
敷金-礼金78,000円保証金-敷引き償却金- |
更新料 |
- |
鍵交換費用 |
- |
室内清掃費用 |
- |
駐車場料金 |
無 |
損保・ |
借家賠付きの火災保険にご加入いただきます。 |
保証会社 |
加入要 保証会社利用料:株式会社木下グループ 初回保証料月額総費用の80%、利用手数料550円、継続保証料20,000円(2 |
契約期間 |
- |
入居可能日 |
2026年02月中旬 |
フリーレント期間 |
- |
取引形態 |
一般媒介 |
備考 |
火災保険要加入 鍵交換代24000円(税別) 消毒代15000円(税別) |
プランタン 202号室の建物情報
建物名称 |
プランタン |
|---|---|
最寄駅 |
|
所在地 |
東京都葛飾区西水元 |
階層 |
2階部分(地上2階建) |
構造 |
木造 |
築年数 |
2016年3月(築10年) |
駐車場 |
無 |
小学校学区 |
幸田小学校 |
中学校学区 |
葛美中学校 |
- 学区データについて
- ※学区データは必ずしも正確とは限りません。詳細に関しては最寄店舗または各自治体の教育委員会に必ずご確認ください。
無料この物件に問い合わせ
- プランタン 202号室

-
7.8万円
(共益費
3,000円)
- 敷
- -
- 礼
- 78,000円
- 保
- -
- 償
- -
プランタン 202号室の物件のお問い合わせ先・取り扱い店舗
ハウスコム 松戸店
- アクセス
-
常磐線「松戸駅」西口徒歩1分
- 住所
- 〒271-0091 千葉県松戸市本町2−3 平野第1ビル 3階
- 営業時間
- 10:00~18:00
- 定休日
- なし
- 営業エリア
- 松戸市、鎌ヶ谷市、柏市、野田市、三郷市、八潮市、流山市
- 取引態様
- 賃貸仲介業

































