モデラート54 ***号室(2階/2LDK)の賃貸物件(賃貸アパート)
愛知県一宮市にあるモデラート54 ***号室は浴室乾燥機、シューズボックス、ルーフバルコニー、2階以上、プロパンガスなどが特徴です。最寄り駅の東海道本線(JR東海)尾張一宮駅からバスで12分、尾張中島から徒歩4分です。モデラート54 ***号室の詳細はハウスコム 一宮駅前店までお気軽にお問い合わせください!
情報更新日:
次回更新予定日:
※次回更新予定日について:お店側では順次空室確認を行っていますが、次回更新予定日までに空室確認が行えない場合には、この物件情報は自動的に削除されます。
モデラート54 ***号室の賃貸物件部屋概要
家賃 |
4.95万円
初期費用を |
|---|---|
共益費 |
3,900円
入居可能時期 |
敷金/礼金 |
- / - |
保証金/ |
- / - |
最寄駅 |
|
所在地 |
愛知県一宮市三条 |
部屋番号 |
***号室 |
間取り |
2LDK(洋6・洋6・LDK11.3) |
専有面積 |
58.48㎡ |
築年数 |
2005年8月(築21年) |
階数 |
2階部分(地上2階建) |
方位・位置 |
南 / 角部屋 |
物件種別 |
賃貸アパート |
構造 |
木造 |
駐車場 |
4,400円 |
小学校学区 |
大徳小学校 |
中学校学区 |
尾西第一中学校 |
他の空き部屋 |
ー |
- 学区データについて
- ※学区データは必ずしも正確とは限りません。詳細に関しては最寄店舗または各自治体の教育委員会に必ずご確認ください。
モデラート54 ***号室の特徴
-
一人暮らしに人気の設備

-
カップルに人気の設備

-
家族に人気の設備

-
夫婦に人気の設備

-
三世代で人気の設備

-
日当たり重視

-
収納重視

-
外で子どもと遊びたい

-
雨の日でも洗濯したい

-
洋室で暮らしたい

-
持ち物をスッキリ隠す収納部屋

-
推し活グッズを飾りたい

-
ガーデニングが好き

契約条件
この物件は、外国籍の方もご相談の上、2人入居やルームシェアもご契約できます。 また、ご契約時に保証人は不要です。 敷金と礼金が無料なため、初期費用が比較的安くなる傾向にあります。 お支払いは、初期費用と家賃がクレジットカードにて決済できます。
セキュリティ
来客時には居室内のテレビモニターにて訪問者の顔を確認することができます。
室内設備
カウンターキッチンには、ガスコンロが備え付けられています。 お風呂とトイレは別です。お風呂には、追い焚き機能が備わっています。 女性に嬉しい設備のシャワーの付いている洗面化粧台があります。 洗濯に便利な設備として、室内洗濯機置場があります。浴室乾燥機も設置されているので、梅雨時の生乾き臭も比較的防ぐことができます。
居室状況
お部屋の床は、フローリングとなっており、エアコンが設置されています。 収納スペースとして、基本的な居室にクローゼットを設置、玄関にはシューズボックスがあります。
建物設備共用部分
居室外の専有スペースとして、洗濯物を干すなどの用途として利用できるバルコニーがあります。 駐輪場が利用できます。
周辺施設
この物件の学区は、大徳小学校区・尾西第一中学校区です。近くには、徒歩15分(1200m)で平和堂 尾西店があります。
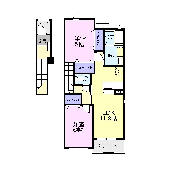
モデラート54 ***号室の間取り
間取り:2LDK
間取詳細:2LDK(洋6・洋6・LDK11.3)
専有面積:58.48㎡
方位:南
部屋位置:角部屋
モデラート54 ***号室の設備
キッチン
カウンターキッチン
ガスコンロ
バス・トイレ
バス・トイレ別
追い焚き
浴室乾燥機
独立洗面台
シャワー付洗面化粧台
玄関
TVモニタ付インターホン
収納
クローゼット
シューズボックス
全居室収納
バルコニー
バルコニー
ルーフバルコニー
室内設備
エアコン
フローリング
室内洗濯機置場
位置・立地
2階以上
最上階
角部屋
南向き
インフラ
CATV
BS
プロパンガス
建物設備
駐輪場
入居条件
2人入居可
ルームシェア可・相談
外国人可・相談
LGBTフレンドリー
オンライン相談可
保証人不要
即入居可
ライフステージ
一人暮らしに人気の設備
カップルに人気の設備
家族に人気の設備
夫婦に人気の設備
三世代で人気の設備
こだわり
日当たり重視
収納重視
外で子どもと遊びたい
雨の日でも洗濯したい
洋室で暮らしたい
持ち物をスッキリ隠す収納部屋
趣味
推し活グッズを飾りたい
ガーデニングが好き
お得な条件
初期費用カード決済可
家賃カード決済可
モデラート54 ***号室の賃貸契約情報
毎月支払う |
家賃4.95万円/月共益費3,900円/月 |
|---|---|
初期費用 |
敷金-礼金-保証金-敷引き償却金- |
更新料 |
- |
鍵交換費用 |
- |
室内清掃費用 |
70,000円 |
駐車場料金 |
4,400円 |
損保・ |
借家賠付きの火災保険にご加入いただきます。 |
保証会社 |
加入要 保証会社:ハウスリーブ 保証会社利用料:契約時保証委託料:22,000円/月額保証委託料:賃料総額の2.2%又は5.5% |
契約期間 |
- |
入居可能日 |
即入居可 |
フリーレント期間 |
- |
取引形態 |
一般媒介 |
備考 |
火災保険要加入/更新事務手数料22000円/収納手数料170円(月額)/24時間サポート(月額330円)が必要です。/鍵セット費3300円 |
モデラート54 ***号室の建物情報
建物名称 |
モデラート54 |
|---|---|
最寄駅 |
|
所在地 |
愛知県一宮市三条 |
階層 |
2階部分(地上2階建) |
構造 |
木造 |
築年数 |
2005年8月(築21年) |
駐車場 |
4,400円 |
小学校学区 |
大徳小学校 |
中学校学区 |
尾西第一中学校 |
- 学区データについて
- ※学区データは必ずしも正確とは限りません。詳細に関しては最寄店舗または各自治体の教育委員会に必ずご確認ください。
無料この物件に問い合わせ
- モデラート54 ***号室

-
4.95万円
(共益費
3,900円)
- 敷
- -
- 礼
- -
- 保
- -
- 償
- -
モデラート54 ***号室の物件のお問い合わせ先・取り扱い店舗
ハウスコム 一宮駅前店
- アクセス
-
東海道本線(JR東海)「尾張一宮駅」東口徒歩1分
- 住所
- 〒491-0858 愛知県一宮市栄4丁目1−5 aaaビル 1階
- 営業時間
- 10:00~18:00
- 定休日
- なし
- 営業エリア
- 「一宮市,稲沢市,江南市,北名古屋市,岩倉市,清須市」
- 取引態様
- 賃貸仲介業
























