リーブル赤羽 106号室(1階/1R)の賃貸物件(賃貸アパート)
東京都北区にあるリーブル赤羽 106号室はTVモニタ付インターホン、オートロック、エアコン、1階、CATVなどが特徴です。最寄り駅の東京メトロ 南北線赤羽岩淵駅から徒歩7分です。リーブル赤羽 106号室の詳細はハウスコム 川口店までお気軽にお問い合わせください!
情報更新日:
次回更新予定日:
※次回更新予定日について:お店側では順次空室確認を行っていますが、次回更新予定日までに空室確認が行えない場合には、この物件情報は自動的に削除されます。
リーブル赤羽 106号室の賃貸物件部屋概要
家賃 |
5万円
初期費用を |
|---|---|
共益費 |
5,000円
入居可能時期 |
敷金/礼金 |
- / 50,000円 |
保証金/ |
- / - |
最寄駅 |
|
所在地 |
東京都北区岩淵町 |
部屋番号 |
106号室 |
間取り |
1R |
専有面積 |
11.89㎡ |
築年数 |
2017年6月(築9年) |
階数 |
1階部分(地上2階建) |
方位・位置 |
西 / その他 |
物件種別 |
賃貸アパート |
構造 |
木造 |
駐車場 |
無 |
小学校学区 |
岩淵小学校 |
中学校学区 |
赤羽岩淵中学校 |
他の空き部屋 |
ー |
- 学区データについて
- ※学区データは必ずしも正確とは限りません。詳細に関しては最寄店舗または各自治体の教育委員会に必ずご確認ください。
リーブル赤羽 106号室の特徴
契約条件
敷金が無料なため、初期費用が比較的安くなる傾向にあります。
セキュリティ
この物件の建物には、オートロックや宅配ボックスが設置されており、来客時には居室内のテレビモニターにて訪問者の顔を確認することができます。
室内設備
ガスコンロが備え付けられています。 トイレは、温水洗浄便座機能付きになります。 洗濯に便利な設備として、室内洗濯機置場があります。
居室状況
お部屋の床は、フローリングとなっており、エアコンが設置されています。 照明器具が備え付けられており、入居後すぐ生活が始められます。
建物設備共用部分
建物の共用スペースに、急な外出や不在がちのご家庭の荷物受け取りに便利な宅配ボックスが設置されています。
周辺施設
この物件の学区は、岩淵小学校区・赤羽岩淵中学校区です。
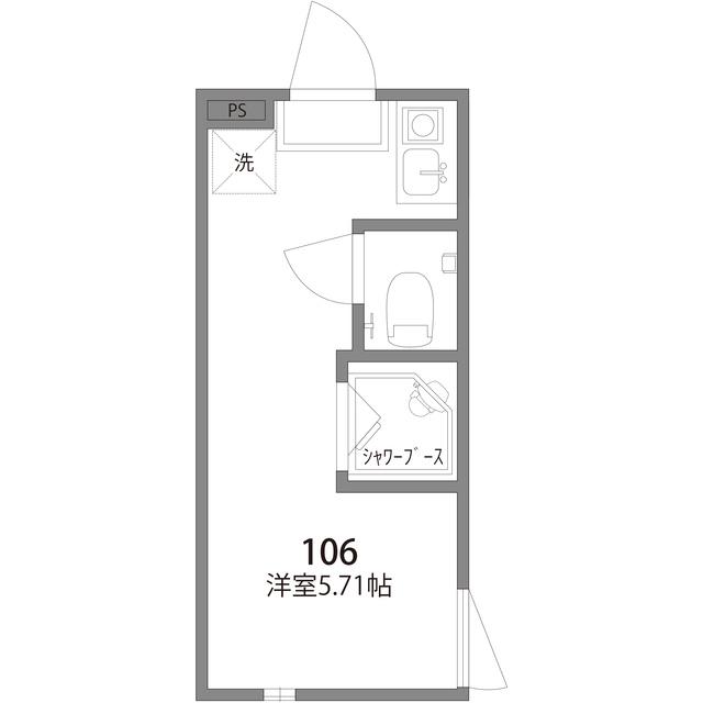
リーブル赤羽 106号室の間取り
間取り:1R
間取詳細:1R
専有面積:11.89㎡
方位:西
部屋位置:その他
リーブル赤羽 106号室の設備
キッチン
ガスコンロ
バス・トイレ
温水洗浄便座
玄関
TVモニタ付インターホン
オートロック
宅配ボックス
室内設備
エアコン
フローリング
室内洗濯機置場
照明器具付
位置・立地
1階
インフラ
CATV
ライフステージ
一人暮らしに人気の設備
カップルに人気の設備
家族に人気の設備
夫婦に人気の設備
三世代で人気の設備
こだわり
雨の日でも洗濯したい
洋室で暮らしたい
リーブル赤羽 106号室の賃貸契約情報
毎月支払う |
家賃5万円/月共益費5,000円/月 |
|---|---|
初期費用 |
敷金-礼金50,000円保証金-敷引き償却金- |
更新料 |
- |
鍵交換費用 |
22,000円 |
室内清掃費用 |
- |
サポート24 |
22,000円 |
火災保険料 |
18,000円 |
再契約料 |
25,000円 |
駐車場料金 |
無 |
損保・ |
借家賠付きの火災保険にご加入いただきます。 |
保証会社 |
加入要 保証会社:エポスカード 保証会社利用料:初回保証料:総賃料の50% 継続保証料:総賃料の1%/月または10000円/年 |
契約期間 |
定期借家 3年 |
入居可能日 |
即入居可 |
フリーレント期間 |
- |
取引形態 |
一般媒介 |
備考 |
定期借家契約物件:契約期間2年 1年未満の解約時、賃料1ヶ月分の違約金有り |
リーブル赤羽 106号室の建物情報
建物名称 |
リーブル赤羽 |
|---|---|
最寄駅 |
|
所在地 |
東京都北区岩淵町 |
階層 |
1階部分(地上2階建) |
構造 |
木造 |
築年数 |
2017年6月(築9年) |
駐車場 |
無 |
小学校学区 |
岩淵小学校 |
中学校学区 |
赤羽岩淵中学校 |
- 学区データについて
- ※学区データは必ずしも正確とは限りません。詳細に関しては最寄店舗または各自治体の教育委員会に必ずご確認ください。
無料この物件に問い合わせ
- リーブル赤羽 106号室

-
5万円
(共益費
5,000円)
- 敷
- -
- 礼
- 50,000円
- 保
- -
- 償
- -
リーブル赤羽 106号室の物件のお問い合わせ先・取り扱い店舗
ハウスコム 川口店
- アクセス
-
京浜東北・根岸線「川口駅」東口徒歩1分
- 住所
- 〒332-0017 埼玉県川口市栄町3丁目5−1 高梨ビル 3F
- 営業時間
- 10:00~18:00
- 定休日
- なし(年末年始休業)
- 営業エリア
- 川口市・戸田市・蕨市・さいたま市・東京都北区
- 取引態様
- 賃貸仲介業























