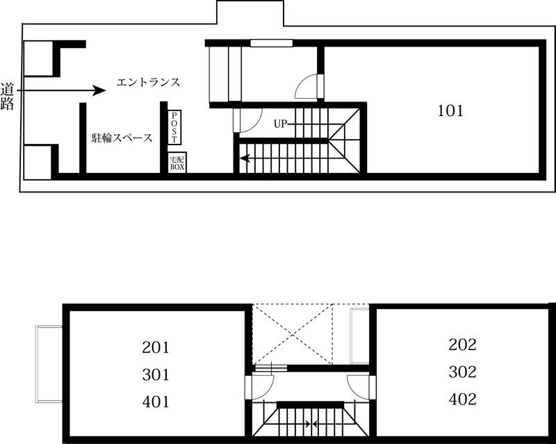
まんどーろ 401号室(4階/1R)の賃貸物件(賃貸アパート)
東京都北区にあるまんどーろ 401号室はIHコンロ、シャワー付洗面化粧台、宅配ボックス、シューズボックス、駐輪場などが特徴です。最寄り駅の京浜東北・根岸線王子駅から徒歩6分です。まんどーろ 401号室の詳細はハウスコム 王子店までお気軽にお問い合わせください!
情報更新日:
次回更新予定日:
※次回更新予定日について:お店側では順次空室確認を行っていますが、次回更新予定日までに空室確認が行えない場合には、この物件情報は自動的に削除されます。
まんどーろ 401号室の賃貸物件部屋概要
家賃 |
7.5万円
初期費用を |
|---|---|
共益費 |
5,000円
入居可能時期 |
敷金/礼金 |
- / 1ヶ月 |
保証金/ |
- / - |
最寄駅 |
|
所在地 |
東京都北区豊島 |
部屋番号 |
401号室 |
間取り |
1R(洋0) |
専有面積 |
20.52㎡ |
築年数 |
2012年1月(築14年) |
階数 |
4階部分(地上4階建) |
方位・位置 |
東 / 角部屋 |
物件種別 |
賃貸アパート |
構造 |
木造 |
駐車場 |
- |
小学校学区 |
柳田小学校 |
中学校学区 |
明桜中学校 |
他の空き部屋 |
ー |
- 学区データについて
- ※学区データは必ずしも正確とは限りません。詳細に関しては最寄店舗または各自治体の教育委員会に必ずご確認ください。
まんどーろ 401号室の特徴
契約条件
敷金が無料なため、初期費用が比較的安くなる傾向にあります。
セキュリティ
この物件の建物には、オートロックや宅配ボックスが設置されており、来客時には居室内のテレビモニターにて訪問者の顔を確認することができます。
室内設備
IHコンロが備え付けられています。 トイレは、温水洗浄便座機能付きになります。 女性に嬉しい設備のシャワーの付いている洗面化粧台があります。 洗濯に便利な設備として、室内洗濯機置場があります。
居室状況
お部屋の床は、フローリングとなっており、エアコンが設置されています。 収納スペースとして、通常よりも収納力の高いウォークインクローゼット、玄関にはシューズボックスがあります。
建物設備共用部分
建物の共用スペースに、急な外出や不在がちのご家庭の荷物受け取りに便利な宅配ボックスが設置されています。 駐輪場が利用できます。
周辺施設
この物件の学区は、柳田小学校区・明桜中学校区です。
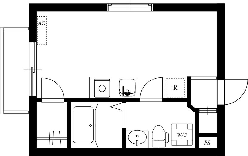
まんどーろ 401号室の間取り
間取り:1R
間取詳細:1R(洋0)
専有面積:20.52㎡
方位:東
部屋位置:角部屋
まんどーろ 401号室の設備
キッチン
IHコンロ
バス・トイレ
バス・トイレ別
温水洗浄便座
独立洗面台
シャワー付洗面化粧台
玄関
TVモニタ付インターホン
オートロック
宅配ボックス
収納
ウォークインクローゼット
シューズボックス
室内設備
エアコン
フローリング
室内洗濯機置場
位置・立地
2階以上
最上階
角部屋
インフラ
インターネット可
CATV
プロパンガス
建物設備
駐輪場
ライフステージ
一人暮らしに人気の設備
カップルに人気の設備
家族に人気の設備
夫婦に人気の設備
三世代で人気の設備
こだわり
雨の日でも洗濯したい
洋室で暮らしたい
趣味
服やおしゃれが好き
まんどーろ 401号室の賃貸契約情報
毎月支払う |
家賃7.5万円/月共益費5,000円/月 |
|---|---|
初期費用 |
敷金-礼金1ヶ月 (7.5万円)保証金-敷引き償却金- |
更新料 |
75,000円 |
鍵交換費用 |
24,200円 |
室内清掃費用 |
35,200円 |
リブリクラブ会員費 |
7,700円 |
室内消毒代 |
16,500円 |
駐車場料金 |
- |
損保・ |
借家賠付きの火災保険にご加入いただきます。 |
保証会社 |
加入要 保証会社利用料:月額支払合計の50% 、月額料:月額支払合計の1.1%、口振手数料:330円/月 |
契約期間 |
2年 |
入居可能日 |
2026年02月下旬 |
フリーレント期間 |
- |
取引形態 |
一般媒介 |
備考 |
駐輪場:有料 室内清掃費用 35200円 鍵交換代 24200円 初期:リブリクラブ会員費 7700円 室内消毒代 16500円 保証会社利用必須 月額支払合計の50% 、月額料:月額支払合計の1.1%、口振手数料:330円/月 |
まんどーろ 401号室の建物情報
建物名称 |
まんどーろ |
|---|---|
最寄駅 |
|
所在地 |
東京都北区豊島 |
階層 |
4階部分(地上4階建) |
構造 |
木造 |
築年数 |
2012年1月(築14年) |
駐車場 |
- |
小学校学区 |
柳田小学校 |
中学校学区 |
明桜中学校 |
- 学区データについて
- ※学区データは必ずしも正確とは限りません。詳細に関しては最寄店舗または各自治体の教育委員会に必ずご確認ください。
無料この物件に問い合わせ
- まんどーろ 401号室

-
7.5万円
(共益費
5,000円)
- 敷
- -
- 礼
- 1ヶ月
- 保
- -
- 償
- -
まんどーろ 401号室の物件のお問い合わせ先・取り扱い店舗
ハウスコム 王子店
- アクセス
-
京浜東北・根岸線「王子駅」北口・中央口徒歩1分
- 住所
- 〒114-0002 東京都北区王子1丁目5−2 テング第四 1階
- 営業時間
- 10:00~18:00
- 定休日
- 水曜日(年末年始は休業)
- 営業エリア
- 北区,文京区,荒川区,足立区,板橋区,豊島区,川口市
- 取引態様
- 賃貸仲介業






























