クレイシアIDZ王子アーバンヒルズ 902号室(9階/1DK)の賃貸物件(賃貸マンション)
東京都北区にあるクレイシアIDZ王子アーバンヒルズ 902号室は温水洗浄便座、フローリング、防犯カメラ、分譲賃貸、オンライン相談可などが特徴です。最寄り駅の京浜東北・根岸線王子駅から徒歩7分です。クレイシアIDZ王子アーバンヒルズ 902号室の詳細はハウスコム 王子店までお気軽にお問い合わせください!
情報更新日:
次回更新予定日:
※次回更新予定日について:お店側では順次空室確認を行っていますが、次回更新予定日までに空室確認が行えない場合には、この物件情報は自動的に削除されます。
クレイシアIDZ王子アーバンヒルズ 902号室の賃貸物件部屋概要
家賃 |
10.7万円
初期費用を |
|---|---|
共益費 |
12,000円
入居可能時期 |
敷金/礼金 |
1ヶ月 / 1ヶ月 |
保証金/ |
- / - |
最寄駅 |
|
所在地 |
東京都北区豊島 |
部屋番号 |
902号室 |
間取り |
1DK(洋3.2・DK5.2) |
専有面積 |
25.83㎡ |
築年数 |
2024年5月(築2年) |
階数 |
9階部分(地上10階建) |
方位・位置 |
南西 / その他 |
物件種別 |
賃貸マンション |
構造 |
RC |
駐車場 |
無 |
小学校学区 |
柳田小学校 |
中学校学区 |
明桜中学校 |
他の空き部屋 |
ー |
- 学区データについて
- ※学区データは必ずしも正確とは限りません。詳細に関しては最寄店舗または各自治体の教育委員会に必ずご確認ください。
クレイシアIDZ王子アーバンヒルズ 902号室の特徴
-
一人暮らしに人気の設備

-
カップルに人気の設備

-
家族に人気の設備

-
夫婦に人気の設備

-
三世代で人気の設備

-
セキュリティ対策重視

-
外で子どもと遊びたい

-
身だしなみに気をつかいたい

-
雨の日でも洗濯したい

-
洋室で暮らしたい

-
オークション・通販が好き

-
ガーデニングが好き

セキュリティ
この物件の建物には、オートロックや防犯カメラや宅配ボックスが設置されており、来客時には居室内のテレビモニターにて訪問者の顔を確認することができます。
室内設備
システムキッチンが備え付けられています。 トイレは、温水洗浄便座機能付きになります。 女性に嬉しい設備の独立した洗面化粧台があります。 洗濯に便利な設備として、浴室乾燥機も設置されているので、梅雨時の生乾き臭も比較的防ぐことができます。
居室状況
お部屋の床は、フローリングとなっており、エアコンが設置されています。 インターネットも無料で入居後すぐ生活が始められます。 収納スペースとして、基本的な居室にクローゼットがあります。
建物設備共用部分
居室外の専有スペースとして、洗濯物を干すなどの用途として利用できるバルコニーがあります。 建物の共用スペースに、日々の出入に便利なエレベーターや、いざという時の防犯カメラや、急な外出や不在がちのご家庭の荷物受け取りに便利な宅配ボックスが設置されています。
周辺施設
この物件の学区は、柳田小学校区・明桜中学校区です。
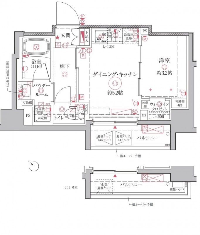
クレイシアIDZ王子アーバンヒルズ 902号室の間取り
間取り:1DK
間取詳細:1DK(洋3.2・DK5.2)
専有面積:25.83㎡
方位:南西
部屋位置:その他
クレイシアIDZ王子アーバンヒルズ 902号室の設備
キッチン
システムキッチン
バス・トイレ
バス・トイレ別
浴室乾燥機
温水洗浄便座
独立洗面台
玄関
TVモニタ付インターホン
オートロック
宅配ボックス
収納
クローゼット
バルコニー
バルコニー
ルーフバルコニー
室内設備
エアコン
フローリング
位置・立地
2階以上
インフラ
都市ガス
建物設備
エレベーター
防犯カメラ
分譲賃貸
入居条件
オンライン相談可
オンライン内見可
ライフステージ
一人暮らしに人気の設備
カップルに人気の設備
家族に人気の設備
夫婦に人気の設備
三世代で人気の設備
こだわり
セキュリティ対策重視
外で子どもと遊びたい
身だしなみに気をつかいたい
雨の日でも洗濯したい
洋室で暮らしたい
趣味
オークション・通販が好き
ガーデニングが好き
お得な条件
インターネット無料
クレイシアIDZ王子アーバンヒルズ 902号室の賃貸契約情報
毎月支払う |
家賃10.7万円/月共益費12,000円/月 |
|---|---|
初期費用 |
敷金1ヶ月 (10.7万円)礼金1ヶ月 (10.7万円)保証金-敷引き償却金- |
更新料 |
107,000円 |
鍵交換費用 |
16,500円 |
室内清掃費用 |
- |
駐車場料金 |
無 |
損保・ |
借家賠付きの火災保険にご加入いただきます。 |
保証会社 |
加入要 保証会社利用料:保証料(初回契約時)40%、保証料(年間)10,000円、その他プラン有(新日本信用保証の場合 口座振替手数料216円(税込)/月) |
契約期間 |
2年 |
入居可能日 |
2026年03月下旬 |
フリーレント期間 |
- |
取引形態 |
一般媒介 |
備考 |
短期解約違約金あり:契約開始後1年以内の解約は賃料総額の1か月分を貸主へ支払う。 |
クレイシアIDZ王子アーバンヒルズ 902号室の建物情報
建物名称 |
クレイシアIDZ王子アーバンヒルズ |
|---|---|
最寄駅 |
|
所在地 |
東京都北区豊島 |
階層 |
9階部分(地上10階建) |
構造 |
RC |
築年数 |
2024年5月(築2年) |
駐車場 |
無 |
小学校学区 |
柳田小学校 |
中学校学区 |
明桜中学校 |
- 学区データについて
- ※学区データは必ずしも正確とは限りません。詳細に関しては最寄店舗または各自治体の教育委員会に必ずご確認ください。
無料この物件に問い合わせ
- クレイシアIDZ王子アーバンヒルズ 902号室

-
10.7万円
(共益費
12,000円)
- 敷
- 1ヶ月
- 礼
- 1ヶ月
- 保
- -
- 償
- -
クレイシアIDZ王子アーバンヒルズ 902号室の物件のお問い合わせ先・取り扱い店舗
ハウスコム 王子店
- アクセス
-
京浜東北・根岸線「王子駅」北口・中央口徒歩1分
- 住所
- 〒114-0002 東京都北区王子1丁目5−2 テング第四 1階
- 営業時間
- 10:00~18:00
- 定休日
- 水曜日(年末年始は休業)
- 営業エリア
- 北区,文京区,荒川区,足立区,板橋区,豊島区,川口市
- 取引態様
- 賃貸仲介業





























