桶川市加納平屋戸建て 1号室(1階/3LDK)の賃貸物件(賃貸一戸建て)
埼玉県桶川市にある桶川市加納平屋戸建て 1号室は独立洗面台、TVモニタ付インターホン、室内洗濯機置場、1階、角部屋などが特徴です。最寄り駅の高崎線北本駅から3.36kmです。桶川市加納平屋戸建て 1号室の詳細はハウスコム 大宮東口店までお気軽にお問い合わせください!
情報更新日:
次回更新予定日:
※次回更新予定日について:お店側では順次空室確認を行っていますが、次回更新予定日までに空室確認が行えない場合には、この物件情報は自動的に削除されます。
桶川市加納平屋戸建て 1号室の賃貸物件部屋概要
家賃 |
13.2万円
初期費用を |
|---|---|
共益費 |
-
入居可能時期 |
敷金/礼金 |
3ヶ月 / 1ヶ月 |
保証金/ |
- / - |
最寄駅 |
|
所在地 |
埼玉県桶川市大字加納 |
部屋番号 |
1号室 |
間取り |
3LDK(LDK11.5) |
専有面積 |
122.14㎡ |
築年数 |
2014年11月(築12年) |
階数 |
1階部分(地上1階建) |
方位・位置 |
南 / 角部屋 |
物件種別 |
賃貸一戸建て |
構造 |
木造 |
駐車場 |
空有 賃料に含む |
小学校学区 |
加納小学校 |
中学校学区 |
加納中学校 |
他の空き部屋 |
ー |
- 学区データについて
- ※学区データは必ずしも正確とは限りません。詳細に関しては最寄店舗または各自治体の教育委員会に必ずご確認ください。
桶川市加納平屋戸建て 1号室の特徴
-
一人暮らしに人気の設備

-
カップルに人気の設備

-
家族に人気の設備

-
夫婦に人気の設備

-
三世代で人気の設備

-
日当たり重視

-
外で子どもと遊びたい

-
子どもと一緒に広いお風呂に入りたい

-
急な来客でも駐車したい

-
雨の日でも洗濯したい

-
洋室で暮らしたい

-
推し活グッズを飾りたい

-
緑のある環境が好き

-
ガーデニングが好き

-
家庭菜園が好き

契約条件
ご契約時に保証人は不要です。
セキュリティ
来客時には居室内のテレビモニターにて訪問者の顔を確認することができます。
室内設備
システムキッチンには、ガスコンロが備え付けられています。 お風呂とトイレは別です。お風呂には、追い焚き機能が備わっています。 トイレは、温水洗浄便座機能付きになります。 女性に嬉しい設備の独立した洗面化粧台があります。 洗濯に便利な設備として、室内洗濯機置場があります。浴室乾燥機も設置されているので、梅雨時の生乾き臭も比較的防ぐことができます。
居室状況
お部屋の床は、フローリングとなっており、エアコンが設置されています。 収納スペースとして、基本的な居室にクローゼットがあります。
建物設備共用部分
居室外の専有スペースとして、入居者専用の庭があり、家庭菜園や簡単なお庭遊びが楽しめます。 駐車場があり2台以上の車で利用することができます。
周辺施設
この物件の学区は、加納小学校区・加納中学校区です。
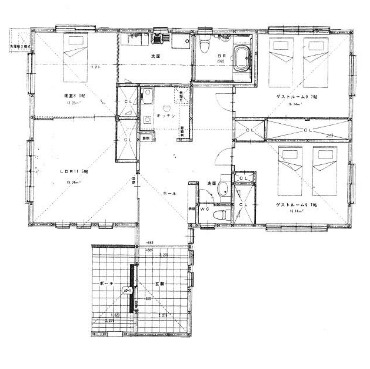
桶川市加納平屋戸建て 1号室の間取り
間取り:3LDK
間取詳細:3LDK(LDK11.5)
専有面積:122.14㎡
方位:南
部屋位置:角部屋
桶川市加納平屋戸建て 1号室の設備
キッチン
システムキッチン
カウンターキッチン
ガスコンロ
バス・トイレ
バス・トイレ別
追い焚き
浴室乾燥機
温水洗浄便座
独立洗面台
玄関
TVモニタ付インターホン
収納
クローゼット
バルコニー
専用庭付
室内設備
エアコン
フローリング
室内洗濯機置場
位置・立地
1階
最上階
角部屋
南向き
インフラ
プロパンガス
建物設備
駐車2台以上可
入居条件
保証人不要
ライフステージ
一人暮らしに人気の設備
カップルに人気の設備
家族に人気の設備
夫婦に人気の設備
三世代で人気の設備
こだわり
日当たり重視
外で子どもと遊びたい
子どもと一緒に広いお風呂に入りたい
急な来客でも駐車したい
雨の日でも洗濯したい
洋室で暮らしたい
趣味
推し活グッズを飾りたい
緑のある環境が好き
ガーデニングが好き
家庭菜園が好き
桶川市加納平屋戸建て 1号室の賃貸契約情報
毎月支払う |
家賃13.2万円/月共益費- |
|---|---|
初期費用 |
敷金3ヶ月 (39.6万円)礼金1ヶ月 (13.2万円)保証金-敷引き償却金- |
更新料 |
132,000円 |
鍵交換費用 |
- |
室内清掃費用 |
- |
駐車場料金 |
空有 賃料に含む |
損保・ |
借家賠付きの火災保険にご加入いただきます。 |
保証会社 |
|
契約期間 |
2年 |
入居可能日 |
相談 |
フリーレント期間 |
- |
取引形態 |
一般媒介 |
備考 |
保険2年32500円 |
桶川市加納平屋戸建て 1号室の建物情報
建物名称 |
桶川市加納平屋戸建て |
|---|---|
最寄駅 |
|
所在地 |
埼玉県桶川市大字加納 |
階層 |
1階部分(地上1階建) |
構造 |
木造 |
築年数 |
2014年11月(築12年) |
駐車場 |
空有 賃料に含む |
小学校学区 |
加納小学校 |
中学校学区 |
加納中学校 |
- 学区データについて
- ※学区データは必ずしも正確とは限りません。詳細に関しては最寄店舗または各自治体の教育委員会に必ずご確認ください。
無料この物件に問い合わせ
- 桶川市加納平屋戸建て 1号室

-
13.2万円
(共益費
-)
- 敷
- 3ヶ月
- 礼
- 1ヶ月
- 保
- -
- 償
- -
桶川市加納平屋戸建て 1号室の物件のお問い合わせ先・取り扱い店舗
ハウスコム 大宮東口店
- アクセス
-
京浜東北・根岸線「大宮駅」東口(北)徒歩1分
- 住所
- 〒330-0846 埼玉県さいたま市大宮区大門町1丁目92−7 ハイカラ堂ビル 2階
- 営業時間
- 10:00~18:00
- 定休日
- 水曜日
- 営業エリア
- さいたま市大宮区、中央区、北区、西区、見沼区、西区、浦和区、岩槻区、上尾市、蓮田市、白岡市、伊奈町 etc.
- 取引態様
- 賃貸仲介業












