城廻ハイツ 106号室(2K)の賃貸物件(賃貸一戸建て)
神奈川県鎌倉市にある城廻ハイツ 106号室はバス・トイレ別、追い焚き、シューズボックス、全居室収納、専用庭付などが特徴です。最寄り駅の東海道本線(JR東日本)大船駅からバスで10分、渡内第三会館前から徒歩4分です。城廻ハイツ 106号室の詳細はハウスコム 藤沢店までお気軽にお問い合わせください!
情報更新日:
次回更新予定日:
※次回更新予定日について:お店側では順次空室確認を行っていますが、次回更新予定日までに空室確認が行えない場合には、この物件情報は自動的に削除されます。
城廻ハイツ 106号室の賃貸物件部屋概要
家賃 |
6万円
初期費用を |
|---|---|
共益費 |
-
入居可能時期 |
敷金/礼金 |
2ヶ月 / 1ヶ月 |
保証金/ |
- / - |
最寄駅 |
|
所在地 |
神奈川県鎌倉市城廻 |
部屋番号 |
106号室 |
間取り |
2K |
専有面積 |
36.40㎡ |
築年数 |
1971年7月(築55年) |
階数 |
地上1階建 |
方位・位置 |
南 / その他 |
物件種別 |
賃貸一戸建て |
構造 |
木造 |
駐車場 |
無 |
小学校学区 |
高谷小学校 |
中学校学区 |
藤ヶ岡中学校 |
他の空き部屋 |
ー |
- 学区データについて
- ※学区データは必ずしも正確とは限りません。詳細に関しては最寄店舗または各自治体の教育委員会に必ずご確認ください。
城廻ハイツ 106号室の特徴
-
一人暮らしに人気の設備

-
カップルに人気の設備

-
家族に人気の設備

-
夫婦に人気の設備

-
三世代で人気の設備

-
外で子どもと遊びたい

-
雨の日でも洗濯したい

-
持ち物をスッキリ隠す収納部屋

-
緑のある環境が好き

-
ガーデニングが好き

-
家庭菜園が好き

室内設備
お風呂とトイレは別です。お風呂には、追い焚き機能が備わっています。 洗濯に便利な設備として、室内洗濯機置場があります。
居室状況
収納スペースとして、玄関にはシューズボックスがあります。
建物設備共用部分
居室外の専有スペースとして、入居者専用の庭があり、家庭菜園や簡単なお庭遊びが楽しめます。
周辺施設
この物件の学区は、高谷小学校区・藤ヶ岡中学校区です。
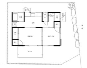
城廻ハイツ 106号室の間取り
間取り:2K
間取詳細:2K
専有面積:36.40㎡
方位:南
部屋位置:その他
城廻ハイツ 106号室の設備
バス・トイレ
バス・トイレ別
追い焚き
収納
シューズボックス
全居室収納
バルコニー
専用庭付
室内設備
室内洗濯機置場
位置・立地
南向き
インフラ
プロパンガス
ライフステージ
一人暮らしに人気の設備
カップルに人気の設備
家族に人気の設備
夫婦に人気の設備
三世代で人気の設備
こだわり
外で子どもと遊びたい
雨の日でも洗濯したい
持ち物をスッキリ隠す収納部屋
趣味
緑のある環境が好き
ガーデニングが好き
家庭菜園が好き
城廻ハイツ 106号室の賃貸契約情報
毎月支払う |
家賃6万円/月共益費- |
|---|---|
初期費用 |
敷金2ヶ月 (12万円)礼金1ヶ月 (6万円)保証金-敷引き償却金- |
更新料 |
- |
鍵交換費用 |
- |
室内清掃費用 |
- |
退去時室内クリーニング |
38,500円 |
駐車場料金 |
無 |
損保・ |
借家賠付きの火災保険にご加入いただきます。 |
保証会社 |
加入要 保証会社利用料:株式会社オリコフォレントインシュア 初回保証委託料:月額賃料等の50%、月額保証委託料:月額賃料等の1% |
契約期間 |
2年 |
入居可能日 |
相談 |
フリーレント期間 |
- |
取引形態 |
一般媒介 |
備考 |
- |
城廻ハイツ 106号室の建物情報
建物名称 |
城廻ハイツ |
|---|---|
最寄駅 |
|
所在地 |
神奈川県鎌倉市城廻 |
階層 |
地上1階建 |
構造 |
木造 |
築年数 |
1971年7月(築55年) |
駐車場 |
無 |
小学校学区 |
高谷小学校 |
中学校学区 |
藤ヶ岡中学校 |
1/11 外観
- 学区データについて
- ※学区データは必ずしも正確とは限りません。詳細に関しては最寄店舗または各自治体の教育委員会に必ずご確認ください。
無料この物件に問い合わせ
- 城廻ハイツ 106号室

-
6万円
(共益費
-)
- 敷
- 2ヶ月
- 礼
- 1ヶ月
- 保
- -
- 償
- -
城廻ハイツ 106号室の物件のお問い合わせ先・取り扱い店舗
ハウスコム 藤沢店
土日営業
- アクセス
-
東海道本線(JR東日本)「藤沢駅」南口徒歩2分
小田急江ノ島線「藤沢駅」南口徒歩2分
- 住所
- 〒251-0025 神奈川県藤沢市鵠沼石上1丁目3−2 第一興産20号館 1階
- 営業時間
- 10:00~18:00
- 定休日
- 水曜日
- 営業エリア
- 藤沢市,鎌倉市,栄区,戸塚区,茅ヶ崎市,寒川町
- 取引態様
- 賃貸仲介業
お問い合わせNo. HC4-5271850-106-0007























