エルファーロ世田谷三宿 0103号室(1階/1K)の賃貸物件(賃貸マンション)
東京都世田谷区にあるエルファーロ世田谷三宿 0103号室はガスコンロ二口以上、浴室乾燥機、宅配ボックス、1階、CSなどが特徴です。最寄り駅の東急田園都市線池尻大橋駅から徒歩10分です。エルファーロ世田谷三宿 0103号室の詳細はハウスコム 三軒茶屋店までお気軽にお問い合わせください!
情報更新日:
次回更新予定日:
※次回更新予定日について:お店側では順次空室確認を行っていますが、次回更新予定日までに空室確認が行えない場合には、この物件情報は自動的に削除されます。
エルファーロ世田谷三宿 0103号室の賃貸物件部屋概要
家賃 |
13万円
初期費用を |
|---|---|
共益費 |
15,000円
入居可能時期 |
敷金/礼金 |
- / - |
保証金/ |
- / - |
最寄駅 |
|
所在地 |
東京都世田谷区三宿 |
部屋番号 |
0103号室 |
間取り |
1K |
専有面積 |
25.47㎡ |
築年数 |
2022年11月(築4年) |
階数 |
1階部分(地上4階建) |
方位・位置 |
北東 / その他 |
物件種別 |
賃貸マンション |
構造 |
RC |
駐車場 |
- |
小学校学区 |
多聞小学校 |
中学校学区 |
太子堂中学校 |
他の空き部屋 |
103号室 |
- 学区データについて
- ※学区データは必ずしも正確とは限りません。詳細に関しては最寄店舗または各自治体の教育委員会に必ずご確認ください。
エルファーロ世田谷三宿 0103号室の特徴
契約条件
ペットの飼育もご相談ください。 敷金と礼金が無料なため、初期費用が比較的安くなる傾向にあります。
セキュリティ
この物件の建物には、オートロックや宅配ボックスが設置されており、来客時には居室内のテレビモニターにて訪問者の顔を確認することができます。
室内設備
システムキッチンには、2つ以上のガスコンロが備え付けられています。 トイレは、温水洗浄便座機能付きになります。 女性に嬉しい設備の独立した洗面化粧台があります。 洗濯に便利な設備として、浴室乾燥機も設置されているので、梅雨時の生乾き臭も比較的防ぐことができます。
居室状況
お部屋の床は、フローリングとなっており、エアコンが設置されています。 インターネットも無料で入居後すぐ生活が始められます。 収納スペースとして、基本的な居室にクローゼットを設置、玄関にはシューズボックスがあります。
建物設備共用部分
建物の共用スペースに、急な外出や不在がちのご家庭の荷物受け取りに便利な宅配ボックスが設置されています。 駐輪場が利用できます。
周辺施設
この物件の学区は、多聞小学校区・太子堂中学校区です。
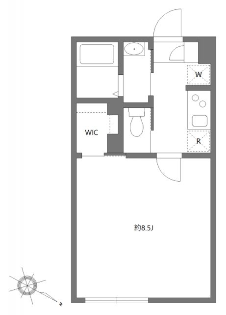
エルファーロ世田谷三宿 0103号室の間取り
間取り:1K
間取詳細:1K
専有面積:25.47㎡
方位:北東
部屋位置:その他
エルファーロ世田谷三宿 0103号室の設備
キッチン
システムキッチン
ガスコンロ
ガスコンロ二口以上
バス・トイレ
バス・トイレ別
浴室乾燥機
温水洗浄便座
独立洗面台
玄関
TVモニタ付インターホン
オートロック
宅配ボックス
収納
クローゼット
シューズボックス
室内設備
エアコン
フローリング
位置・立地
1階
インフラ
インターネット可
BS
CS
都市ガス
建物設備
駐輪場
入居条件
ペット可・相談
ライフステージ
一人暮らしに人気の設備
カップルに人気の設備
家族に人気の設備
夫婦に人気の設備
三世代で人気の設備
こだわり
雨の日でも洗濯したい
洋室で暮らしたい
趣味
オークション・通販が好き
お得な条件
インターネット無料
エルファーロ世田谷三宿 0103号室の賃貸契約情報
毎月支払う |
家賃13万円/月共益費15,000円/月 |
|---|---|
初期費用 |
敷金-礼金-保証金-敷引き償却金- |
更新料 |
130,000円 |
鍵交換費用 |
38,500円 |
室内清掃費用 |
- |
プレミアデスク(税込/2年) |
22,000円 |
契約時ルームクリーニング費用(税込) |
60,500円 |
駐車場料金 |
- |
損保・ |
借家賠付きの火災保険にご加入いただきます。 |
保証会社 |
加入要 保証会社:エポスカード 保証会社利用料:月額総賃料の50%/月次保証料、月額総賃料の1.5%/1年毎10,000円 |
契約期間 |
2年 |
入居可能日 |
相談 |
フリーレント期間 |
- |
取引形態 |
一般媒介 |
備考 |
- |
エルファーロ世田谷三宿 0103号室の建物情報
建物名称 |
エルファーロ世田谷三宿 |
|---|---|
最寄駅 |
|
所在地 |
東京都世田谷区三宿 |
階層 |
1階部分(地上4階建) |
構造 |
RC |
築年数 |
2022年11月(築4年) |
駐車場 |
- |
小学校学区 |
多聞小学校 |
中学校学区 |
太子堂中学校 |
- 学区データについて
- ※学区データは必ずしも正確とは限りません。詳細に関しては最寄店舗または各自治体の教育委員会に必ずご確認ください。
無料この物件に問い合わせ
- エルファーロ世田谷三宿 0103号室

-
13万円
(共益費
15,000円)
- 敷
- -
- 礼
- -
- 保
- -
- 償
- -
エルファーロ世田谷三宿 0103号室の物件のお問い合わせ先・取り扱い店舗
ハウスコム 三軒茶屋店
- アクセス
-
東急田園都市線「三軒茶屋駅」南口徒歩1分
- 住所
- 〒154-0024 東京都世田谷区三軒茶屋1丁目38−7 ワコーレ三軒茶屋 2階
- 営業時間
- 10:00~18:00
- 定休日
- なし
- 営業エリア
- 世田谷区・目黒区・渋谷区
- 取引態様
- 賃貸仲介業






























