大浜北町の完工年月(2020年10月)築の賃貸マンション ***号室(4階/2LDK)の賃貸物件(賃貸マンション)
大阪府堺市堺区にある大浜北町の完工年月(2020年10月)築の賃貸マンション ***号室はクローゼット、シューズインクローゼット、シューズボックス、バルコニー、バイク置き場などが特徴です。最寄り駅の南海本線堺駅から徒歩10分です。大浜北町の完工年月(2020年10月)築の賃貸マンション ***号室の詳細はクラスモ FCなかもず店までお気軽にお問い合わせください!
情報更新日:
次回更新予定日:
※次回更新予定日について:お店側では順次空室確認を行っていますが、次回更新予定日までに空室確認が行えない場合には、この物件情報は自動的に削除されます。
大浜北町の完工年月(2020年10月)築の賃貸マンション ***号室の賃貸物件部屋概要
家賃 |
11.8万円
初期費用を |
|---|---|
共益費 |
10,000円
入居可能時期 |
敷金/礼金 |
- / 50,000円 |
保証金/ |
- / - |
最寄駅 |
|
所在地 |
大阪府堺市堺区大浜北町 |
部屋番号 |
***号室 |
間取り |
2LDK(洋5.6・洋3.1・LDK15.6) |
専有面積 |
61.00㎡ |
築年数 |
2020年10月(築6年) |
階数 |
4階部分(地上9階建) |
方位・位置 |
北西 / 角部屋 |
物件種別 |
賃貸マンション |
構造 |
RC |
駐車場 |
12,100円 |
小学校学区 |
英彰小学校 |
中学校学区 |
大浜中学校 |
他の空き部屋 |
***号室 |
- 学区データについて
- ※学区データは必ずしも正確とは限りません。詳細に関しては最寄店舗または各自治体の教育委員会に必ずご確認ください。
大浜北町の完工年月(2020年10月)築の賃貸マンション ***号室の特徴
-
一人暮らしに人気の設備

-
カップルに人気の設備

-
家族に人気の設備

-
夫婦に人気の設備

-
三世代で人気の設備

-
セキュリティ対策重視

-
収納重視

-
急な来客でも駐車したい

-
雨の日でも洗濯したい

-
洋室で暮らしたい

-
持ち物をスッキリ隠す収納部屋

-
靴やスニーカーが好き

契約条件
この物件は、2人入居もご契約できます。 敷金が無料なため、初期費用が比較的安くなる傾向にあります。 お支払いは、初期費用がクレジットカードにて決済できます。
セキュリティ
この物件の建物には、オートロックや防犯カメラが設置されており、来客時には居室内のテレビモニターにて訪問者の顔を確認することができます。
室内設備
システムキッチンには、ガスコンロが備え付けられています。 お風呂とトイレは別です。お風呂には、追い焚き機能が備わっています。 トイレは、温水洗浄便座機能付きになります。 女性に嬉しい設備のシャワーの付いている洗面化粧台があります。 洗濯に便利な設備として、室内洗濯機置場があります。浴室乾燥機も設置されているので、梅雨時の生乾き臭も比較的防ぐことができます。
居室状況
お部屋の床は、全居室フローリングとなっています。インターネットも無料で入居後すぐ生活が始められます。 収納スペースとして、基本的な居室にクローゼットを設置、玄関にはシューズインクローゼットがあります。
建物設備共用部分
居室外の専有スペースとして、洗濯物を干すなどの用途として利用できるバルコニーがあります。 建物の共用スペースに、日々の出入に便利なエレベーターや、いざという時の防犯カメラが設置されています。 駐車場があり2台以上の車で利用することができます。駐輪場、バイク置き場が利用できます。
周辺施設
この物件の学区は、英彰小学校区・大浜中学校区です。近くには、徒歩31分(2475m)でドラッグストアがあります。
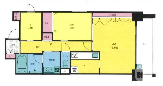
大浜北町の完工年月(2020年10月)築の賃貸マンション ***号室の間取り
間取り:2LDK
間取詳細:2LDK(洋5.6・洋3.1・LDK15.6)
専有面積:61.00㎡
方位:北西
部屋位置:角部屋
大浜北町の完工年月(2020年10月)築の賃貸マンション ***号室の設備
キッチン
システムキッチン
ガスコンロ
バス・トイレ
バス・トイレ別
追い焚き
浴室乾燥機
温水洗浄便座
独立洗面台
シャワー付洗面化粧台
玄関
TVモニタ付インターホン
オートロック
収納
クローゼット
シューズインクローゼット
シューズボックス
全居室収納
バルコニー
バルコニー
室内設備
フローリング
全居室フローリング
室内洗濯機置場
位置・立地
2階以上
角部屋
インフラ
インターネット可
BS
CS
都市ガス
建物設備
エレベーター
防犯カメラ
24時間換気システム
駐車2台以上可
駐輪場
バイク置き場
入居条件
2人入居可
ライフステージ
一人暮らしに人気の設備
カップルに人気の設備
家族に人気の設備
夫婦に人気の設備
三世代で人気の設備
こだわり
セキュリティ対策重視
収納重視
急な来客でも駐車したい
雨の日でも洗濯したい
洋室で暮らしたい
持ち物をスッキリ隠す収納部屋
趣味
靴やスニーカーが好き
お得な条件
インターネット無料
初期費用カード決済可
大浜北町の完工年月(2020年10月)築の賃貸マンション ***号室の賃貸契約情報
毎月支払う |
家賃11.8万円/月共益費10,000円/月 |
|---|---|
初期費用 |
敷金-礼金50,000円保証金-敷引き償却金- |
更新料 |
- |
鍵交換費用 |
27,500円 |
室内清掃費用 |
33,000円 |
契約登録料 |
8,800円 |
駐輪シール |
660円 |
町会費 |
2,400円 |
駐車場料金 |
12,100円 |
損保・ |
借家賠付きの火災保険にご加入いただきます。 |
保証会社 |
加入要 保証会社:アーク賃貸保証 保証会社利用料:初回保証料:総賃料の40% 更新料1年20,000円 |
契約期間 |
1年 |
入居可能日 |
2026年05月中旬 |
フリーレント期間 |
- |
取引形態 |
仲介 |
備考 |
クラスモなかもず店では、知識と経験豊富なスタッフがお客様のご要望にお応えできるよう最後までトコトンお部屋をお探しいたします♪電話番号、メールアドレスの登録不要のLINE問い合わせも可能です♪現地待ち合わせや最寄り駅までの送迎もお気軽にご相談ください。当店ではリモート内覧やIT重説も対応しております!ご予算、入居時期など何でもお気軽にお問合せください。営業スタッフがお客様の不安を解決いたします! |
大浜北町の完工年月(2020年10月)築の賃貸マンション ***号室の建物情報
建物名称 |
大浜北町の完工年月(2020年10月)築の賃貸マンション |
|---|---|
最寄駅 |
|
所在地 |
大阪府堺市堺区大浜北町 |
階層 |
4階部分(地上9階建) |
構造 |
RC |
築年数 |
2020年10月(築6年) |
駐車場 |
12,100円 |
小学校学区 |
英彰小学校 |
中学校学区 |
大浜中学校 |
- 学区データについて
- ※学区データは必ずしも正確とは限りません。詳細に関しては最寄店舗または各自治体の教育委員会に必ずご確認ください。
無料この物件に問い合わせ
- 大浜北町の完工年月(2020年10月)築の賃貸マンション ***号室

-
11.8万円
(共益費
10,000円)
- 敷
- -
- 礼
- 50,000円
- 保
- -
- 償
- -
大浜北町の完工年月(2020年10月)築の賃貸マンション ***号室の物件のお問い合わせ先・取り扱い店舗
クラスモ FCなかもず店
- アクセス
-
南海高野線「中百舌鳥駅」徒歩1分
大阪メトロ 御堂筋線「なかもず駅」徒歩2分
南海泉北線「中百舌鳥駅」徒歩1分
- 住所
- 〒591-8023 大阪府堺市北区中百舌鳥町2丁35番地 東亜ビル1階
- 営業時間
- 10:00~19:00
- 定休日
- なし(年末年始)
- 営業エリア
- 堺市全域、和泉市、松原市、大阪市住吉区、東住吉区・阿倍野区 高石市、泉大津市、大阪狭山市
- 取引態様
- 賃貸仲介業・物件売買業・FC店










