ミモザ服部天神 ***号室(3階/1K)の賃貸物件(賃貸アパート)
大阪府豊中市にあるミモザ服部天神 ***号室はバス・トイレ別、温水洗浄便座、独立洗面台、ルーフバルコニー、南向きなどが特徴です。最寄り駅の阪急宝塚線服部天神駅から徒歩6分です。ミモザ服部天神 ***号室の詳細はミニミニ FC千里中央店までお気軽にお問い合わせください!
情報更新日:
次回更新予定日:
※次回更新予定日について:お店側では順次空室確認を行っていますが、次回更新予定日までに空室確認が行えない場合には、この物件情報は自動的に削除されます。
ミモザ服部天神 ***号室の賃貸物件部屋概要
家賃 |
6.3万円
初期費用を |
|---|---|
共益費 |
5,000円
入居可能時期 |
敷金/礼金 |
- / - |
保証金/ |
- / - |
最寄駅 |
|
所在地 |
大阪府豊中市服部西町 |
部屋番号 |
***号室 |
間取り |
1K(洋10.1) |
専有面積 |
29.04㎡ |
築年数 |
2018年1月(築9年) |
階数 |
3階部分(地上3階建) |
方位・位置 |
南 / 角部屋 |
物件種別 |
賃貸アパート |
構造 |
木造 |
駐車場 |
13,200円 |
小学校学区 |
豊島小学校 |
中学校学区 |
第四中学校 |
他の空き部屋 |
ー |
- 学区データについて
- ※学区データは必ずしも正確とは限りません。詳細に関しては最寄店舗または各自治体の教育委員会に必ずご確認ください。
ミモザ服部天神 ***号室の特徴
契約条件
敷金と礼金が無料なため、初期費用が比較的安くなる傾向にあります。
セキュリティ
来客時には居室内のテレビモニターにて訪問者の顔を確認することができます。
室内設備
システムキッチンには、2つ以上のガスコンロが備え付けられています。 お風呂とトイレは別です。お風呂には、追い焚き機能が備わっています。 トイレは、温水洗浄便座機能付きになります。 女性に嬉しい設備の独立した洗面化粧台があります。
居室状況
お部屋の床は、フローリングとなっており、エアコンが設置されています。 インターネットも無料で入居後すぐ生活が始められます。 収納スペースとして、基本的な居室にクローゼットを設置、玄関にはシューズボックスがあります。
建物設備共用部分
居室外の専有スペースとして、洗濯物を干すなどの用途として利用できるバルコニーがあります。
周辺施設
この物件の学区は、豊島小学校区・第四中学校区です。
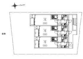
ミモザ服部天神 ***号室の間取り
間取り:1K
間取詳細:1K(洋10.1)
専有面積:29.04㎡
方位:南
部屋位置:角部屋
ミモザ服部天神 ***号室の設備
キッチン
システムキッチン
ガスコンロ
ガスコンロ二口以上
バス・トイレ
バス・トイレ別
追い焚き
温水洗浄便座
独立洗面台
玄関
TVモニタ付インターホン
収納
クローゼット
シューズボックス
バルコニー
バルコニー
ルーフバルコニー
室内設備
エアコン
フローリング
デザイナーズ
位置・立地
2階以上
最上階
角部屋
南向き
インフラ
インターネット可
プロパンガス
ライフステージ
一人暮らしに人気の設備
カップルに人気の設備
家族に人気の設備
夫婦に人気の設備
三世代で人気の設備
こだわり
日当たり重視
外で子どもと遊びたい
洋室で暮らしたい
趣味
ガーデニングが好き
お得な条件
インターネット無料
ミモザ服部天神 ***号室の賃貸契約情報
毎月支払う |
家賃6.3万円/月共益費5,000円/月 |
|---|---|
初期費用 |
敷金-礼金-保証金-敷引き償却金- |
更新料 |
- |
鍵交換費用 |
33,000円 |
室内清掃費用 |
- |
入居者アプリ設定費 |
22,000円 |
退去時ハウスクリーニング |
55,000円 |
駐車場料金 |
13,200円 |
損保・ |
借家賠付きの火災保険にご加入いただきます。 |
保証会社 |
加入要 保証会社利用料:初回契約時:100%、【大阪】総賃料の100%(支払手数料2%) |
契約期間 |
2年 |
入居可能日 |
2026年04月下旬 |
フリーレント期間 |
- |
取引形態 |
一般媒介 |
備考 |
- |
ミモザ服部天神 ***号室の建物情報
建物名称 |
ミモザ服部天神 |
|---|---|
最寄駅 |
|
所在地 |
大阪府豊中市服部西町 |
階層 |
3階部分(地上3階建) |
構造 |
木造 |
築年数 |
2018年1月(築9年) |
駐車場 |
13,200円 |
小学校学区 |
豊島小学校 |
中学校学区 |
第四中学校 |
- 学区データについて
- ※学区データは必ずしも正確とは限りません。詳細に関しては最寄店舗または各自治体の教育委員会に必ずご確認ください。
無料この物件に問い合わせ
- ミモザ服部天神 ***号室

-
6.3万円
(共益費
5,000円)
- 敷
- -
- 礼
- -
- 保
- -
- 償
- -
ミモザ服部天神 ***号室の物件のお問い合わせ先・取り扱い店舗
ミニミニ FC千里中央店
- アクセス
-
北大阪急行南北線「千里中央駅」南改札徒歩1分
大阪モノレール 本線「千里中央駅」徒歩3分
- 住所
- 〒560-0082 大阪府豊中市新千里東町1-3-104 せんちゅうパル南西側1F
- 営業時間
- 10:00~18:00
- 定休日
- なし
- 営業エリア
- 豊中市・箕面市・吹田市・その他近畿圏全域
- 取引態様
- 賃貸仲介業



















