テラス上北沢 03号室(2階/1R)の賃貸物件(賃貸アパート)
東京都世田谷区にあるテラス上北沢 03号室はバス・トイレ別、浴室乾燥機、シューズボックス、エアコン、デザイナーズなどが特徴です。最寄り駅の京王線芦花公園駅から徒歩9分です。テラス上北沢 03号室の詳細はハウスコム 事業戦略室までお気軽にお問い合わせください!
情報更新日:
次回更新予定日:
※次回更新予定日について:お店側では順次空室確認を行っていますが、次回更新予定日までに空室確認が行えない場合には、この物件情報は自動的に削除されます。
テラス上北沢 03号室の賃貸物件部屋概要
家賃 |
8.5万円
初期費用を |
|---|---|
共益費 |
4,000円
入居可能時期 |
敷金/礼金 |
- / 85,000円 |
保証金/ |
- / - |
最寄駅 |
|
所在地 |
東京都世田谷区上北沢 |
部屋番号 |
03号室 |
間取り |
1R |
専有面積 |
15.07㎡ |
築年数 |
2018年11月(築8年) |
階数 |
2階部分(地上2階建) |
方位・位置 |
南 / 角部屋 |
物件種別 |
賃貸アパート |
構造 |
木造 |
駐車場 |
無 |
小学校学区 |
上北沢小学校 |
中学校学区 |
緑丘中学校 |
他の空き部屋 |
03号室 |
- 学区データについて
- ※学区データは必ずしも正確とは限りません。詳細に関しては最寄店舗または各自治体の教育委員会に必ずご確認ください。
テラス上北沢 03号室の特徴
契約条件
敷金が無料なため、初期費用が比較的安くなる傾向にあります。
セキュリティ
この物件の建物には、防犯カメラが設置されており、来客時には居室内のテレビモニターにて訪問者の顔を確認することができます。
室内設備
システムキッチンには、IHコンロが備え付けられています。 トイレは、温水洗浄便座機能付きになります。 女性に嬉しい設備の独立した洗面化粧台があります。 洗濯に便利な設備として、浴室乾燥機も設置されているので、梅雨時の生乾き臭も比較的防ぐことができます。
居室状況
居室には、ロフトが設置されており大規模な収納スペースやセパレートされた寝室として活用できます。 お部屋の床は、フローリングとなっており、エアコンが設置されています。 照明器具が備え付けられており、インターネットも無料で入居後すぐ生活が始められます。 収納スペースとして、基本的な居室にクローゼットを設置、玄関にはシューズボックスがあります。
建物設備共用部分
建物の共用スペースに、いざという時の防犯カメラが設置されています。
周辺施設
この物件の学区は、上北沢小学校区・緑丘中学校区です。
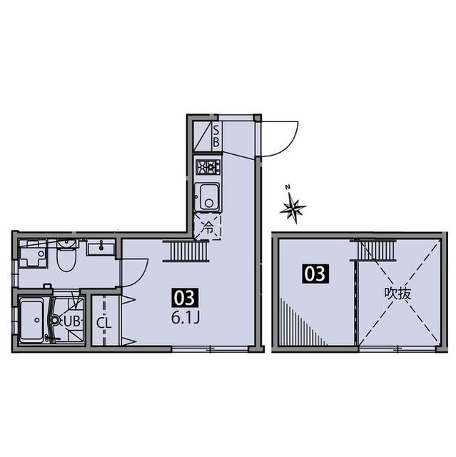
テラス上北沢 03号室の間取り
間取り:1R
間取詳細:1R
専有面積:15.07㎡
方位:南
部屋位置:角部屋
テラス上北沢 03号室の設備
キッチン
システムキッチン
IHコンロ
バス・トイレ
バス・トイレ別
浴室乾燥機
温水洗浄便座
独立洗面台
玄関
TVモニタ付インターホン
収納
クローゼット
シューズボックス
室内設備
エアコン
フローリング
ロフト付
照明器具付
デザイナーズ
位置・立地
2階以上
最上階
角部屋
南向き
インフラ
都市ガス
建物設備
防犯カメラ
ライフステージ
一人暮らしに人気の設備
カップルに人気の設備
家族に人気の設備
夫婦に人気の設備
三世代で人気の設備
トレンド
ミニマリスト
こだわり
日当たり重視
雨の日でも洗濯したい
洋室で暮らしたい
お得な条件
インターネット無料
テラス上北沢 03号室の賃貸契約情報
毎月支払う |
家賃8.5万円/月共益費4,000円/月 |
|---|---|
初期費用 |
敷金-礼金85,000円保証金-敷引き償却金- |
更新料 |
85,000円 |
鍵交換費用 |
- |
室内清掃費用 |
- |
サポート24 |
22,000円 |
火災保険料 |
18,000円 |
退去時クリーニング費用 |
60,500円 |
駐車場料金 |
無 |
損保・ |
借家賠付きの火災保険にご加入いただきます。 |
保証会社 |
|
契約期間 |
2年 |
入居可能日 |
2026年03月下旬 |
フリーレント期間 |
- |
取引形態 |
一般媒介 |
備考 |
- |
テラス上北沢 03号室の建物情報
建物名称 |
テラス上北沢 |
|---|---|
最寄駅 |
|
所在地 |
東京都世田谷区上北沢 |
階層 |
2階部分(地上2階建) |
構造 |
木造 |
築年数 |
2018年11月(築8年) |
駐車場 |
無 |
小学校学区 |
上北沢小学校 |
中学校学区 |
緑丘中学校 |
- 学区データについて
- ※学区データは必ずしも正確とは限りません。詳細に関しては最寄店舗または各自治体の教育委員会に必ずご確認ください。
無料この物件に問い合わせ
- テラス上北沢 03号室

-
8.5万円
(共益費
4,000円)
- 敷
- -
- 礼
- 85,000円
- 保
- -
- 償
- -
テラス上北沢 03号室の物件のお問い合わせ先・取り扱い店舗
ハウスコム 事業戦略室
- アクセス
-
山手線「品川駅」港南口徒歩3分
- 住所
- 〒108-0075 東京都港区港南2-16-1 品川イーストワンタワー9階
- 営業時間
- 10:00~17:00
- 定休日
- 土曜日・日曜日(祝日定休)
- 営業エリア
- 北区、荒川区、豊島区、文京区、台東区、中央区、新宿区、千代田区、渋谷区、港区、品川区
- 取引態様
- 賃貸仲介業































