SOCIETY SEKIMACHI 305号室(3階/2LDK)の賃貸物件(賃貸マンション)
東京都練馬区にあるSOCIETY SEKIMACHI 305号室は追い焚き、シューズボックス、2階以上、オンライン内見可、保証人不要などが特徴です。最寄り駅の西武新宿線東伏見駅から徒歩9分です。SOCIETY SEKIMACHI 305号室の詳細はハウスコム 吉祥寺店までお気軽にお問い合わせください!
情報更新日:
次回更新予定日:
※次回更新予定日について:お店側では順次空室確認を行っていますが、次回更新予定日までに空室確認が行えない場合には、この物件情報は自動的に削除されます。
SOCIETY SEKIMACHI 305号室の賃貸物件部屋概要
家賃 |
17.1万円
初期費用を |
|---|---|
共益費 |
12,000円
入居可能時期 |
敷金/礼金 |
1ヶ月 / 1ヶ月 |
保証金/ |
- / - |
最寄駅 |
|
所在地 |
東京都練馬区関町北 |
部屋番号 |
305号室 |
間取り |
2LDK(LDK10.9・洋6.6・洋6) |
専有面積 |
56.31㎡ |
築年数 |
1993年8月(築33年) |
階数 |
3階部分(地上4階建) |
方位・位置 |
南 / 角部屋 |
物件種別 |
賃貸マンション |
構造 |
RC |
駐車場 |
- |
小学校学区 |
関町北小学校 |
中学校学区 |
関中学校 |
他の空き部屋 |
203号室 206号室 |
- 学区データについて
- ※学区データは必ずしも正確とは限りません。詳細に関しては最寄店舗または各自治体の教育委員会に必ずご確認ください。
SOCIETY SEKIMACHI 305号室の特徴
-
一人暮らしに人気の設備

-
カップルに人気の設備

-
家族に人気の設備

-
夫婦に人気の設備

-
三世代で人気の設備

-
収納重視

-
外で子どもと遊びたい

-
雨の日でも洗濯したい

-
洋室で暮らしたい

-
持ち物をスッキリ隠す収納部屋

-
服やおしゃれが好き

-
ガーデニングが好き

契約条件
ご契約時に保証人は不要です。
セキュリティ
この物件の建物には、オートロックや防犯カメラや宅配ボックスが設置されております。
室内設備
システムキッチンには、ガスコンロが備え付けられています。 お風呂とトイレは別です。お風呂には、追い焚き機能が備わっています。 トイレは、温水洗浄便座機能付きになります。 洗濯に便利な設備として、室内洗濯機置場があります。
居室状況
お部屋の床は、フローリングとなっており、エアコンが設置されています。 収納スペースとして、基本的な居室にクローゼットを設置、通常よりも収納力の高いウォークインクローゼット、玄関にはシューズボックスがあります。
建物設備共用部分
居室外の専有スペースとして、洗濯物を干すなどの用途として利用できるバルコニーがあります。 建物の共用スペースに、いざという時の防犯カメラや、急な外出や不在がちのご家庭の荷物受け取りに便利な宅配ボックスが設置されています。 駐輪場が利用できます。
周辺施設
この物件の学区は、関町北小学校区・関中学校区です。
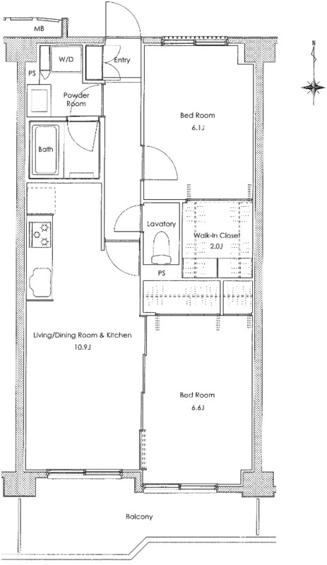
SOCIETY SEKIMACHI 305号室の間取り
間取り:2LDK
間取詳細:2LDK(LDK10.9・洋6.6・洋6)
専有面積:56.31㎡
方位:南
部屋位置:角部屋
SOCIETY SEKIMACHI 305号室の設備
キッチン
システムキッチン
ガスコンロ
バス・トイレ
バス・トイレ別
追い焚き
温水洗浄便座
玄関
オートロック
宅配ボックス
収納
クローゼット
ウォークインクローゼット
シューズボックス
全居室収納
バルコニー
バルコニー
ルーフバルコニー
室内設備
エアコン
フローリング
室内洗濯機置場
位置・立地
2階以上
角部屋
南向き
インフラ
CATV
建物設備
防犯カメラ
駐輪場
入居条件
オンライン相談可
オンライン内見可
保証人不要
即入居可
ライフステージ
一人暮らしに人気の設備
カップルに人気の設備
家族に人気の設備
夫婦に人気の設備
三世代で人気の設備
こだわり
収納重視
外で子どもと遊びたい
雨の日でも洗濯したい
洋室で暮らしたい
持ち物をスッキリ隠す収納部屋
趣味
服やおしゃれが好き
ガーデニングが好き
SOCIETY SEKIMACHI 305号室の賃貸契約情報
毎月支払う |
家賃17.1万円/月共益費12,000円/月 |
|---|---|
初期費用 |
敷金1ヶ月 (17.1万円)礼金1ヶ月 (17.1万円)保証金-敷引き償却金- |
更新料 |
171,000円 |
鍵交換費用 |
- |
室内清掃費用 |
- |
事務手数料(税込) |
5,500円 |
駐車場料金 |
- |
損保・ |
借家賠付きの火災保険にご加入いただきます。 |
保証会社 |
加入要 保証会社利用料:初回保証料:総賃料50% 継続保証料:10,000円/1年毎 決済手数料:500円/毎月 |
契約期間 |
2年 |
入居可能日 |
即入居可 |
フリーレント期間 |
- |
取引形態 |
一般媒介 |
備考 |
- |
SOCIETY SEKIMACHI 305号室の建物情報
建物名称 |
SOCIETY SEKIMACHI |
|---|---|
最寄駅 |
|
所在地 |
東京都練馬区関町北 |
階層 |
3階部分(地上4階建) |
構造 |
RC |
築年数 |
1993年8月(築33年) |
駐車場 |
- |
小学校学区 |
関町北小学校 |
中学校学区 |
関中学校 |
- 学区データについて
- ※学区データは必ずしも正確とは限りません。詳細に関しては最寄店舗または各自治体の教育委員会に必ずご確認ください。
無料この物件に問い合わせ
- SOCIETY SEKIMACHI 305号室

-
17.1万円
(共益費
12,000円)
- 敷
- 1ヶ月
- 礼
- 1ヶ月
- 保
- -
- 償
- -
SOCIETY SEKIMACHI 305号室の物件のお問い合わせ先・取り扱い店舗
ハウスコム 吉祥寺店
- アクセス
-
中央本線(JR東日本)「吉祥寺駅」公園口徒歩1分
- 住所
- 〒180-0003 東京都武蔵野市吉祥寺南町1丁目3−1 吉祥寺駅前井口ビル 2F
- 営業時間
- 10:00~18:00
- 定休日
- なし
- 営業エリア
- 武蔵野市・三鷹市・杉並区・練馬区・小金井市・調布市
- 取引態様
- 賃貸仲介業







