LUORE田端 0502号室(5階/1R)の賃貸物件(賃貸マンション)
東京都北区にあるLUORE田端 0502号室はバス・トイレ別、フローリング、室内洗濯機置場、南向き、防犯カメラなどが特徴です。最寄り駅の山手線田端駅から徒歩6分です。LUORE田端 0502号室の詳細はハウスコム 赤羽店までお気軽にお問い合わせください!
情報更新日:
次回更新予定日:
※次回更新予定日について:お店側では順次空室確認を行っていますが、次回更新予定日までに空室確認が行えない場合には、この物件情報は自動的に削除されます。
LUORE田端 0502号室の賃貸物件部屋概要
家賃 |
12.5万円
初期費用を |
|---|---|
共益費 |
12,000円
入居可能時期 |
敷金/礼金 |
- / - |
保証金/ |
- / - |
最寄駅 |
|
所在地 |
東京都北区田端新町 |
部屋番号 |
0502号室 |
間取り |
1R(洋8.4) |
専有面積 |
25.58㎡ |
築年数 |
2025年3月 |
階数 |
5階部分(地上5階建) |
方位・位置 |
南 / その他 |
物件種別 |
賃貸マンション |
構造 |
RC |
駐車場 |
- |
小学校学区 |
滝野川第四小学校 |
中学校学区 |
田端中学校 |
他の空き部屋 |
0501号室 |
- 学区データについて
- ※学区データは必ずしも正確とは限りません。詳細に関しては最寄店舗または各自治体の教育委員会に必ずご確認ください。
LUORE田端 0502号室の特徴
契約条件
この物件は、2人入居もご契約できます。 敷金と礼金が無料なため、初期費用が比較的安くなる傾向にあります。
セキュリティ
この物件の建物には、オートロックや防犯カメラや宅配ボックスが設置されており、来客時には居室内のテレビモニターにて訪問者の顔を確認することができます。
室内設備
システムキッチンが備え付けられています。 洗濯に便利な設備として、室内洗濯機置場があります。浴室乾燥機も設置されているので、梅雨時の生乾き臭も比較的防ぐことができます。
居室状況
お部屋の床は、フローリングとなっており、エアコンが設置されています。 収納スペースとして、基本的な居室にクローゼットを設置、玄関にはシューズボックスがあります。
建物設備共用部分
建物の共用スペースに、日々の出入に便利なエレベーターや、いざという時の防犯カメラや、急な外出や不在がちのご家庭の荷物受け取りに便利な宅配ボックスが設置されています。
周辺施設
この物件の学区は、滝野川第四小学校区・田端中学校区です。
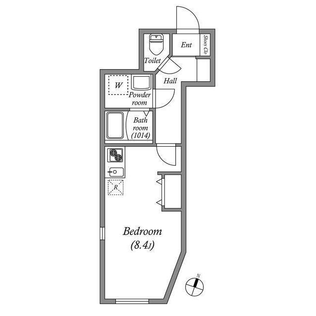
LUORE田端 0502号室の間取り
間取り:1R
間取詳細:1R(洋8.4)
専有面積:25.58㎡
方位:南
部屋位置:その他
LUORE田端 0502号室の設備
キッチン
システムキッチン
バス・トイレ
バス・トイレ別
浴室乾燥機
玄関
TVモニタ付インターホン
オートロック
宅配ボックス
収納
クローゼット
シューズボックス
室内設備
エアコン
フローリング
室内洗濯機置場
位置・立地
2階以上
最上階
南向き
インフラ
BS
CS
都市ガス
建物設備
エレベーター
防犯カメラ
入居条件
2人入居可
ライフステージ
一人暮らしに人気の設備
カップルに人気の設備
家族に人気の設備
夫婦に人気の設備
三世代で人気の設備
こだわり
セキュリティ対策重視
雨の日でも洗濯したい
洋室で暮らしたい
LUORE田端 0502号室の賃貸契約情報
毎月支払う |
家賃12.5万円/月共益費12,000円/月 |
|---|---|
初期費用 |
敷金-礼金-保証金-敷引き償却金- |
更新料 |
- |
鍵交換費用 |
- |
室内清掃費用 |
- |
カギ代 |
33,000円 |
退去時RC代 |
38,500円 |
駐車場料金 |
- |
損保・ |
借家賠付きの火災保険にご加入いただきます。 |
保証会社 |
加入要 保証会社利用料:株式会社エポスカード ROOM iD(個人)保証料:保証人有30% 無40% (法人)40%※保証人 |
契約期間 |
2年 |
入居可能日 |
2026年04月 |
フリーレント期間 |
- |
取引形態 |
一般媒介 |
備考 |
- |
LUORE田端 0502号室の建物情報
建物名称 |
LUORE田端 |
|---|---|
最寄駅 |
|
所在地 |
東京都北区田端新町 |
階層 |
5階部分(地上5階建) |
構造 |
RC |
築年数 |
2025年3月 |
駐車場 |
- |
小学校学区 |
滝野川第四小学校 |
中学校学区 |
田端中学校 |
- 学区データについて
- ※学区データは必ずしも正確とは限りません。詳細に関しては最寄店舗または各自治体の教育委員会に必ずご確認ください。
無料この物件に問い合わせ
- LUORE田端 0502号室

-
12.5万円
(共益費
12,000円)
- 敷
- -
- 礼
- -
- 保
- -
- 償
- -
LUORE田端 0502号室の物件のお問い合わせ先・取り扱い店舗
ハウスコム 赤羽店
- アクセス
-
京浜東北・根岸線「赤羽駅」南口徒歩1分
- 住所
- 〒115-0044 東京都北区赤羽南1丁目7−3 厚生堂ビル1階
- 営業時間
- 10:00~18:00
- 定休日
- なし
- 営業エリア
- 北区,板橋区,足立区,川口市,戸田市
- 取引態様
- 賃貸仲介業











