パークアクシス西巣鴨 1302号室(13階/2DK)の賃貸物件(賃貸マンション)
東京都北区にあるパークアクシス西巣鴨 1302号室はTVモニタ付インターホン、エアコン、室内洗濯機置場、BS、CSなどが特徴です。最寄り駅の都営三田線西巣鴨駅から徒歩5分です。パークアクシス西巣鴨 1302号室の詳細はハウスコム 赤羽店までお気軽にお問い合わせください!
情報更新日:
次回更新予定日:
※次回更新予定日について:お店側では順次空室確認を行っていますが、次回更新予定日までに空室確認が行えない場合には、この物件情報は自動的に削除されます。
パークアクシス西巣鴨 1302号室の賃貸物件部屋概要
家賃 |
25.4万円
初期費用を |
|---|---|
共益費 |
12,000円
入居可能時期 |
敷金/礼金 |
1ヶ月 / 1ヶ月 |
保証金/ |
- / - |
最寄駅 |
|
所在地 |
東京都北区滝野川 |
部屋番号 |
1302号室 |
間取り |
2DK |
専有面積 |
53.25㎡ |
築年数 |
2012年1月(築15年) |
階数 |
13階部分(地上13階建) |
方位・位置 |
北西 / その他 |
物件種別 |
賃貸マンション |
構造 |
RC |
駐車場 |
33,000円 |
小学校学区 |
滝野川第二小学校 |
中学校学区 |
滝野川紅葉中学校 |
他の空き部屋 |
1303号室 605号室 904号室 |
- 学区データについて
- ※学区データは必ずしも正確とは限りません。詳細に関しては最寄店舗または各自治体の教育委員会に必ずご確認ください。
パークアクシス西巣鴨 1302号室の特徴
契約条件
ペットの飼育や楽器演奏もご相談ください。
セキュリティ
この物件の建物には、オートロックや宅配ボックスが設置されており、来客時には居室内のテレビモニターにて訪問者の顔を確認することができます。
室内設備
システムキッチンが備え付けられています。 お風呂とトイレは別です。お風呂には、追い焚き機能が備わっています。 洗濯に便利な設備として、室内洗濯機置場があります。浴室乾燥機も設置されているので、梅雨時の生乾き臭も比較的防ぐことができます。
居室状況
エアコンが設置されています。
建物設備共用部分
居室外の専有スペースとして、洗濯物を干すなどの用途として利用できるバルコニーがあります。 建物の共用スペースに、日々の出入に便利なエレベーターや、急な外出や不在がちのご家庭の荷物受け取りに便利な宅配ボックスが設置されています。 バイク置き場が利用できます。
周辺施設
この物件の学区は、滝野川第二小学校区・滝野川紅葉中学校区です。
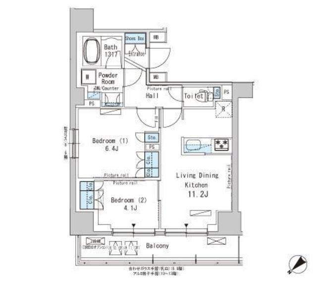
パークアクシス西巣鴨 1302号室の間取り
間取り:2DK
間取詳細:2DK
専有面積:53.25㎡
方位:北西
部屋位置:その他
パークアクシス西巣鴨 1302号室の設備
キッチン
システムキッチン
バス・トイレ
バス・トイレ別
追い焚き
浴室乾燥機
玄関
TVモニタ付インターホン
オートロック
宅配ボックス
バルコニー
バルコニー
ルーフバルコニー
室内設備
エアコン
室内洗濯機置場
位置・立地
2階以上
最上階
インフラ
インターネット可
CATV
BS
CS
建物設備
エレベーター
バイク置き場
入居条件
ペット可・相談
楽器可・相談
ライフステージ
一人暮らしに人気の設備
カップルに人気の設備
家族に人気の設備
夫婦に人気の設備
三世代で人気の設備
こだわり
外で子どもと遊びたい
雨の日でも洗濯したい
趣味
ガーデニングが好き
パークアクシス西巣鴨 1302号室の賃貸契約情報
毎月支払う |
家賃25.4万円/月共益費12,000円/月 |
|---|---|
初期費用 |
敷金1ヶ月 (25.4万円)礼金1ヶ月 (25.4万円)保証金-敷引き償却金- |
更新料 |
254,000円 |
鍵交換費用 |
- |
室内清掃費用 |
- |
室内清掃費 |
99,577円 |
鍵交換費 |
16,500円 |
駐車場料金 |
33,000円 |
損保・ |
借家賠付きの火災保険にご加入いただきます。 |
保証会社 |
加入要 保証会社利用料:保証会社名:レジデントアシスタンス株式会社/初回保証委託料(最低20000円):月額賃料等の50%、 2年目以降:9600円/年 |
契約期間 |
2年 |
入居可能日 |
2026年04月下旬 |
フリーレント期間 |
- |
取引形態 |
一般媒介 |
備考 |
- |
パークアクシス西巣鴨 1302号室の建物情報
建物名称 |
パークアクシス西巣鴨 |
|---|---|
最寄駅 |
|
所在地 |
東京都北区滝野川 |
階層 |
13階部分(地上13階建) |
構造 |
RC |
築年数 |
2012年1月(築15年) |
駐車場 |
33,000円 |
小学校学区 |
滝野川第二小学校 |
中学校学区 |
滝野川紅葉中学校 |
- 学区データについて
- ※学区データは必ずしも正確とは限りません。詳細に関しては最寄店舗または各自治体の教育委員会に必ずご確認ください。
無料この物件に問い合わせ
- パークアクシス西巣鴨 1302号室

-
25.4万円
(共益費
12,000円)
- 敷
- 1ヶ月
- 礼
- 1ヶ月
- 保
- -
- 償
- -
パークアクシス西巣鴨 1302号室の物件のお問い合わせ先・取り扱い店舗
ハウスコム 赤羽店
- アクセス
-
京浜東北・根岸線「赤羽駅」南口徒歩1分
- 住所
- 〒115-0044 東京都北区赤羽南1丁目7−3 厚生堂ビル1階
- 営業時間
- 10:00~18:00
- 定休日
- なし
- 営業エリア
- 北区,板橋区,足立区,川口市,戸田市
- 取引態様
- 賃貸仲介業











