アークマーク代田橋 205号室(2階/1DK)の賃貸物件(賃貸マンション)
東京都世田谷区にあるアークマーク代田橋 205号室は宅配ボックス、シューズボックス、ルーフバルコニー、CS、即入居可などが特徴です。最寄り駅の京王線笹塚駅から徒歩10分です。アークマーク代田橋 205号室の詳細はハウスコム 明大前店までお気軽にお問い合わせください!
情報更新日:
次回更新予定日:
※次回更新予定日について:お店側では順次空室確認を行っていますが、次回更新予定日までに空室確認が行えない場合には、この物件情報は自動的に削除されます。
アークマーク代田橋 205号室の賃貸物件部屋概要
家賃 |
12.3万円
初期費用を |
|---|---|
共益費 |
15,000円
入居可能時期 |
敷金/礼金 |
- / 1ヶ月 |
保証金/ |
- / - |
最寄駅 |
|
所在地 |
東京都世田谷区大原 |
部屋番号 |
205号室 |
間取り |
1DK(洋3.4・DK5) |
専有面積 |
28.88㎡ |
築年数 |
2021年6月(築5年) |
階数 |
2階部分(地上6階建) |
方位・位置 |
ー / その他 |
物件種別 |
賃貸マンション |
構造 |
RC |
駐車場 |
- |
小学校学区 |
下北沢小学校 |
中学校学区 |
北沢中学校 |
他の空き部屋 |
ー |
- 学区データについて
- ※学区データは必ずしも正確とは限りません。詳細に関しては最寄店舗または各自治体の教育委員会に必ずご確認ください。
アークマーク代田橋 205号室の特徴
-
一人暮らしに人気の設備

-
カップルに人気の設備

-
家族に人気の設備

-
夫婦に人気の設備

-
三世代で人気の設備

-
セキュリティ対策重視

-
収納重視

-
タイパ重視

-
外で子どもと遊びたい

-
雨の日でも洗濯したい

-
洋室で暮らしたい

-
持ち物をスッキリ隠す収納部屋

-
オークション・通販が好き

-
ガーデニングが好き

契約条件
この物件は、2人入居もご契約できます。 また、ご契約時に保証人は不要です。 敷金が無料なため、初期費用が比較的安くなる傾向にあります。
セキュリティ
この物件の建物には、オートロックや防犯カメラや宅配ボックスが設置されており、来客時には居室内のテレビモニターにて訪問者の顔を確認することができます。
室内設備
システムキッチンには、2つ以上のガスコンロが備え付けられています。 トイレは、温水洗浄便座機能付きになります。 女性に嬉しい設備の独立した洗面化粧台があります。 洗濯に便利な設備として、室内洗濯機置場があります。浴室乾燥機も設置されているので、梅雨時の生乾き臭も比較的防ぐことができます。
居室状況
お部屋の床は、フローリングとなっており、エアコンが設置されています。 インターネットも無料で入居後すぐ生活が始められます。 収納スペースとして、基本的な居室にクローゼットを設置、玄関にはシューズボックスがあります。
建物設備共用部分
居室外の専有スペースとして、洗濯物を干すなどの用途として利用できるバルコニーがあります。 建物の共用スペースに、日々の出入に便利なエレベーターや、いざという時の防犯カメラや、急な外出や不在がちのご家庭の荷物受け取りに便利な宅配ボックスや、居室内を常に清潔に保てる24時間利用可能なゴミ捨て置き場が設置されています。 駐輪場が利用できます。
周辺施設
この物件の学区は、下北沢小学校区・北沢中学校区です。
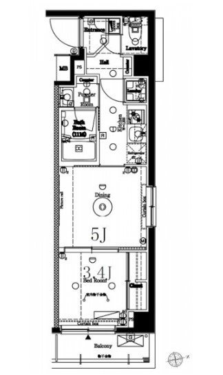
アークマーク代田橋 205号室の間取り
間取り:1DK
間取詳細:1DK(洋3.4・DK5)
専有面積:28.88㎡
方位:ー
部屋位置:その他
アークマーク代田橋 205号室の設備
キッチン
システムキッチン
ガスコンロ
ガスコンロ二口以上
バス・トイレ
バス・トイレ別
浴室乾燥機
温水洗浄便座
独立洗面台
玄関
TVモニタ付インターホン
オートロック
宅配ボックス
収納
クローゼット
シューズボックス
全居室収納
バルコニー
バルコニー
ルーフバルコニー
室内設備
エアコン
フローリング
室内洗濯機置場
位置・立地
2階以上
インフラ
インターネット可
BS
CS
建物設備
エレベーター
防犯カメラ
24時間ゴミ出しOK
駐輪場
入居条件
2人入居可
オンライン相談可
オンライン内見可
保証人不要
即入居可
ライフステージ
一人暮らしに人気の設備
カップルに人気の設備
家族に人気の設備
夫婦に人気の設備
三世代で人気の設備
こだわり
セキュリティ対策重視
収納重視
タイパ重視
外で子どもと遊びたい
雨の日でも洗濯したい
洋室で暮らしたい
持ち物をスッキリ隠す収納部屋
趣味
オークション・通販が好き
ガーデニングが好き
お得な条件
インターネット無料
アークマーク代田橋 205号室の賃貸契約情報
毎月支払う |
家賃12.3万円/月共益費15,000円/月 |
|---|---|
初期費用 |
敷金-礼金1ヶ月 (12.3万円)保証金-敷引き償却金- |
更新料 |
123,000円 |
鍵交換費用 |
- |
室内清掃費用 |
- |
クラブアセットα(2年毎) |
20,000円 |
駐車場料金 |
- |
損保・ |
借家賠付きの火災保険にご加入いただきます。 |
保証会社 |
加入要 保証会社利用料:初回50% |
契約期間 |
2年 |
入居可能日 |
即入居可 |
フリーレント期間 |
- |
取引形態 |
一般媒介 |
備考 |
退去時クリーニング60500円鍵交換費38500円エアコン内部洗浄13200円/台かかります。 12ヶ月未満解約の場合総賃料1ヶ月分違約金有。 アセットでんき加入必須。 引越業者指定あり。 |
アークマーク代田橋 205号室の建物情報
建物名称 |
アークマーク代田橋 |
|---|---|
最寄駅 |
|
所在地 |
東京都世田谷区大原 |
階層 |
2階部分(地上6階建) |
構造 |
RC |
築年数 |
2021年6月(築5年) |
駐車場 |
- |
小学校学区 |
下北沢小学校 |
中学校学区 |
北沢中学校 |
- 学区データについて
- ※学区データは必ずしも正確とは限りません。詳細に関しては最寄店舗または各自治体の教育委員会に必ずご確認ください。
無料この物件に問い合わせ
- アークマーク代田橋 205号室

-
12.3万円
(共益費
15,000円)
- 敷
- -
- 礼
- 1ヶ月
- 保
- -
- 償
- -
アークマーク代田橋 205号室の物件のお問い合わせ先・取り扱い店舗
ハウスコム 明大前店
- アクセス
-
京王線「明大前駅」中央口徒歩1分
京王井の頭線「明大前駅」中央口徒歩1分
- 住所
- 〒156-0043 東京都世田谷区松原2丁目44−1 グランシーン明大前 1階
- 営業時間
- 10:00~18:00
- 定休日
- なし
- 営業エリア
- 世田谷区・杉並区・渋谷区・中野区・新宿区・三鷹市・調布市
- 取引態様
- 賃貸仲介業

























