LUMIECunSAKURASHINMACHI 301号室(3階/1SLDK)の賃貸物件(賃貸マンション)
東京都世田谷区にあるLUMIECunSAKURASHINMACHI 301号室はシステムキッチン、バルコニー、室内洗濯機置場、駐輪場、オンライン相談可などが特徴です。最寄り駅の東急田園都市線桜新町駅から徒歩7分です。LUMIECunSAKURASHINMACHI 301号室の詳細はハウスコム 桜新町店までお気軽にお問い合わせください!
情報更新日:
次回更新予定日:
※次回更新予定日について:お店側では順次空室確認を行っていますが、次回更新予定日までに空室確認が行えない場合には、この物件情報は自動的に削除されます。
LUMIECunSAKURASHINMACHI 301号室の賃貸物件部屋概要
家賃 |
21.5万円
初期費用を |
|---|---|
共益費 |
20,000円
入居可能時期 |
敷金/礼金 |
- / - |
保証金/ |
- / - |
最寄駅 |
|
所在地 |
東京都世田谷区弦巻 |
部屋番号 |
301号室 |
間取り |
1SLDK(LDK10.3・洋3.6・洋3.7) |
専有面積 |
41.25㎡ |
築年数 |
1993年6月(築33年) |
階数 |
3階部分(地上3階地下1階建) |
方位・位置 |
南西 / 角部屋 |
物件種別 |
賃貸マンション |
構造 |
RC |
駐車場 |
38,500円 |
小学校学区 |
松丘小学校 |
中学校学区 |
弦巻中学校 |
他の空き部屋 |
102号室 |
- 学区データについて
- ※学区データは必ずしも正確とは限りません。詳細に関しては最寄店舗または各自治体の教育委員会に必ずご確認ください。
LUMIECunSAKURASHINMACHI 301号室の特徴
-
一人暮らしに人気の設備

-
カップルに人気の設備

-
家族に人気の設備

-
夫婦に人気の設備

-
三世代で人気の設備

-
収納重視

-
外で子どもと遊びたい

-
雨の日でも洗濯したい

-
洋室で暮らしたい

-
持ち物をスッキリ隠す収納部屋

-
コスパ重視のリフォーム部屋

-
ガーデニングが好き

契約条件
この物件は、2人入居もご契約できます。 また、ご契約時に保証人は不要です。 敷金と礼金が無料なため、初期費用が比較的安くなる傾向にあります。
セキュリティ
この物件の建物には、オートロックが設置されており、来客時には居室内のテレビモニターにて訪問者の顔を確認することができます。
室内設備
システムキッチンには、ガスコンロが備え付けられています。 お風呂とトイレは別です。お風呂には、追い焚き機能が備わっています。 トイレは、温水洗浄便座機能付きになります。 女性に嬉しい設備の独立した洗面化粧台があります。 洗濯に便利な設備として、室内洗濯機置場があります。浴室乾燥機も設置されているので、梅雨時の生乾き臭も比較的防ぐことができます。
居室状況
お部屋の床は、フローリングとなっており、エアコンが設置されています。 照明器具が備え付けられており、インターネットも無料で入居後すぐ生活が始められます。 収納スペースとして、基本的な居室にクローゼットを設置、玄関にはシューズボックスがあります。
建物設備共用部分
居室外の専有スペースとして、洗濯物を干すなどの用途として利用できるバルコニーがあります。 駐輪場が利用できます。
周辺施設
この物件の学区は、松丘小学校区・弦巻中学校区です。
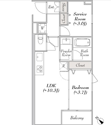
LUMIECunSAKURASHINMACHI 301号室の間取り
間取り:1SLDK
間取詳細:1SLDK(LDK10.3・洋3.6・洋3.7)
専有面積:41.25㎡
方位:南西
部屋位置:角部屋
LUMIECunSAKURASHINMACHI 301号室の設備
キッチン
システムキッチン
ガスコンロ
バス・トイレ
バス・トイレ別
追い焚き
浴室乾燥機
温水洗浄便座
独立洗面台
玄関
TVモニタ付インターホン
オートロック
収納
クローゼット
シューズボックス
全居室収納
バルコニー
バルコニー
ルーフバルコニー
室内設備
エアコン
フローリング
室内洗濯機置場
照明器具付
リノベーション済
位置・立地
2階以上
最上階
角部屋
インフラ
インターネット可
都市ガス
建物設備
駐輪場
入居条件
2人入居可
オンライン相談可
オンライン内見可
保証人不要
ライフステージ
一人暮らしに人気の設備
カップルに人気の設備
家族に人気の設備
夫婦に人気の設備
三世代で人気の設備
こだわり
収納重視
外で子どもと遊びたい
雨の日でも洗濯したい
洋室で暮らしたい
持ち物をスッキリ隠す収納部屋
コスパ重視のリフォーム部屋
趣味
ガーデニングが好き
お得な条件
フリーレント
インターネット無料
LUMIECunSAKURASHINMACHI 301号室の賃貸契約情報
毎月支払う |
家賃21.5万円/月共益費20,000円/月 |
|---|---|
初期費用 |
敷金-礼金-保証金-敷引き償却金- |
更新料 |
215,000円 |
鍵交換費用 |
38,500円 |
室内清掃費用 |
- |
24時間安心サポート |
16,500円 |
駐車場料金 |
38,500円 |
損保・ |
借家賠付きの火災保険にご加入いただきます。 |
保証会社 |
加入要 保証会社利用料:初回保証料:総賃料の40%~50% 1年毎14,000円 |
契約期間 |
2年 |
入居可能日 |
相談 |
フリーレント期間 |
1ヶ月 |
取引形態 |
一般媒介 |
備考 |
6カ月未満の解約は違約金として賃料の2カ月分 1年未満の解約は違約金として賃料の1カ月分 |
LUMIECunSAKURASHINMACHI 301号室の建物情報
建物名称 |
LUMIECunSAKURASHINMACHI |
|---|---|
最寄駅 |
|
所在地 |
東京都世田谷区弦巻 |
階層 |
3階部分(地上3階地下1階建) |
構造 |
RC |
築年数 |
1993年6月(築33年) |
駐車場 |
38,500円 |
小学校学区 |
松丘小学校 |
中学校学区 |
弦巻中学校 |
- 学区データについて
- ※学区データは必ずしも正確とは限りません。詳細に関しては最寄店舗または各自治体の教育委員会に必ずご確認ください。
無料この物件に問い合わせ
- LUMIECunSAKURASHINMACHI 301号室

-
21.5万円
(共益費
20,000円)
- 敷
- -
- 礼
- -
- 保
- -
- 償
- -
LUMIECunSAKURASHINMACHI 301号室の物件のお問い合わせ先・取り扱い店舗
ハウスコム 桜新町店
- アクセス
-
東急田園都市線「桜新町駅」徒歩3分
- 住所
- 〒154-0015 東京都世田谷区桜新町1丁目17−13 GBJ桜新町ビル3階
- 営業時間
- 10:00~18:00
- 定休日
- 水曜日
- 営業エリア
- 世田谷区、目黒区、神奈川県
- 取引態様
- 賃貸仲介業





























