メゾンフルール A号室(1階/2LDK)の賃貸物件(賃貸一戸建て)
静岡県浜松市中央区にあるメゾンフルール A号室はシャワー付洗面化粧台、TVモニタ付インターホン、シューズボックス、南向き、2人入居可などが特徴です。最寄り駅の東海道本線(JR東海)浜松駅から2.4kmです。メゾンフルール A号室の詳細はハウスコム 浜松東店までお気軽にお問い合わせください!
情報更新日:
次回更新予定日:
※次回更新予定日について:お店側では順次空室確認を行っていますが、次回更新予定日までに空室確認が行えない場合には、この物件情報は自動的に削除されます。
メゾンフルール A号室の賃貸物件部屋概要
家賃 |
10.35万円
初期費用を |
|---|---|
共益費 |
-
入居可能時期 |
敷金/礼金 |
1ヶ月 / - |
保証金/ |
- / - |
最寄駅 |
|
所在地 |
静岡県浜松市中央区細島町 |
部屋番号 |
A号室 |
間取り |
2LDK(洋6・洋6・LDK14) |
専有面積 |
59.69㎡ |
築年数 |
2005年7月(築21年) |
階数 |
1階部分(地上1階建) |
方位・位置 |
南 / 角部屋 |
物件種別 |
賃貸一戸建て |
構造 |
軽量鉄骨 |
駐車場 |
空有 賃料に含む |
小学校学区 |
ー |
中学校学区 |
ー |
他の空き部屋 |
ー |
- 学区データについて
- ※学区データは必ずしも正確とは限りません。詳細に関しては最寄店舗または各自治体の教育委員会に必ずご確認ください。
メゾンフルール A号室の特徴
-
一人暮らしに人気の設備

-
カップルに人気の設備

-
家族に人気の設備

-
夫婦に人気の設備

-
三世代で人気の設備

-
日当たり重視

-
外で子どもと遊びたい

-
急な来客でも駐車したい

-
洋室で暮らしたい

-
推し活グッズを飾りたい

-
緑のある環境が好き

-
ガーデニングが好き

-
家庭菜園が好き

契約条件
この物件は、2人入居もご契約できます。 ペットの飼育もご相談ください。 礼金が無料なため、初期費用が比較的安くなる傾向にあります。
セキュリティ
来客時には居室内のテレビモニターにて訪問者の顔を確認することができます。
室内設備
システムキッチンが備え付けられています。 トイレは、温水洗浄便座機能付きになります。 女性に嬉しい設備のシャワーの付いている洗面化粧台があります。
居室状況
お部屋の床は、フローリングとなっており、エアコンが設置されています。 インターネットも無料で入居後すぐ生活が始められます。 収納スペースとして、基本的な居室にクローゼットを設置、玄関にはシューズボックスがあります。
建物設備共用部分
居室外の専有スペースとして、入居者専用の庭があり、家庭菜園や簡単なお庭遊びが楽しめます。 平面駐車場があり2台以上の車で利用することができます。
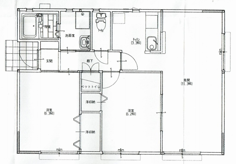
メゾンフルール A号室の間取り
間取り:2LDK
間取詳細:2LDK(洋6・洋6・LDK14)
専有面積:59.69㎡
方位:南
部屋位置:角部屋
メゾンフルール A号室の設備
キッチン
システムキッチン
カウンターキッチン
バス・トイレ
バス・トイレ別
温水洗浄便座
独立洗面台
シャワー付洗面化粧台
玄関
TVモニタ付インターホン
収納
クローゼット
シューズボックス
バルコニー
専用庭付
室内設備
エアコン
フローリング
位置・立地
1階
最上階
角部屋
南向き
インフラ
CATV
プロパンガス
建物設備
駐車場
平面駐車場
駐車2台以上可
入居条件
ペット可・相談
2人入居可
オンライン相談可
オンライン内見可
ライフステージ
一人暮らしに人気の設備
カップルに人気の設備
家族に人気の設備
夫婦に人気の設備
三世代で人気の設備
こだわり
日当たり重視
外で子どもと遊びたい
急な来客でも駐車したい
洋室で暮らしたい
趣味
推し活グッズを飾りたい
緑のある環境が好き
ガーデニングが好き
家庭菜園が好き
お得な条件
インターネット無料
メゾンフルール A号室の賃貸契約情報
毎月支払う |
家賃10.35万円/月共益費- |
|---|---|
初期費用 |
敷金1ヶ月 (10.35万円)礼金-保証金-敷引き償却金- |
更新料 |
- |
鍵交換費用 |
- |
室内清掃費用 |
- |
自治会費年払い |
4,800円 |
自治会入会金 |
1,000円 |
駐車場料金 |
空有 賃料に含む |
損保・ |
借家賠付きの火災保険にご加入いただきます。 |
保証会社 |
加入要 保証会社:オリコ 保証会社利用料:初回保証料:月額賃料総額の30%、月額保証料:月額賃料総額の1% |
契約期間 |
2年 |
入居可能日 |
2026年04月下旬 |
フリーレント期間 |
- |
取引形態 |
一般媒介 |
備考 |
自治会費年払い4800円、自治会入会金1000円、小型犬・猫2匹まで相談可 |
メゾンフルール A号室の建物情報
建物名称 |
メゾンフルール |
|---|---|
最寄駅 |
|
所在地 |
静岡県浜松市中央区細島町 |
階層 |
1階部分(地上1階建) |
構造 |
軽量鉄骨 |
築年数 |
2005年7月(築21年) |
駐車場 |
空有 賃料に含む |
小学校学区 |
ー |
中学校学区 |
ー |
- 学区データについて
- ※学区データは必ずしも正確とは限りません。詳細に関しては最寄店舗または各自治体の教育委員会に必ずご確認ください。
無料この物件に問い合わせ
- メゾンフルール A号室

-
10.35万円
(共益費
-)
- 敷
- 1ヶ月
- 礼
- -
- 保
- -
- 償
- -
メゾンフルール A号室の物件のお問い合わせ先・取り扱い店舗
ハウスコム 浜松東店
- アクセス
- 住所
- 〒435-0047 静岡県浜松市中央区原島町234−1
- 営業時間
- 10:00~18:00
- 定休日
- なし
- 営業エリア
- 浜松市中央区、浜松市浜名区、浜松市天竜区、磐田市
- 取引態様
- 賃貸仲介業

