ソフィアヒルズ ***号室(3階/1DK)の賃貸物件(賃貸マンション)
東京都北区にあるソフィアヒルズ ***号室はガスコンロ、ガスコンロ二口以上、宅配ボックス、エアコン、デザイナーズなどが特徴です。最寄り駅の山手線田端駅から徒歩7分です。ソフィアヒルズ ***号室の詳細はハウスコム 赤羽店までお気軽にお問い合わせください!
情報更新日:
次回更新予定日:
※次回更新予定日について:お店側では順次空室確認を行っていますが、次回更新予定日までに空室確認が行えない場合には、この物件情報は自動的に削除されます。
ソフィアヒルズ ***号室の賃貸物件部屋概要
家賃 |
12.3万円
初期費用を |
|---|---|
共益費 |
10,000円
入居可能時期 |
敷金/礼金 |
- / 1ヶ月 |
保証金/ |
- / - |
最寄駅 |
|
所在地 |
東京都北区東田端 |
部屋番号 |
***号室 |
間取り |
1DK(洋6.1・DK7.5) |
専有面積 |
30.81㎡ |
築年数 |
2011年10月(築15年) |
階数 |
3階部分(地上4階建) |
方位・位置 |
南東 / 角部屋 |
物件種別 |
賃貸マンション |
構造 |
鉄骨造 |
駐車場 |
無 |
小学校学区 |
滝野川第四小学校 |
中学校学区 |
田端中学校 |
他の空き部屋 |
202号室 301号室 |
- 学区データについて
- ※学区データは必ずしも正確とは限りません。詳細に関しては最寄店舗または各自治体の教育委員会に必ずご確認ください。
ソフィアヒルズ ***号室の特徴
-
一人暮らしに人気の設備

-
カップルに人気の設備

-
家族に人気の設備

-
夫婦に人気の設備

-
三世代で人気の設備

-
外で子どもと遊びたい

-
雨の日でも洗濯したい

-
洋室で暮らしたい

-
オークション・通販が好き

-
ガーデニングが好き

契約条件
ご契約時に保証人は不要です。 敷金が無料なため、初期費用が比較的安くなる傾向にあります。
セキュリティ
この物件の建物には、オートロックや宅配ボックスが設置されており、来客時には居室内のテレビモニターにて訪問者の顔を確認することができます。
室内設備
システムキッチンには、2つ以上のガスコンロが備え付けられています。 お風呂とトイレは別です。お風呂には、追い焚き機能が備わっています。 トイレは、温水洗浄便座機能付きになります。 女性に嬉しい設備の独立した洗面化粧台があります。 洗濯に便利な設備として、室内洗濯機置場があります。浴室乾燥機も設置されているので、梅雨時の生乾き臭も比較的防ぐことができます。
居室状況
お部屋の床は、フローリングとなっており、エアコンが設置されています。 インターネットも無料で入居後すぐ生活が始められます。 収納スペースとして、基本的な居室にクローゼットを設置、玄関にはシューズボックスがあります。
建物設備共用部分
居室外の専有スペースとして、洗濯物を干すなどの用途として利用できるバルコニーがあります。 建物の共用スペースに、急な外出や不在がちのご家庭の荷物受け取りに便利な宅配ボックスが設置されています。 駐輪場が利用できます。
周辺施設
この物件の学区は、滝野川第四小学校区・田端中学校区です。
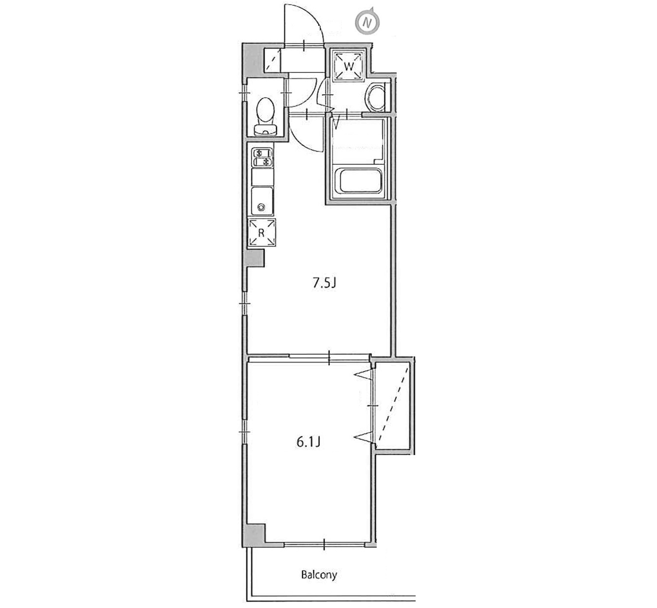
ソフィアヒルズ ***号室の間取り
間取り:1DK
間取詳細:1DK(洋6.1・DK7.5)
専有面積:30.81㎡
方位:南東
部屋位置:角部屋
ソフィアヒルズ ***号室の設備
キッチン
システムキッチン
ガスコンロ
ガスコンロ二口以上
バス・トイレ
バス・トイレ別
追い焚き
浴室乾燥機
温水洗浄便座
独立洗面台
玄関
TVモニタ付インターホン
オートロック
宅配ボックス
収納
クローゼット
シューズボックス
バルコニー
バルコニー
ルーフバルコニー
室内設備
エアコン
フローリング
室内洗濯機置場
デザイナーズ
位置・立地
2階以上
角部屋
インフラ
インターネット可
プロパンガス
建物設備
駐輪場
入居条件
オンライン相談可
オンライン内見可
保証人不要
ライフステージ
一人暮らしに人気の設備
カップルに人気の設備
家族に人気の設備
夫婦に人気の設備
三世代で人気の設備
こだわり
外で子どもと遊びたい
雨の日でも洗濯したい
洋室で暮らしたい
趣味
オークション・通販が好き
ガーデニングが好き
お得な条件
インターネット無料
ソフィアヒルズ ***号室の賃貸契約情報
毎月支払う |
家賃12.3万円/月共益費10,000円/月 |
|---|---|
初期費用 |
敷金-礼金1ヶ月 (12.3万円)保証金-敷引き償却金- |
更新料 |
123,000円 |
鍵交換費用 |
- |
室内清掃費用 |
66,000円 |
プレミアデスク(2年) |
22,000円 |
害虫バリア |
16,500円 |
町内会費(2年) |
3,000円 |
駐車場料金 |
無 |
損保・ |
借家賠付きの火災保険にご加入いただきます。 |
保証会社 |
加入要 保証会社:エポスカード 保証会社利用料:初回保証料:総賃料の40%、1年ごとに1万円~ |
契約期間 |
2年 |
入居可能日 |
2026年06月中旬 |
フリーレント期間 |
- |
取引形態 |
一般媒介 |
備考 |
インターネット:無料 インフォム 短期解約違約金:1年未満1ヶ月 解約予告:2ヶ月前 プレミアデスク代の中に登録料4400円を含みます。 大手法人契約時礼1で諸条件ご相談可 駐輪場:無料空き要確認 町会費3000円(2年分一括/途中解約での返金無) |
ソフィアヒルズ ***号室の建物情報
建物名称 |
ソフィアヒルズ |
|---|---|
最寄駅 |
|
所在地 |
東京都北区東田端 |
階層 |
3階部分(地上4階建) |
構造 |
鉄骨造 |
築年数 |
2011年10月(築15年) |
駐車場 |
無 |
小学校学区 |
滝野川第四小学校 |
中学校学区 |
田端中学校 |
- 学区データについて
- ※学区データは必ずしも正確とは限りません。詳細に関しては最寄店舗または各自治体の教育委員会に必ずご確認ください。
無料この物件に問い合わせ
- ソフィアヒルズ ***号室

-
12.3万円
(共益費
10,000円)
- 敷
- -
- 礼
- 1ヶ月
- 保
- -
- 償
- -
ソフィアヒルズ ***号室の物件のお問い合わせ先・取り扱い店舗
ハウスコム 赤羽店
- アクセス
-
京浜東北・根岸線「赤羽駅」南口徒歩1分
- 住所
- 〒115-0044 東京都北区赤羽南1丁目7−3 厚生堂ビル1階
- 営業時間
- 10:00~18:00
- 定休日
- なし
- 営業エリア
- 北区,板橋区,足立区,川口市,戸田市
- 取引態様
- 賃貸仲介業



























