ベルシード板橋本町プレミアⅡ 406号室(4階/1LDK)の賃貸物件(賃貸マンション)
東京都板橋区にあるベルシード板橋本町プレミアⅡ 406号室はガスコンロ、ガスコンロ二口以上、浴室乾燥機、クローゼット、ペット可・相談などが特徴です。最寄り駅の都営三田線板橋本町駅から徒歩10分です。ベルシード板橋本町プレミアⅡ 406号室の詳細はハウスコム 赤羽店までお気軽にお問い合わせください!
情報更新日:
次回更新予定日:
※次回更新予定日について:お店側では順次空室確認を行っていますが、次回更新予定日までに空室確認が行えない場合には、この物件情報は自動的に削除されます。
ベルシード板橋本町プレミアⅡ 406号室の賃貸物件部屋概要
家賃 |
17.4万円
初期費用を |
|---|---|
共益費 |
15,000円
入居可能時期 |
敷金/礼金 |
- / - |
保証金/ |
- / - |
最寄駅 |
|
所在地 |
東京都板橋区清水町 |
部屋番号 |
406号室 |
間取り |
1LDK(洋4.8・LDK7.8) |
専有面積 |
35.55㎡ |
築年数 |
新築 |
階数 |
4階部分(地上10階建) |
方位・位置 |
北東 / その他 |
物件種別 |
賃貸マンション |
構造 |
RC |
駐車場 |
27,500円 |
小学校学区 |
志村第三小学校 |
中学校学区 |
志村第一中学校 |
他の空き部屋 |
1001号室 101号室 102号室 202号室 203号室 302号室 303号室 304号室 401号室 402号室 405号室 501号室 503号室 506号室 507号室 601号室 602号室 604号室 606号室 607号室 701号室 702号室 703号室 706号室 805号室 806号室 901号室 903号室 904号室 |
- 学区データについて
- ※学区データは必ずしも正確とは限りません。詳細に関しては最寄店舗または各自治体の教育委員会に必ずご確認ください。
ベルシード板橋本町プレミアⅡ 406号室の特徴
-
一人暮らしに人気の設備

-
カップルに人気の設備

-
家族に人気の設備

-
夫婦に人気の設備

-
三世代で人気の設備

-
セキュリティ対策重視

-
タイパ重視

-
外で子どもと遊びたい

-
急な来客でも駐車したい

-
雨の日でも洗濯したい

-
洋室で暮らしたい

-
オークション・通販が好き

-
ガーデニングが好き

契約条件
この物件は、2人入居もご契約できます。 ペットの飼育もご相談ください。 また、ご契約時に保証人は不要です。 敷金と礼金が無料なため、初期費用が比較的安くなる傾向にあります。
セキュリティ
この物件の建物には、オートロックや防犯カメラや宅配ボックスが設置されており、来客時には居室内のテレビモニターにて訪問者の顔を確認することができます。
室内設備
システムキッチンには、2つ以上のガスコンロが備え付けられています。 お風呂とトイレは別です。お風呂には、追い焚き機能が備わっています。 トイレは、温水洗浄便座機能付きになります。 女性に嬉しい設備のシャワーの付いている洗面化粧台があります。 洗濯に便利な設備として、室内洗濯機置場があります。浴室乾燥機も設置されているので、梅雨時の生乾き臭も比較的防ぐことができます。
居室状況
お部屋の床は、フローリングとなっており、エアコンが設置されています。 インターネットも無料で入居後すぐ生活が始められます。 収納スペースとして、基本的な居室にクローゼットを設置、玄関にはシューズボックスがあります。
建物設備共用部分
居室外の専有スペースとして、洗濯物を干すなどの用途として利用できるバルコニーがあります。 建物の共用スペースに、日々の出入に便利なエレベーターや、いざという時の防犯カメラや、急な外出や不在がちのご家庭の荷物受け取りに便利な宅配ボックスや、居室内を常に清潔に保てる24時間利用可能なゴミ捨て置き場が設置されています。 駐車場があり2台以上の車で利用することができます。駐輪場、バイク置き場が利用できます。
周辺施設
この物件の学区は、志村第三小学校区・志村第一中学校区です。
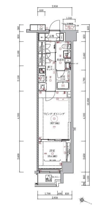
ベルシード板橋本町プレミアⅡ 406号室の間取り
間取り:1LDK
間取詳細:1LDK(洋4.8・LDK7.8)
専有面積:35.55㎡
方位:北東
部屋位置:その他
ベルシード板橋本町プレミアⅡ 406号室の設備
キッチン
システムキッチン
ガスコンロ
ガスコンロ二口以上
バス・トイレ
バス・トイレ別
追い焚き
浴室乾燥機
温水洗浄便座
独立洗面台
シャワー付洗面化粧台
玄関
TVモニタ付インターホン
オートロック
宅配ボックス
収納
クローゼット
シューズボックス
バルコニー
バルコニー
ルーフバルコニー
室内設備
エアコン
フローリング
室内洗濯機置場
位置・立地
2階以上
インフラ
インターネット可
BS
CS
都市ガス
建物設備
エレベーター
防犯カメラ
24時間ゴミ出しOK
駐車2台以上可
駐輪場
バイク置き場
入居条件
ペット可・相談
2人入居可
オンライン相談可
オンライン内見可
保証人不要
即入居可
ライフステージ
一人暮らしに人気の設備
カップルに人気の設備
家族に人気の設備
夫婦に人気の設備
三世代で人気の設備
こだわり
セキュリティ対策重視
タイパ重視
外で子どもと遊びたい
急な来客でも駐車したい
雨の日でも洗濯したい
洋室で暮らしたい
趣味
オークション・通販が好き
ガーデニングが好き
お得な条件
フリーレント
インターネット無料
ベルシード板橋本町プレミアⅡ 406号室の賃貸契約情報
毎月支払う |
家賃17.4万円/月共益費15,000円/月 |
|---|---|
初期費用 |
敷金-礼金-保証金-敷引き償却金- |
更新料 |
174,000円 |
鍵交換費用 |
17,600円 |
室内清掃費用 |
- |
駐車場料金 |
27,500円 |
損保・ |
借家賠付きの火災保険にご加入いただきます。 |
保証会社 |
加入要 保証会社利用料:初回保証料は総賃料等の100%、以降1年毎に1万円~。 |
契約期間 |
2年 |
入居可能日 |
即入居可 |
フリーレント期間 |
2ヶ月 |
取引形態 |
一般媒介 |
備考 |
ペット飼育時敷金1カ月積み増し、退去時償却1ヶ月分 短期解約違約金あり |
ベルシード板橋本町プレミアⅡ 406号室の建物情報
建物名称 |
ベルシード板橋本町プレミアⅡ |
|---|---|
最寄駅 |
|
所在地 |
東京都板橋区清水町 |
階層 |
4階部分(地上10階建) |
構造 |
RC |
築年数 |
新築 |
駐車場 |
27,500円 |
小学校学区 |
志村第三小学校 |
中学校学区 |
志村第一中学校 |
- 学区データについて
- ※学区データは必ずしも正確とは限りません。詳細に関しては最寄店舗または各自治体の教育委員会に必ずご確認ください。
無料この物件に問い合わせ
- ベルシード板橋本町プレミアⅡ 406号室

-
17.4万円
(共益費
15,000円)
- 敷
- -
- 礼
- -
- 保
- -
- 償
- -
ベルシード板橋本町プレミアⅡ 406号室の物件のお問い合わせ先・取り扱い店舗
ハウスコム 赤羽店
- アクセス
-
京浜東北・根岸線「赤羽駅」南口徒歩1分
- 住所
- 〒115-0044 東京都北区赤羽南1丁目7−3 厚生堂ビル1階
- 営業時間
- 10:00~18:00
- 定休日
- なし(12/25~1/3は休業)
- 営業エリア
- 北区,板橋区,足立区,川口市,戸田市
- 取引態様
- 賃貸仲介業





























